查看完整案例


收藏

下载

翻译
Architects:Nikken Sekkei
Area :1875 m²
Year :2015
Photographs :Ken'ichi Suzuki
Main Contractors :Joint Venture of Kajima Corporation, Toda Corporation, Daiwa House Industry Co.Ltd.
Client : YKK Real Estate
Interior Works : Nikken Sekkei, Nikken Space Design, FUJIE KAZUKO ATELIER
C&S [Civil&Structural Engineer] : Kimiaki Harada
M&E : So Takizawa, Sin Horikawa, Kitaro Mizuide
Site Area : 2640.05 m2
Total Floor Area : 20919.85 m2
Design Team : Tadao Kamei, Koko Nakamura, Tetsuo Tsuchiya
Civil Engineer : Kimiaki Harada
Structural Engineer : Kimiaki Harada
Interior Works : Nikken Sekkei, Nikken Space Design, FUJIE KAZUKO ATELIER
Mechanical & Electrical : So Takizawa, Sin Horikawa, Kitaro Mizuide
City : Chiyoda-ku
Country : Japan
YKK80, the new headquarters for YKK Group, was built on the expanded site of where the original headquarters was built in 1963. The site is located in a busy area next to Akihabara along Showadori-Street and the elevated Metropolitan Expressway.
The design of the building was developed based on the following themes: a design that would have a suitable presence in the neighborhood for the new headquarters of the global YKK Group; an office building designed with functionality / reliability / comfort that would provide a safe and pleasant working environment; and a place that would encourage interacting with and contributing to the neighborhood, which has a rich history in manufacturing.
The main façade, the west façade along Showadori-Street, is comprised of a screen of extruded aluminum and a double-skin façade system with built-in climber blinds. The combination protects the interior from the strong west sun and exterior noise while providing a controlled view of the busy urban neighborhood from the interior of the building. Since the façade along the street would be quite significant in size, approximately 60m x 40m, the intent was to create a varied expression while maintaining uniformity through a screen with two layers of delicate extruded aluminum with a Y-section.
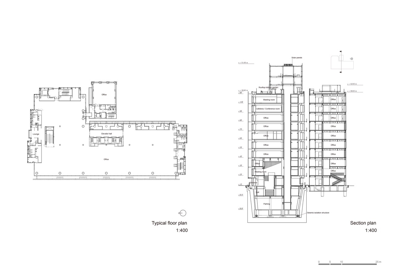
At the office floors, the elevator bank is located in the center of the L-shaped floor plate to achieve a continuous work space, to ease moving between floors, and to achieve a large work space along Showadori-Street on the west. Copy areas, meeting areas, restrooms, relaxation areas are located around the open staircase that link 4F to the Roof Floor to encourage communication among employees between floors.
The work space is air-conditioned with a comfortable yet energy conscious system, utilizing radiant ceiling heating and cooling system with desiccant based humidification-dehumidification.
A gentle breeze is also provided for further comfort at the occupied zone. Ambient and task lighting illuminate the space efficiently and effectively. LED linear ceiling fixtures are designed for light to reflect off the slightly tilted ceiling panels to enhance the overall illumination of the work space. Task lights are provided at each desk. Occupancy and daylighting sensors are installed for further energy conservation of lighting. Numerous other energy conservation measures were incorporated, such as use of geo-thermal heat, rain water reuse, installation of efficient plumbing fixtures, to achieve reduction of total energy consumption by 60% compared to typical Japanese office buildings. In addition, materials were carefully selected and aggressive measures were taken to enhance the indoor air quality to become the first office building in Japan to be awarded Platinum level certification for LEED Core & Shell.
▼项目更多图片
客服
消息
收藏
下载
最近


















