查看完整案例


收藏

下载
原来最抚人心的,是一切如常。
那张皮沙发还在原来的位置,甚至光晕也打在同一片地方,坐垫还保持着你上次离家时的样子,未喝完的茶水已凉,但仍散着似有似无的幽香,风吹过纱帘轻轻地飘,你坐回最喜欢的位置上,一如寻常。
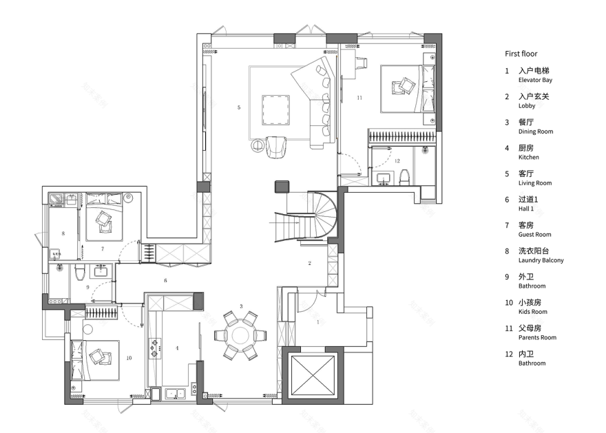
本案是位于瑞安瑞祥公园边200平方的错越住宅。东临清河,南面望之视野开阔,阳光明媚。清晨打开窗帘,户外的草木与嶙峋的波光,晃花了双眼,一日之始,也自此开始。
户型整体方正,但生活阳台紧邻客厅,造成客厅的整体比例相较于空间偏小,动线杂乱。
设计从破局开始,拆解多余的隔断之后,空间整体外移,容纳进阳台空间,扩大客厅面积。
同时移位楼梯方向,重新梳理空间动线,使之适配空间的功能布局,符合委托方的生活习惯。
色彩遵循简单的黑白灰,同时以一抹橘黄作为跳色,形成温暖精致的空间质感,灯带如同画笔的勾线描红,在平面空间中,勾勒出立体且生动的块面。空间不做多余的装饰,最简单的平铺直述,只凭借材质间的不同色彩与肌理表达明暗的层次感。
黑白看似是最经典的组合,但其中蕴藏着无数种变换,蕴含着千万种色调,有无限的玩法。
空间看似简单的黑白,却因材质的不同,而存在着不同的光泽、肌理,木质的温润哑光,玻璃的晶莹,金属的冷硬……使色彩呈现着有趣的变幻。
楼梯位于客餐厅之间,经改造过后,走势更加符合空间的基本动线。
楼梯整体呈现纽带般的飘逸感,体现着隔、透、叠的艺术,同时蕴含着向上的张力,形成一二层之间的连接。
设计空间的过程,更像是在讲述一个关于家的故事,从视觉的美感为始,最终落于生活的实质。
私宅空间予人,应是绝对包容的所在,设计师赋予空间大量的留白,容纳悄然生长的情绪,而转角处的一袭画作,则代表着生活中跃动的惊喜,光沿楼梯旋转而上,似是引领,向生活的内心生发。
客厅向外,卧室朝内。二层作为起居空间,更注重私密与温馨的表达。不同于一楼的黑白色调带来强烈的反差感,而是偏向于低饱和度的灰调色彩,引述向平静的内心感受。
设计师希望通过全新布局,营造简单却不输品质的空间质感,秉持着少则多,多则惑的设计理念,强调工艺细节的坚持与产品品质的要求,让生活中本不起眼的物件,都散发着优雅的艺术之美。
项& 名称 | 家的构述
设计公司 | 瑞安市合意空间设计事务所
项& 地点 | 浙江·瑞安
项& & 积 | 180㎡
主案设计 | 叶芳
设计时间 | 2021.01
完& 时间 | 2022.01
主要材料 | 岩板、护墙板、墙布等
施工单位 | 瑞安市合意空间设计事务所
项目摄影 | 吴昌乐
文稿来源 | 橙设传媒
叶芳
合意空间设计事务所 创始人/设计总监
客服
消息
收藏
下载
最近

































