查看完整案例


收藏

下载

翻译
Architects:Abin Design Studio
Area :525 m²
Year :2016
Photographs :Ravi Kanade
Status : Completed in May 2016
Architect In Charge : Abin Design Studio
Design Team : Abin Chaudhuri, Poorvi Dugar Ajmera, Angshujit Mazumder
City : Kolkata
Country : India
The combination of wood, steel, glass and greens come together in this contemporary expression of a residence in the tropical climate of Kolkata. This model home is a standalone version of typical apartments that are to come up as part of a 40-storeyed tower. This is capped by a rooftop lounge and terrace created to enjoy panoramic views across the site.
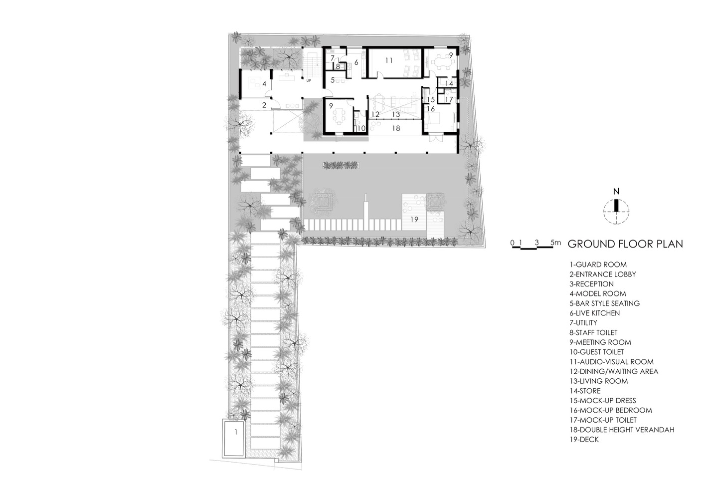
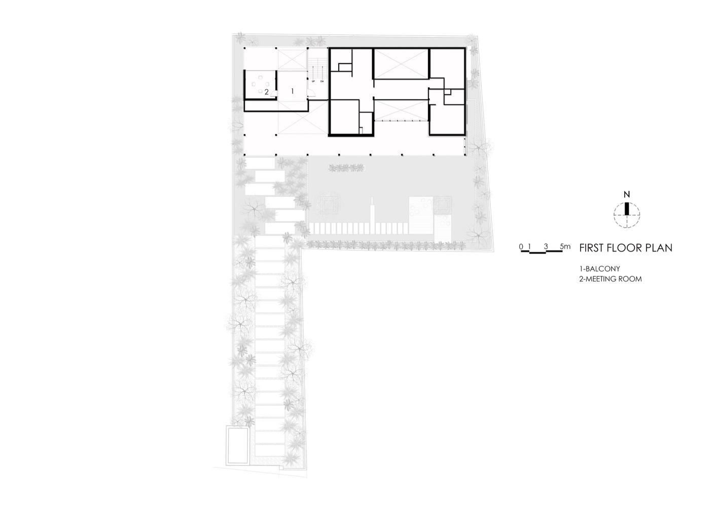
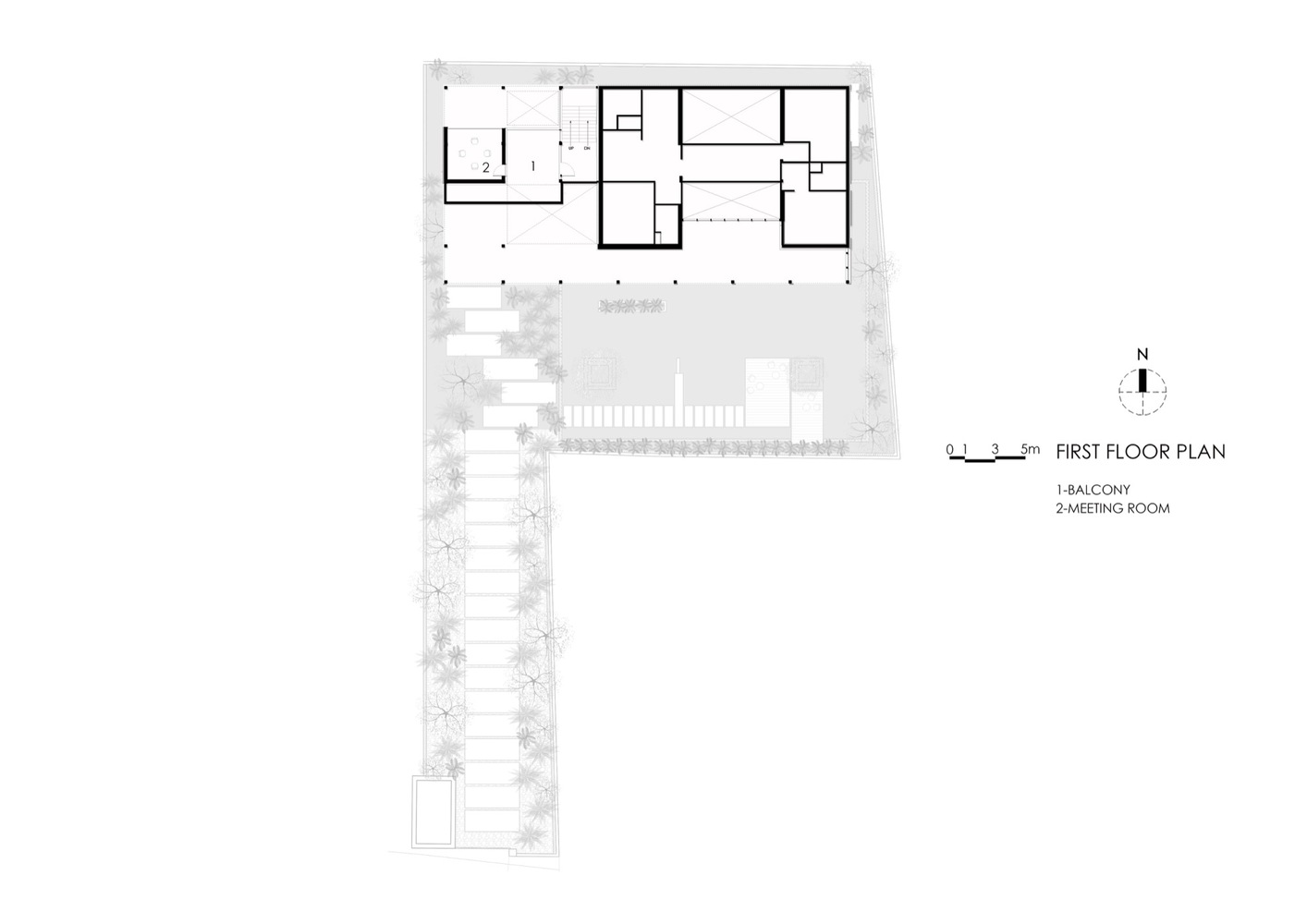
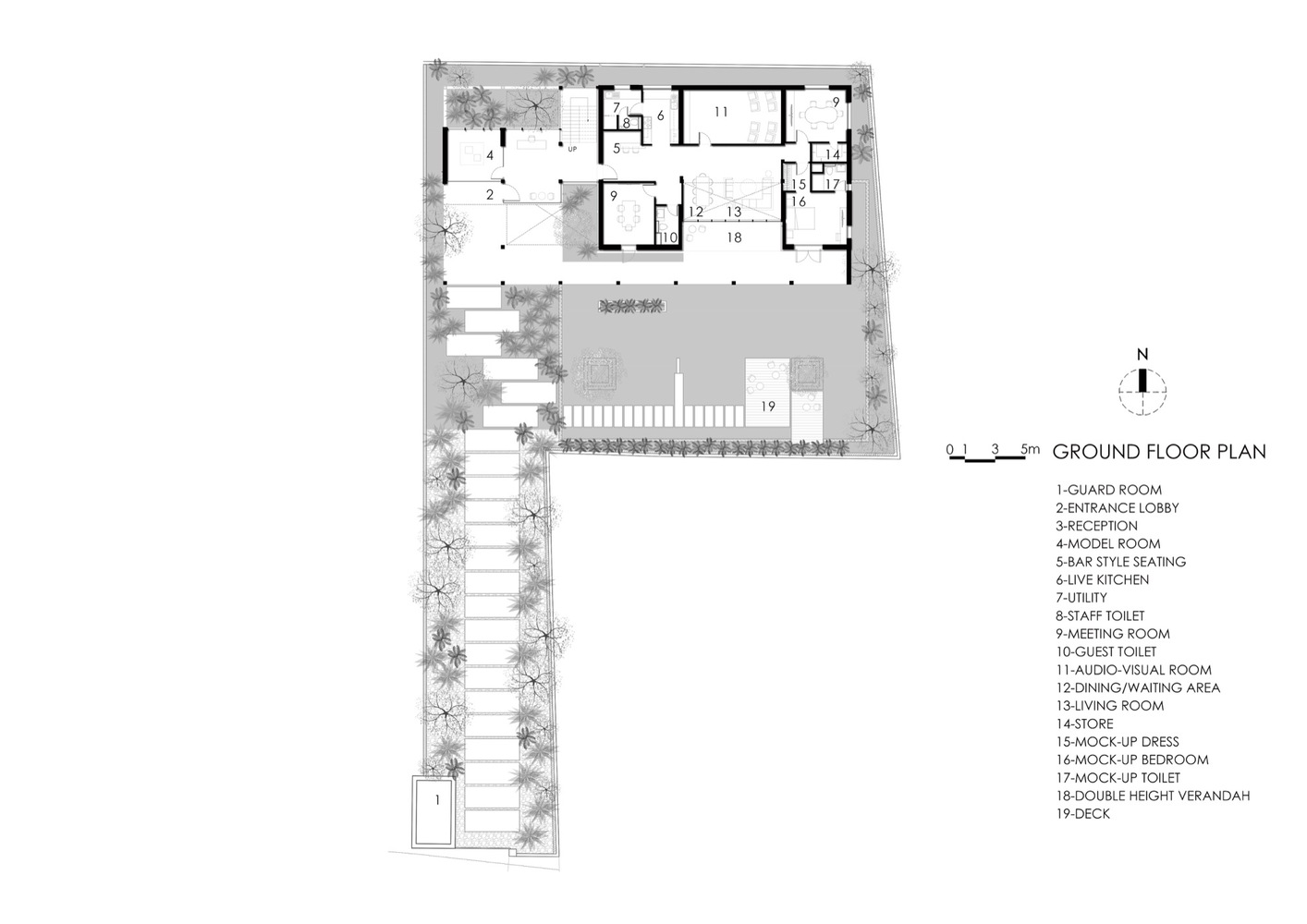
The Aurus Home is designed to be, currently, a mockup for a 4-bedroom apartment with a double height living-dining space and a large balcony. The bedrooms are planned to be meeting rooms and audio visual facilities until they are converted into a home for its end user. Meanwhile, the rooftop terrace overlooks the construction of the tower.
Greeted at the entrance by a Guard house that complements the building's treatment, one enters the site through concrete steps floating on a landscaped bed. The pathway gradually reveals the building and its materials opening out onto a large water body dotted with greens.
Wooden louvers wrap the entire structure save for the openings emphasizing glimpses across the waterscape into the home. The columns, floor and ceiling are treated in a dark grey colour to bring out the hand-crafted wooden element to the fullest, eliciting a sense of luxury from the very first glance.
The reflection in the water of the simple colonnade against the modern wooden louvered facade brings out the contemporary Asian expression that the building aims to create. The double height living, dining and balcony are clearly expressed as the focal features of the apartment even before one enters inside.
The entrance foyer is presently a glass box consisting a model display area and reception. It is planned to be converted into a tranquil pavilion amidst the greens. The main door detail carefully mimics the exterior treatment. The warmth of the door leads one into the foyer of the home which has been designed as a bar unit. The art corner behind the bar is an essential part in making the foyer unforgettable. The name "Aurus" is not lost as the gold accents in the bespoke furniture complement the otherwise monochromatic material palette.
A feature wall of wood and gold was developed to conceal a bedroom door (currently used as an AV room) with a crafted solid wooden handle. A large, circular, strategically chosen picture breaks the monotony of the louvers. The feature wall wraps around from the foyer and leads one further into the home towards the living and dining area. This large volume is the heart of the home and enjoys a fantastic view of the water body across the large balcony. Its double height is emphasized by a large wire-frame chandelier over the dining and a brass 'thali' mural on the living room wall.
The bedroom is designed to effortlessly integrate modern elements with fuss-free practical furniture. Simple sheer curtains adorn the windows that boast good views. The richness of the marble flooring complemented by the simple stylish furniture, curated artwork and dreamy ambience subtly hint a causal opulence.
The landscaping combines trees of various heights, spreads, colours and foliage that provide a natural feel to the outdoor areas while broken stone chips on the floor and floating concrete steps across the water body bring out a man-made intervention. The harmonious amalgamation of the two make for a pleasant alfresco environment, perfect for every season. A concrete planter box rising from the water body with a life-imitating sculpture along with its reflection in the water give the landscaping an ethereal feel.
As one moves up towards the rooftop lounge and deck, a balcony at the mezzanine level comes as a welcome area for pause offering a different sense of appreciation of the landscaping. The modern metal staircase and perforated railing create crisp and interesting shadows. One is met at the top of the stairs with a panoramic view of the site and the city beyond through the seamless glass enclosure. The rooftop spaces are designed with neo-classical charm coupled with modern accents. Simple furniture is detailed carefully with rich material choices. Enclosed in this lavish glass box, complete with contextual arches and mouldings, one can admire the upcoming tower across greens within the comfort of air-conditioned spaces. Winter would encourage one to step out and take in the cool breeze while lounging on the deck.
The mix of materials, the presence of exquisitely detailed elements alongside simple furniture, chic accents, a basic colour palette and the arrangement of art and sculpture, all together contain a ver
▼项目更多图片
客服
消息
收藏
下载
最近











































