查看完整案例


收藏

下载

翻译
Architects:LABOTORY
Area :103 m²
Year :2021
Photographs :Yongjoon Choi
Direction : LABOTORY, Kimin Park, Jinho Jung
Design And Audit : Seulgi Yoo
City : Yangcheon-gu
Country : South Korea
Sage VIP Lounge began with the phrase Myeongseon, written by Jung-hee Kim, and this is a letter of gratitude for a friend. Along with the concept, we established the design language through the form, function, and color of a cup of tea and developed the design languages accordingly.
First, the elaborate shape of the tea is shown as spatial. Second, we specialized the functions of tea into a space of relaxation and communication. Finally, the colors of transparent and clear tea and clean teacups are reflected throughout the space.
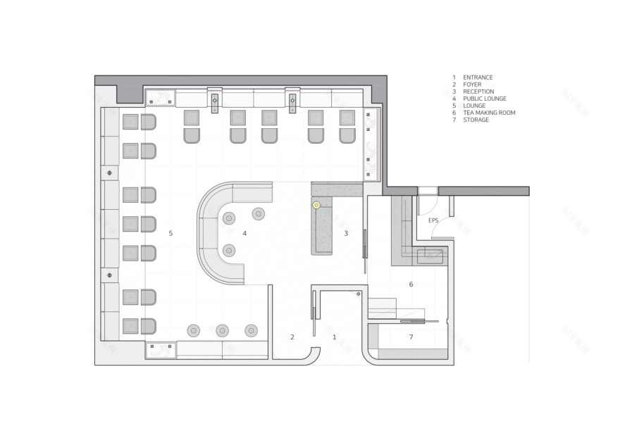
From the entrance of an elaborate curve that resembles the shape of a teacup, it leads customers to move. The core space reinterpreted the shape of the teacup and expressed the core space in the form of curved walls and ceilings.
Using glass, which is a transparent and reflective material, and the form of the ceiling, the scene of pouring the tea into a cup was captured in the central space. Through this, we wanted to deliver a comfortable resting space through the tea.
Furthermore, with the pure color and warmth of the tea, we wanted to bring out the color of the space and deliver a comfortable and unique experience of the Sage VIP lounge.
▼项目更多图片
客服
消息
收藏
下载
最近


























