查看完整案例

收藏

下载

翻译
Architects:TAAL Architects
Area :622 m²
Year :2020
Photographs :Kim JeongHyun
Landscape :PH6 Design Lab
Lead Architect & Principal : Seo Jiyoung
Lead Architect & Partner : Zo Hangman
Partner Designer : Im Jonghoon
Project Designer : Kim Garim
Design Team : Yeom Junhyeok, Hur Eunseok
Graphic Design : Ha Hyeongwon
City : Ansan-si
Country : South Korea
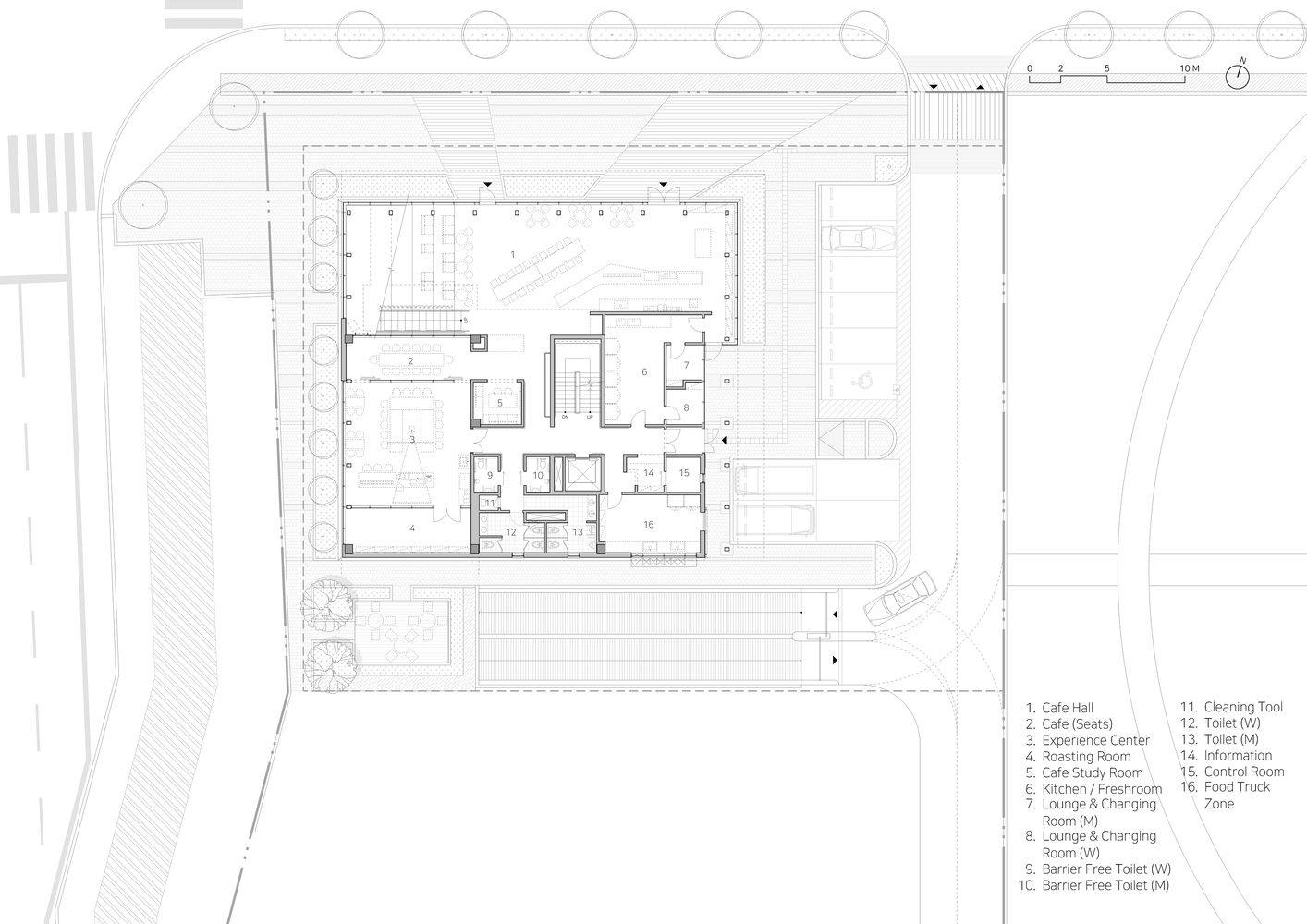
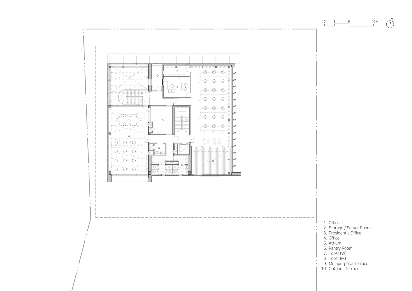
The Hwaseong Coffee Culture Center is a public facility located in a neighborhood park in Bongdam New Town. It is a facility for the elderly, whose demand is rapidly increasing in the aging modern society. The center provides programs that support the re-employment education, and cultural and leisure activities of the elderly through coffee, as well as support the economic activities of the elderly, such as the Nono Cafe, one of Hwaseong City's representative participatory welfare projects for the elderly. This unique type of small public facility is three-dimensionally combined with an educational space, a space for the elderly, a neighborhood facility, and a public workspace.
A simple red cube: unexpected encounters in everyday life. Unlike large cities, in rural areas where there is little floating population, the premise of the success or failure of public cultural facilities is to publicize the existence of the facilities, and the most important goal of the design is to secure awareness. In a rural park where green is the main color, an unexpected design strategy of an intense 'red cube' was adopted to induce awareness and interest of residents. Like the Red Ball Project, a public art project that artist Kurt Perschke started in St. Louis in 2001, we chose pure red as an object that creates new evoking and possibilities for space and place. After the completion of the small new town, in the comer of a neighborhood park, it is an intentional directing imagining the situation of encountering an unexpected simple red box that contains culture, the public, and the lives of the elderly in the daily.
Factory for coffee and culture: Blending of experiences that stimulate the five senses. The second strategy was to satisfy the insufficient public construction cost through the construction of a factory atmosphere full of raw materials and surfaces and to express the unique spatiality of dynamic production space. Like the blending that creates a new coffee with a variety of flavors and aromas by adding other beans to one coffee bean, the Coffee Cultural Center is a space where coffee meets culture, and experiences are added to education. it is also a cultural complex that expands by adding the elderly, welfare, and jobs one after another. The Nono Café and Experience Center are configured as a factory-scale central space with a height of 2-3 stories, and in the large-scale space, various programs are offered. We pursued a blending space of experiences that could be connected and mixed in a visual, olfactory, auditory, and tactile sense along with the strong aroma of coffee and the sweetness of desserts.
The 3rd Space: Expanding into nature and community. The entire eastern facade of the coffee complex, located at the northwestern end of the park, opens toward the park, drawing the park into the coffee space. As the third space that Ray Oldenburg said, we pursued a comfortable space where we could rest and recharge with nature. A place with neutral ground, conversation, appreciation of human personality and individuality, easily accessible, Playful mood, and refreshing atmosphere. The six characteristics of the third space that Oldenburg emphasized are also important space themes in the Coffee Cultural Center. It is hoped that the third space realized in this way will expand into a cultural and spatial community of exchanging meanings where young and older generations, regions, and communities meet.
▼项目更多图片
客服
消息
收藏
下载
最近







































