查看完整案例


收藏

下载

翻译
Architects:B-architecten
Area :262 m²
Year :2019
Photographs :Ilse Liekens
Design Team : Evert Crols, Dirk Engelen, Sven Grooten, Sebastiaan Leroy, Kristel Posen
City : Antwerp
Country : Belgium
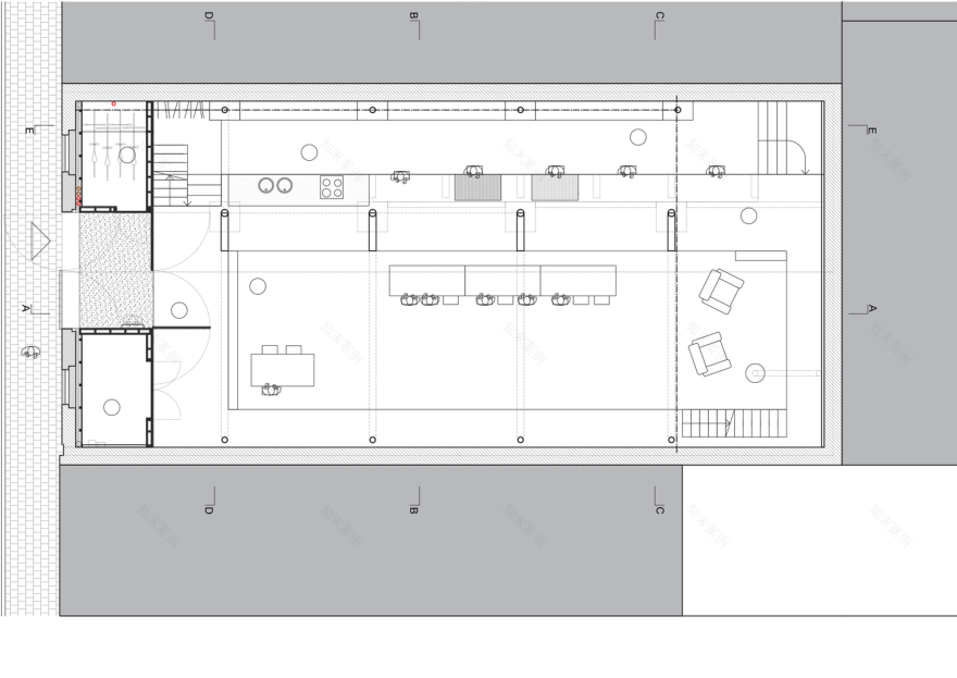
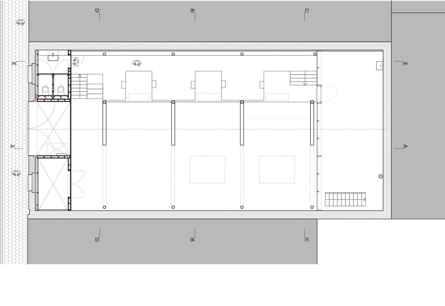
No-nonsense renovation and design of a listed historic warehouse for the Antwerp home of these renowned creators and builders of lighting solutions.
The workshop is a mix of new and existing constructions and levels and forms a creative platform for employees and customers alike. Earthy colours and basic materials are bathed in subtle dim light.
The plant room brings nature and daylight into the building.
▼项目更多图片
客服
消息
收藏
下载
最近


































