查看完整案例


收藏

下载

翻译
Architects:MDR Architectes
Area :3386 m²
Year :2018
Photographs :Julien Thomazo
Manufacturers : STACBOND, Armstrong Ceilings, BFUP, FEHR, GKD Inox, Maille MetalSTACBOND
Lead Architects :Sancie MATTE DEVAUX, Frédéric DEVAUX, Arnaud ROUSSEAU
Consultants :ESKIS Paysage
Collaborators : Mélanie LASTRES, Camille DE LOS RIOS, Thomas GRENIER
Client : Ville de Montpellier
City : Montpellier
Country : France
The location of the new school is precious thanks to its situation at the core of the Ovalie neighborhood: it is surrounded by the remarkable wooden spaces of the Clos de l’Herminiers and by the large pines of the water castle siding the Paul Valery avenue. Its ZAC conception makes it completely utilize this environment by mainly connecting it with “soft modes”, which allows for a rather exceptional arrangement for a public equipment of this nature. Indeed, we received the opportunity of designing a building in agreement with a major public space on its main facade and create a true synergy between the building and its immediate environment. For a school, the epitome of a citizen location, melting pot of conviviality, dynamism, and openness, this dialogue built between assembly and public space is essential.
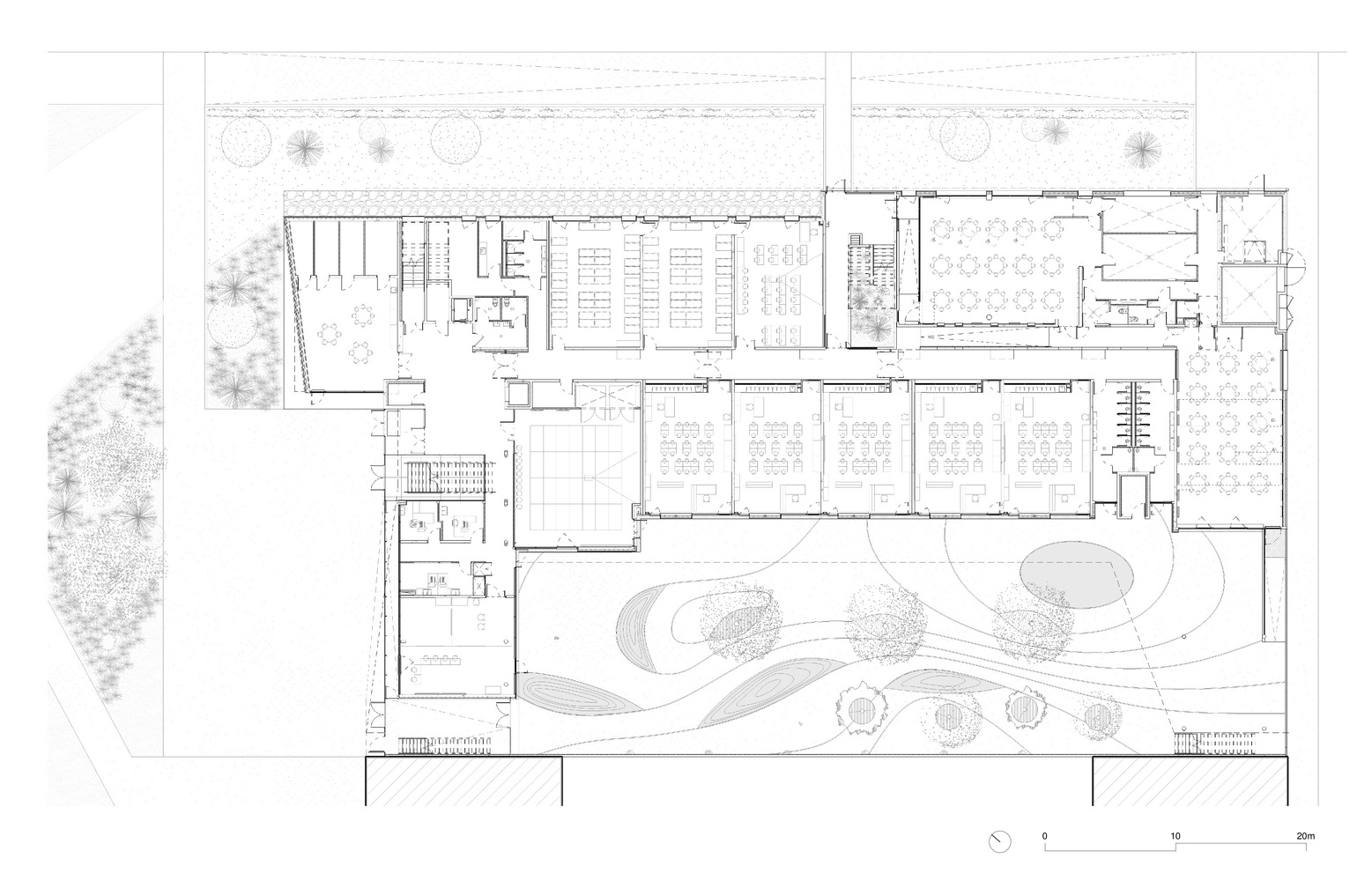
The entrance of the school is located at the northwest limit of the plot: the pupils can thus benefit from a very protected access thanks to a vast alley installed in the Jean Prat street perspective. The school entrance is highlighted by this public space and the volumetric conception of the project, paired with the functional pattern of the scholar group which is organized on three different floors. Indeed, the compacity of the site led us to find the optimal solution to organize the large size of the playgrounds in direct link to the schools: the reception points and the spaces shared of the scholar group are logically set at ground floor, as well as the kindergarten, which thus benefits from opening onto a protected planted yard and an easy accessibility.
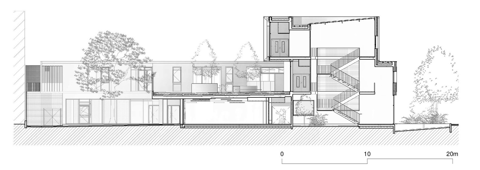
The elementary school works in floors: the first floor is conceived to allow a playground above the roof of the kindergarten area. This way, the two shifted stratums possess the same southern orientation and the same preserved situation at the center of the parcel. The volume of the second floor, installed in structuration of the northeast limit, receives the rest of the elementary classes.
The reception areas, installed at ground floor, confer a filtered permeability that lets us see from a distance the planted green areas of the kindergarten schoolyard, thus allowing a landscape continuity.
The kindergarten area is irrigated by a beautiful inner circulation which is useful for distributing the classrooms with a schoolyard view, at the south. All of the classrooms strictly benefit from the same conditions. At the other side of the circulation, near the northeast facade – opaquer and more protected on the street level – are located the areas that need less light or links to the outside, such as restrooms or staff rooms. The refectory of the kindergarten school is located at the southeast extremity of the playground. This spot, very open and welcoming, is protected by the covered playground in a way that lets the children access the canteen from the yard in any weather.
The elementary area is organized at first and second floor: this choice grants a very good performance in the compacity of the school, allows light on the classroom facades, and offers to all – like kindergarten classrooms – optimal situations of orientation and dimension.
▼项目更多图片
客服
消息
收藏
下载
最近











































