查看完整案例


收藏

下载

翻译
Architects:Kennedy Nolan Architects
Area :2820 m²
Year :2020
Photographs :Derek Swalwell
Lead Architects :Patrick Kennedy and Rachel Nolan
Engineering :Webb Consult, BRT Consulting, Adams Consulting, Sustainability House
Design Team : Victoria Reeves, Susan Syer, Michael Macleod, Jacky Oro, Jack Lawrence, Dominic Wells
Clients : Housing Choices Australia
Landscape : Simon Ellis
Collaborators : Overend Constructions
City : Melbourne
Country : Australia
Housing Choices Australia (HCA) is a national, not-for-profit housing association that creates safe, quality, affordable housing for people who are struggling to find a home in Australia’s challenging private rental market.
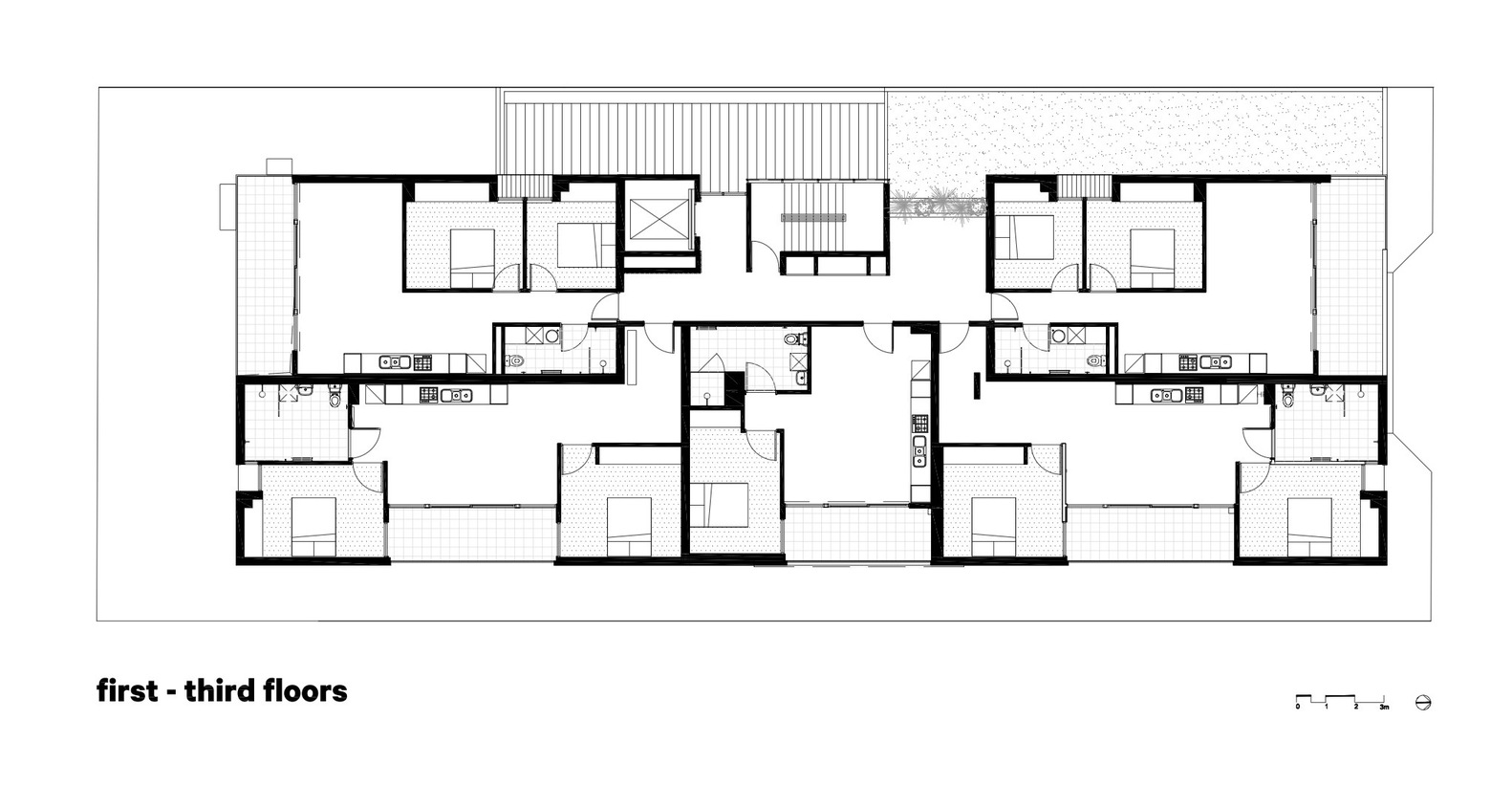
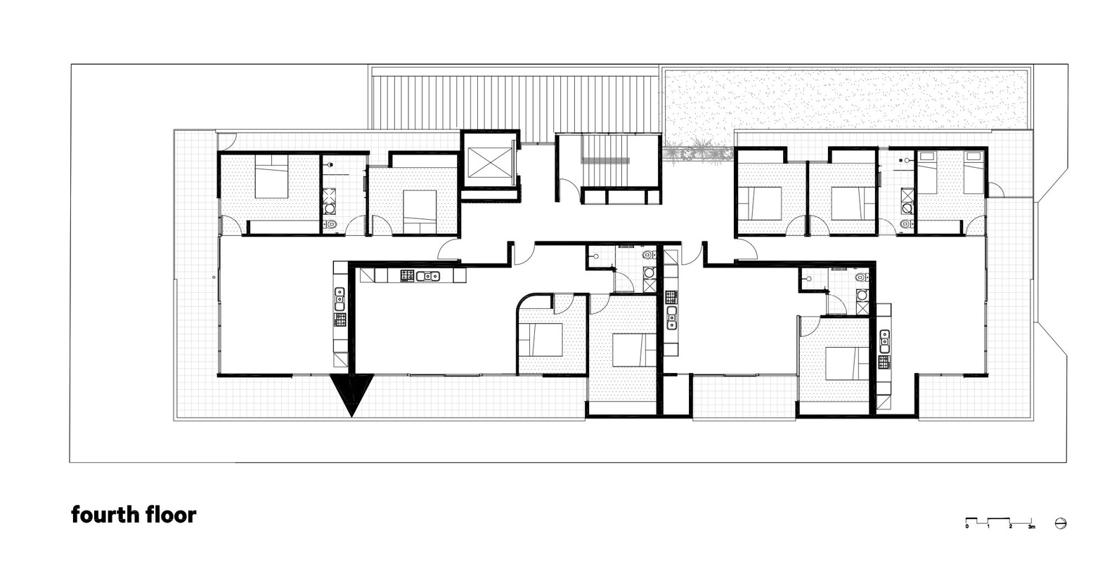
In 2015 Kennedy Nolan was engaged by Housing Choices Australia (HCA) to undertake a schematic design & feasibility study for three existing HCA sites in Melbourne. Each project was required to maximise yield while maintaining amenity, and conforming with the Liveable Design Guidelines, Housing Choices own design, construction and maintenance standards as well as all other authority requirements.
HCA are an organisation who hold on to their assets, so longevity and maintenance are of great concern. These projects are an exercise in the delivery of rational, robust and economical apartments that still deliver the warmth and delight of good housing.
Within these constraints and obvious socially responsible design outcomes, it was also important to Kennedy Nolan and HCA to achieve exemplary environmentally sustainable homes. Initiatives include:
Minimum 6-star NatHERS rating. Dual aspect to most apartments and all town houses for optimum passive cooling and solar access. Allowance for renewable energy only in operation. Electric boosted solar hot water supply. Water collection & storage for on site use. Electric induction cooking.
Lighting, fixtures and materials specification to maximize thermal, water and energy efficiency Water efficient tapware, appliances and sanitary fixtures Building envelope and material selection for effective thermal mass Natural air-drying of clothes in lieu of energy-intensive driers (Newport) Secure & accessible bike parking at building entry (Dandenong)
▼项目更多图片
客服
消息
收藏
下载
最近




























