查看完整案例


收藏

下载

翻译
Architects:Carvalho Araújo
Area :23346 ft²
Year :2020
Photographs :NUDO
Manufacturers : Much more than a window, OTIIMAMuch more than a window
Lead Architect :José Manuel Carvalho Araújo
Clients : Promolanhoso – Promoção Imobiliária S.A.
Engineering : BO Associados - Projectos de Engenharia, Lda
Constructor : Costeira – Engenharia e Construção
City : Braga
Country : Portugal
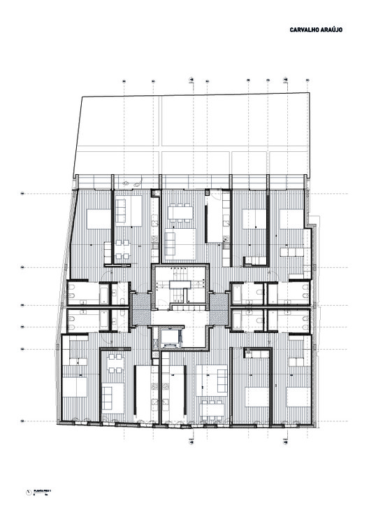
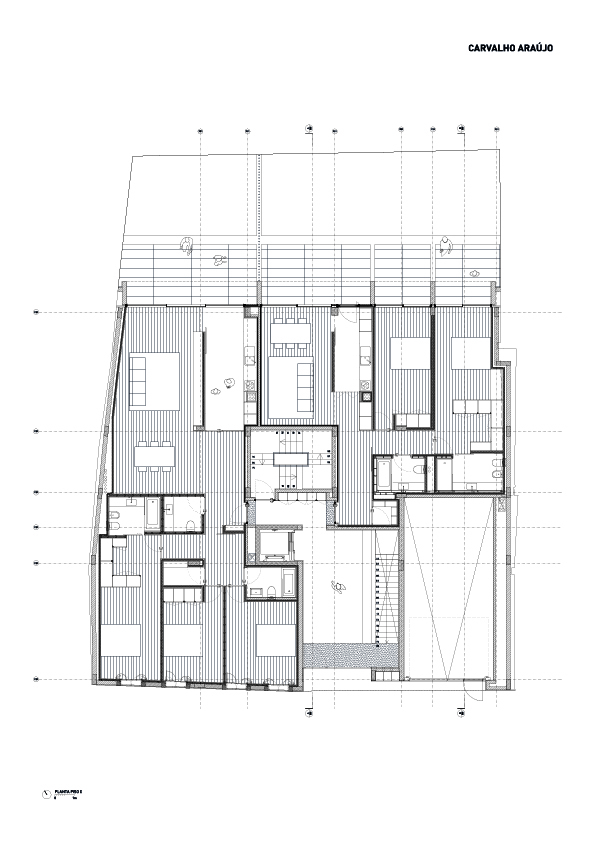
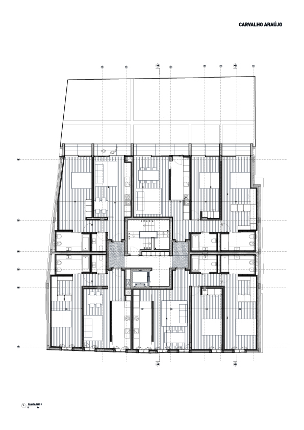
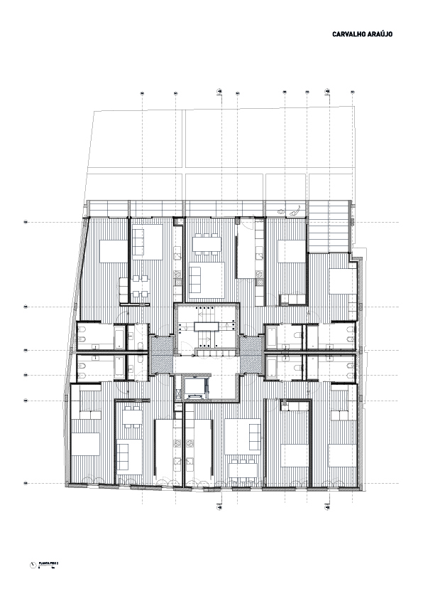
The project Casas Alcaide is located in the historic center of the city of Braga. The building consists of five floors, four of them above the threshold level with apartments that vary between t1 and t4 typologies.
The main facade was preserved, through its reconstruction with some of the original elements, combined with new elements – namely the spans, due to the need for the complete demolition of the existing ones. The interior of the building, the rear facade and the roof assume a more contemporary language, materialized in the construction solutions and materials used and adapted to the new needs of uses.
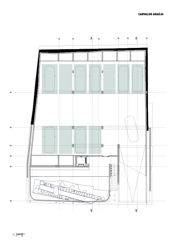
On the ground floor, in addition to the common atriums that provide access to the elevator, the stairs and some of the apartments, there are also patio areas belonging to each of the apartments that confront the existing wall section. On the floor below the threshold, where the garage is located, there is an important archaeological find that has been preserved and integrated into the project, not only as a way to dignify it, but also as an element that values the atrium on this floor and the intervention itself.
▼项目更多图片
客服
消息
收藏
下载
最近


























