查看完整案例


收藏

下载
业主需求
1.90后独居小哥哥,深色系现代简约风爱好者,个性自由是他的标签,喜欢与之相关的一切。
2.潮牌公仔的收藏爱好者,需要特意设计展示型收纳陈列它们~买衣服是小哥哥的另一个爱好,大容量的到顶大衣柜安排!
3.需要一个酷酷的、深色系的主卧,风格可以跟公共区域不一样,“个性”是核心要求。
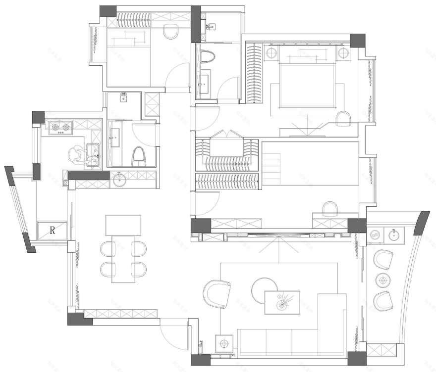
原始户型解析:
1.原始户型中规中矩,三房两卫的格局能满足业主使用需求,格局方面无需过大变动。
2.进门便是餐厅,空间尺寸局促,无法同时兼容鞋柜和餐边柜。
3.厨房空间较小,一墙之隔闲置着小阳台,功能划分不合理。
4.公卫和衣帽间均较小,空间实用率不高。
空间改造解析:
1.在原有格局基础上进行优化重组,借用墙体空间增加收纳,提高空间实用率。
2.将原厨房空间打开,打通小阳台和储藏间,将厨房内置,打造宽敞明亮的L型厨房。同时,以玻璃门作为隔断,另一侧便是宽敞通透的餐厅空间。餐厅靠墙两侧均定制了到顶收纳柜,鞋柜、餐边柜、水吧台通通安排上!
3.公卫前拓,将原过道位置纳入了其中,重新划分干湿分离,同时在淋浴房外侧留一组收纳柜,增加过道收纳空间。
4.衣帽间由正方形改造为长方形,加设一组背靠背收纳柜,增加相邻两个卧室的收纳空间,同时提升衣帽间的实用率。
摈弃繁杂的装饰,流露出简约大气的空间气质。拥有柔软曲线和金属光泽的单人沙发、黑色岩板圆边矮几、深色真皮L型沙发,不同材质碰撞出独特的魅力,既有童趣感又高级。
电视背景墙巧妙运用几何形体穿插的设计手法,在岩板之上加设凹槽内置吊灯,光源之下是黑色悬浮岩板台,既是造型又能充当电视柜。左侧斜面之下是电子壁炉,仿真火焰在夜间格外有情调,平时又兼具加湿功能,实用技能点满!
客厅以黑白色系为主,在岩板、烤漆、金属等材质基础上加入木格栅丰富空间质感,沙发墙一侧更是运用银色水波纹墙饰装点,搭配玻璃落地灯,散发出波光粼粼的光泽。
奶呼呼的潮牌玩偶谁能不爱呢!一定要摆放在最醒目的位置!木格栅从沙发墙连接到转角位置,内嵌灯带使得这个角落更有氛围感。
原厨房与餐厅合二为一,这里刚好又是入户区域,进门的视野非常开阔。餐厅的两端都做了整面到顶柜子,鞋柜、餐边柜、杂物收纳柜统统都有,日常囤货、收藏、展示需求都得到了满足!中心位置是岛台+可移动式餐桌的组合设计,使用更加灵活方便。
与简洁的柜子相比,水吧台上的水波纹背景墙格外显眼,与沙发墙的水波纹墙饰相呼应,无形中提升纵深感。其上设计了悬空吊架,可以展示收藏的公仔,美观又实用。
过道区域线条感十足,房门都是极窄边框的设计,和内嵌踢脚线相呼应,黑白灰中性色塑造简约的科技感。告别千篇一律,每一处细节都赋予灵性的质感。
步入主卧,仿佛进入了一个深色系的松弛空间,色调很适合睡眠,全遮光窗帘更是给足了安全感,让人从身体到灵魂都很放松。主卧背景墙使用了肌理感很强的石皮打底,与细腻的灰色木饰面形成鲜明对比,丰富空间层次感。
在墙面与床尾之间,一个不规则形状的桌子为平时生活带来便利,木质的温润加上深邃的灰,那种随之而来的轻松氛围使人心绪宁静。
床头一侧的吊灯与床头柜上的绿植亮眼又吸睛,缓解深色系空间的沉闷之感,又和墙面自然材质有所呼应,使空间更加丰富。
与其他房间的风格相比,次卧以一种简约而不简单的布局设计出现在了这里。靠窗的位置连接着榻榻米,拓宽了使用面积。在床头和下面都做足了收纳,连桌子上方的展示架都做好了买买买的准备。
公卫延续深色系基调,地面选用张力十足的熊猫大理石,瞬间将时尚感拉满。悬空浴室柜高级又好打理,搭配收纳功能强大的镜柜,美观又实用。
主卫地面沿用熊猫大理石材质,纹理显著颜色分明,看着就很高级。为了提升舒适度,智能马桶了解一下,使用感真的一级棒噢~
项目名称:无邪
项目设计:深圳漾空间设计有限公司
软装实施:深圳漾空间设计有限公司
项目地点:深圳招商海月花园
项目面积:127平
装修风格:现代简约风
客服
消息
收藏
下载
最近




























