创作上传
VIP
收藏下载
登录 | 注册有礼
知末案例
/
ODA New York
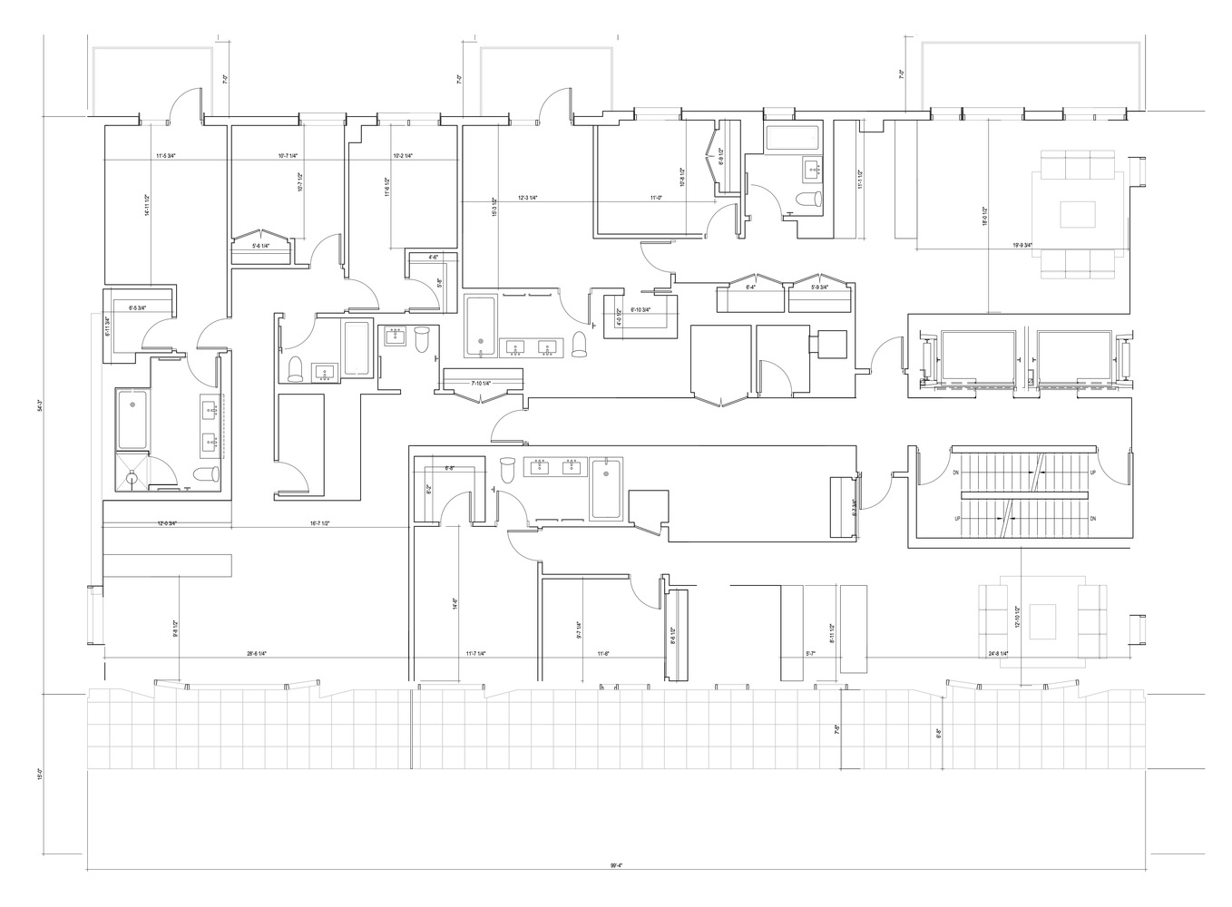
查理·韦斯特公寓
2020/04/09 14:52:17
查看完整案例
微信扫一扫
收藏
下载
分享
翻译
你可能还喜欢
换一换
60 Curzon 公寓丨英国伦敦丨Tatjana von Stein
Casa a Ponza 公寓丨意大利丨Carla Bruzzesi
瑞典 Gothenburg 市中心明亮温馨一居室公寓
俄罗斯 18 层顶层公寓,多层次空间与自然金属元素的创新结合
莫斯科凯旋门宫豪华公寓,Nikolashin 打造现代生活空间
UIC大厦V on Shenton重建,新加坡 / UNStudio
Architects:Lemay + Escobar, ODA New York
Year :2020
Photographs :Inessa Binenbaum
▼项目更多图片
251 1st Street · 城市绿洲与变化的布鲁克林
萨蒂亚东方厨房
华盛顿西半公寓丨美国华盛顿丨ODA
纽约私人住宅 I | 极简主义的艺术之作
纽约翠贝卡区 19 世纪顶层公寓的现代改造
Bevel Long Island City 公寓丨美国纽约丨ODA
客服
消息
收藏
下载
最近