查看完整案例


收藏

下载

翻译
Architects:Brasil Arquitetura
Area :4300 m²
Year :2007
Photographs :Nelson Kon
Design Team : Anne Dieterich, Anselmo Turazzi, Beatriz Marques, Carol Moreira, Carlos Arellano, Cícero Ferraz Cruz, Fabiana Paiva, Felipe Zene, Fred Meyer, Gabriel Mendonça, Laura Ferraz, Luciana Dornellas, Marcos Cartum, Natália Coachman, Pedro Del Guerra, Pedro Vannucchi, Rebeca Grinspum, Thomas Kelley, Victor Gurgel, Vinicius Spira
Authors : Francisco Fanucci, Marcelo Ferraz and Gabriel Grinspum
City : Itaim Bibi
Country : Brazil
Build a supportive and Pacific world just will be possible with the reunion from all people ‘stones’. Two big concrete walls (cyclopean on appearance). Built with a large variety of stones, from different origins and colors – sandstone, granite, basalt, marble, limestone, etc. – will structure physical and symbolically the new Shalom community center. Stones that perpetuate the memories from a time (or time memories), brought from most different nooks by everyone that take part from Shalom community activities.
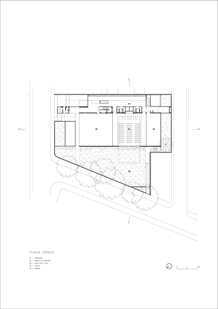
We implanted the building in the lot longitudinal direction, and the principal entrance in Fiandeiras street and secondary entrance in Cavazzola street aligning with the walls from the adjacent house, aiming a larger garden space on the setbacks integrated to the gorgeous trees on the Ribeirão Claro street.
Ground floor, including the grass garden, will be implanted in a 1,00m elevation above surrounding streets, like a floating plateau. Underneath, two garage pavements and some support area; above. Three pavements that will receive the proposed program: on the roof, two uncovered sports court.
▼项目更多图片
客服
消息
收藏
下载
最近
























