查看完整案例


收藏

下载

翻译
Architects:ArchSD
Area :23450 m²
Year :2018
Photographs :William Furniss, Image28
Manufacturers : EQUITONEEQUITONE
Consultants :Ove Arup & Partners
Architect In Charge : Vivien Fung
Engineering : Architectural Services Department, HKSAR
Landscape Design : Architectural Services Department, HKSAR
Client : Leisure and Cultural Services Department, HKSAR
Country : Hong Kong (SAR)
Renovation and expansion of the Hong Kong Museum of Art (HKMoA) is a dual process – working simultaneously on “veil” - enfolding existing building with its context and specific moment; and “unveil” – unfolding its museum collection and events to the public.
Veil. HKMoA had been overshadowed by the adjacent Cultural Complex. Facelift to the existing building is necessary for new identity and to engage in a new dialogue with the city.
Aspired by the ripple image of Victoria Harbour, the facade concept is a reinterpretation of Traditional Masonry Work and Op-Art pattern – reflecting the diversity of the Museum collection. The multi-faceted façade is animated by the interplay of light and shadow that changes over time and weather.
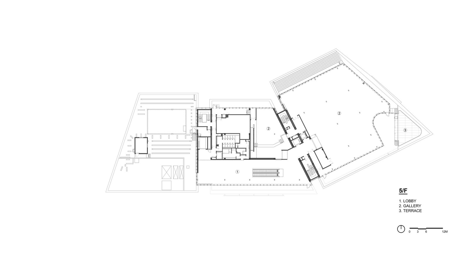
The translucent quality of fifth-floor expansion presents a strong contrast to the solid and opaque character of the building bulk below. The laminated glass gives a slight blurring effect to the panoramic Harbor view, forming a perfect backdrop for the art installations.
Unveil. All additional spaces are designed to maximize the transparency of the existing building. Carving out the building mass, the idea is to open up the museum for daylight and views.
The museum’s five public entrances and exterior views, public routes, and spaces will help it achieve a closer relationship with its existing neighbors.
The form of Annex wing is skewed to respect the geometry of the original structure. The lower level of New Annex is flanked by an operable glass enclosure. This street-scale structure allows flexible exhibitions extended to the outdoor piazza of Cultural Complex. Galleries can be joined by a wide, convivial staircase as needed, spanning across daylit central atrium which was designed specifically for large sculpture. The variety enables a wide range of curatorial approaches.
On the city side of the building, a large glass canopy cantilevered from the entrance foyer embracing the frontal Art Square, where the outdoor exhibitions will be held, which envisage artists to develop site-specific works. Entry experience is then orchestrated by contrasts of materials, with bronze wall carries through the escalator lobbies illuminating the vertical axis.
The revitalization is part of the transformation of Victoria Harbour – a vast redevelopment including improvement to the Avenue of Star. New HKMoA will be the gateway and catalyst, changing the harbour area into an activities hub.
It is one that creates possibilities for all of its users: staff, visitors, artists. Museum visitor can meet their friends by chance in the bookshop, or the museum diner. We are proposing a museum that creates good moments.
▼项目更多图片
客服
消息
收藏
下载
最近



































