查看完整案例


收藏

下载

翻译
Architects:Studio Woodroffe Papa
Area :3385 m²
Year :2009
Photographs :Jan Bitter
Manufacturers : AutoDeskAutoDesk
Clients : One Housing Group, Galliford Try, One Housing Group, Galliford Try
City : London
Country : United Kingdom
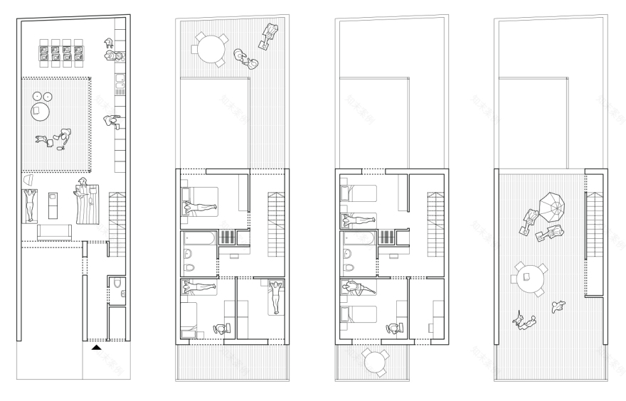
Our masterplan for the regeneration of the post-war Tarling Estate transformed the set of isolated buildings surrounded by asphalt and car parking into a clearly structured public realm of residential streets and squares; an active street-based urban fabric with four distinct urban blocks, delivering mixed-tenure and commercial uses. This re-integrated the estate back into the wider community of Shadwell and brought affordable large family homes back to the area. Our mixed-use residential building recasts the terraced row - a combination of apartments and a 21st Century reinterpretation of the archetypal British terrace house typology - in a form that best responds to today’s living requirements and the intensity of urban surroundings. The new homes provide generous outdoor amenities.
The different types of spaces are located at different levels within each home so that the extended family and children can enjoy both privacy and family gatherings when necessary. The result is a new concept of family urban living in a tough inner-city environment - all for a standard social-housing construction budget. While it has been designed to help create a successful street in a socially and spatially fragmented site in central London, the deep ground-level plan could also suggest itself as a solution on top of deeper plan office or retail blocks as part of a mixed-function development. By orienting the dining area and kitchen toward the inner courtyard, several advantages emerge for family life. Adults can supervise secure play areas while preparing meals or overseeing homework. This organisation creates successful private outdoor space in challenging surroundings.
Upper-level balconies and terraces give large families room for diverse activities and an expanded sense of space. Also, by turning the kitchen and dining area inward toward a courtyard, the rear wall may form an edge to a parking structure with a communal garden above in a block organisation. Visually it has the mass and appearance of a unified housing block, while actually providing large, accessible, adaptable four to six-bedroom family houses and one to three-bedroom apartments. The building strengthens and renews the identity of the area as a whole and of the community. This had proved to be a benchmark project for One Housing Group and the design innovation and problem-solving qualities of the project was recognised
▼项目更多图片
客服
消息
收藏
下载
最近






























