查看完整案例


收藏

下载

翻译
Architects:IROJE Architects & Planners
Area :1545 m²
Year :2021
Photographs :Jong Oh Kim, Jae Min Lee, Texture on Texture
Lead Architect :Seung H-Sang
Country : South Korea
This project is an architecture commissioned for Korea's top movie star, C. Her original home built in the '70s, was perhaps the only reality and important regression space for her, who has been she appeared as the protagonist of her silver screen from her young days, expressing the lives of countless others.
However, the commercial consumption culture of Hongdae's locality changed the surrounding landscape, and the old house, which had endured for more than 40 years, could not resist the new change. Her request to build a new building was rather simple. It was said that the user asked for the upper part of the building to have had a residential function and the lower part was rented to be lettable suited to the surrounding urban landscape, however believing that the memories of Korea’s top star recorded in the land, I persuaded her to propose a different type of architecture.
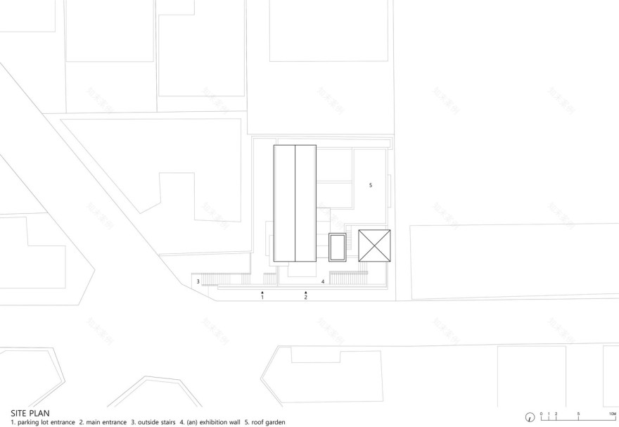
First, the wall was enlarged and expanded due to the different levels in the surrounding topography, and it was made into a 70cm thick concrete wall to create numerous large and small openings and niches inside and outside inwards and outwards the wall to enable exhibitions. Although it is an exhibition wall, this wall with a profound sense of volume and a dramatic expression in itself fulfills the first leading purpose of this architecture as a memorial for actresses.
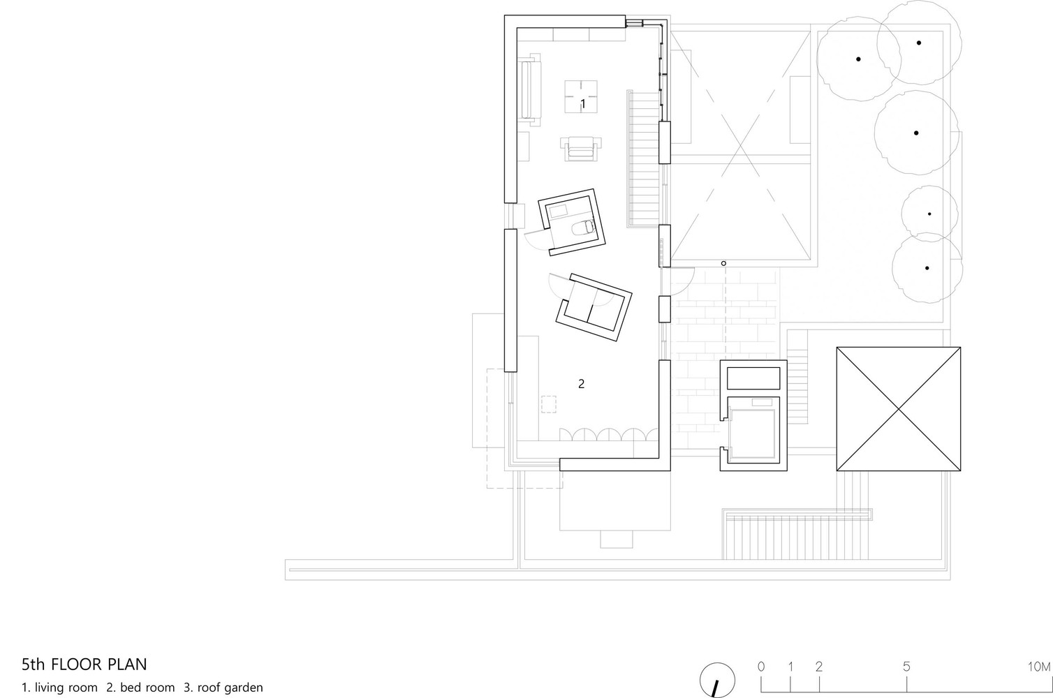
The original entrance, which started at the place where the five neighboring streets gather, is left remains as an entrance space, and the stairway starting here connects each floor while relying on this thick wall. After passing through the restaurant and office floors, you arrive at an exhibition space that will record this top star, and there is a special space inside. The small room you see when you reach the end of finish the exhibition suddenly opens up to form a square horn, and the light pouring through the round windows representing the constellation of Aquarius changes the shape of the light bundle according to the position of the sun and wanders around the interior space. Moved by the amazing transformation of this small space, our top star cautiously said that this space would become her graveyard, and I immediately designed a white ashes box urn and hung it on the wall. This space became her mausoleum and sanctuary. It has become then that while living in the house above it, she will have a more essential and fundamental reflection on her own life so that she will live towards a more precious valuable life one?
In fact, our ancestors always lived with reflection like this. In our old Korean traditional houses, there were spaces such as a private shrine, a literary room, and a pavilion, so that where the occupants were always thinking and reflecting. These spiritual landscapes were all driven out and expelled in the development period, hence architecture and houses were regarded as real estate values. One has said that a society and a city without a holy place cannot survive. It was because it was seen as said that a society and a city without a holy place cannot survive. Even if we do not visit distant cemeteries in distance, our lives will become special if the spaces we easily experience in the real world we live in are special. This is called I call it the spiritual landscape - ‘Soulscape’, and this project with that special device and space was called named the Aquarius Pyramid.
▼项目更多图片
客服
消息
收藏
下载
最近










































