查看完整案例


收藏

下载

翻译
Architects:Studio Twenty Seven Architecture
Area :10033 m²
Year :2018
Photographs :Anice Hoachlander, Hoachlander Davis Photography
Lead Architects :John K Burke, Principal, Niki Livingston, Jim Spearman, Allyson Klinner
MEP Engineer :Meta Engineers
Civil Engineers :Christopher Consultants
Landscape Engineers :Clinton & Associates
Structural Engineer : Ehlert Bryan
City : Washington
Country : United States
A housing community is the latest reincarnation of this one hundred and ten-year-old structure. Built by J. Edward Chapman in 1908 over the remnants of his horse stable destroyed by fire and his old coal yard sales shed, Chapman Coal Company Garage and Stables represents a significant contribution to the broad patterns of history and embodies distinctive characteristics of early twentieth century life in Washington, DC. For these reasons the building and site are listed on the National Register of Historic Places. The identity of the new housing community is derived from this rich history.
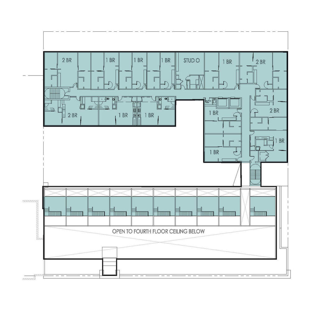
The design includes a five-story addition to the site that totals 114 affordable and market-rate living units. The development celebrates this historic resource by preserving the early 20th cen-tury light industrial detailing of the building. The lobby is now located off the shaft that was used as an automobile elevator to lift Ford Model-Ts and other vehicles to their service bays. Former automotive service spaces with terrazzo floors have become living units opening to a densely planted front garden.
New housing units on the roof of the historic structure recall the form of “light monitors” that present in the original garage to allow northern light to illumi-nate workspaces. Sightlines were carefully considered so that the new housing units on the roof are not visible from the street.
▼项目更多图片
客服
消息
收藏
下载
最近

























