查看完整案例


收藏

下载

翻译
Architects:Alidoost and Partners
Area :10000 m²
Year :2019
Photographs :Farshid Nasrabadi
Manufacturers : AutoDesk, FUJITEC, AGC, Adobe, Daikin, Knauf, Nooraneh, RAK, Shouder, Trimble, WolterAutoDesk
Lead Architects :Shahab Alidoost, Sona Eftekharazam
Design Team : Sahand Mohades, Hamideh Raoufzadeh, Parisa Soltani, Ali Taghibeigi, Hamed Bakhtiari, Parisa Pouyafard, Ilia Salek, Samaneh Khaki
Design Assistant : Amir Niknafs
Client : Farin Gostar Faham
Executive Managers : Shahab Alidoost, Nima Faraji
Structural : Arash Tadayon
Mechanical And Electrical : Alireza Faraji, Arash Babazadeh
City : Tehran
Country : Iran
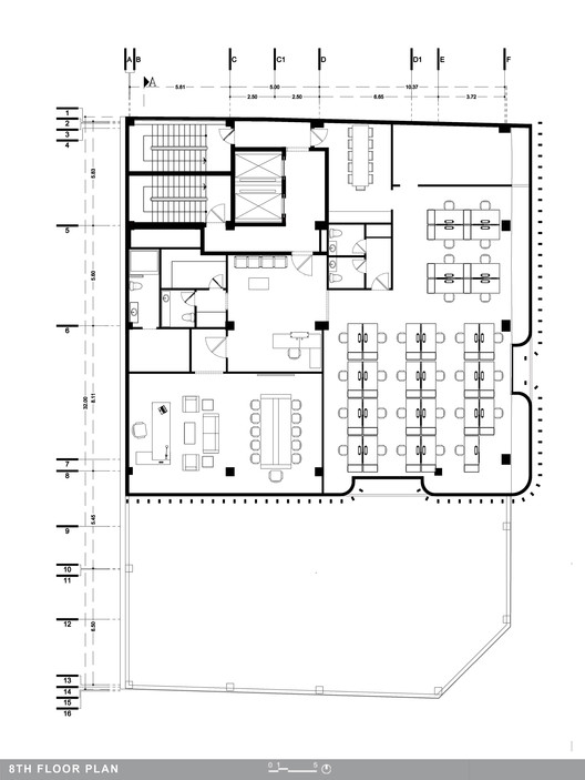
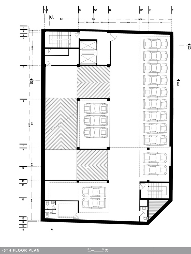
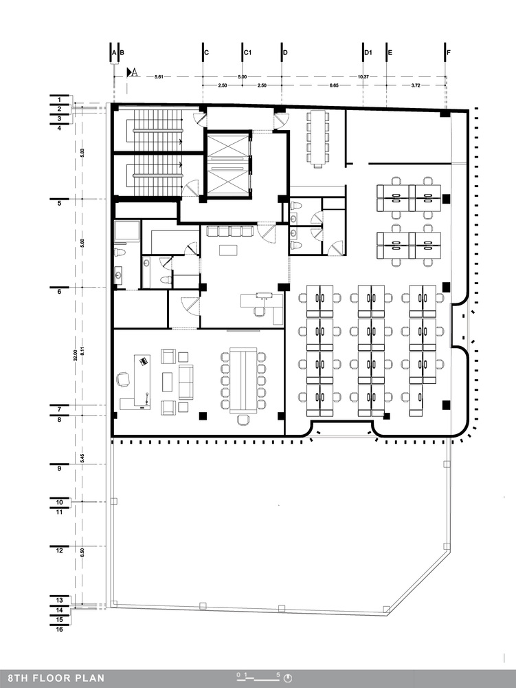
VIRA office building has been located in Yousefabad street, one of central district of Tehran, Iran. With total area of 10,000 square meter, the project includes: 8 floors upper ground with office uses, ground floor and first basement floors consist of 3 separated commercial units and 6 parking floors below. According to the scale, the project is of great importance at the urban scale. The design of the project began with a critical question being asked by the client: How can we choose our approach to facade design without knowing the number of floors which could be vary between 5 to 10 floors?
In addition, Municipal Facade Commission also had to approve the facade design.To achieve these purposes, we decided to design a basic module derived from the combination of an urban block and its associated green space, and subsequently multiply it in horizontal and vertical directions to achieve a combination which can be implemented in different structures with consideration asked by client. In addition,in the neighborhood of the project consisted of buildings of varying scales as well as generally rigid texture from the perspective of the materials.
So our second challenge was to come up with a solution to create a rigid façade from an urban perspective on the one hand, and to maximize transparency on the exterior wall to benefit the interior on the other hand. To achieve this, the second skin of facade was designed as a combination of pre-fabricated vertical aluminum louvers attached to the curtainwall behind it to save energy, in addition to meeting the needs of the interior space. Furthermore, the combination of the Louvre with balconies and green space, as well as the light and shadow play on the office floors, will provide a visually pleasing experience for users.
▼项目更多图片
客服
消息
收藏
下载
最近












































