查看完整案例


收藏

下载

翻译
Architects:Arkstudio Portugal
Area :180 m²
Year :2018
Photographs :Rodrigo Cardoso
Manufacturers : BRUMA, IkeaBRUMA
Lead Architect :Margarida Matias
Architect : Sofia Graça
City : Mértola
Country : Portugal
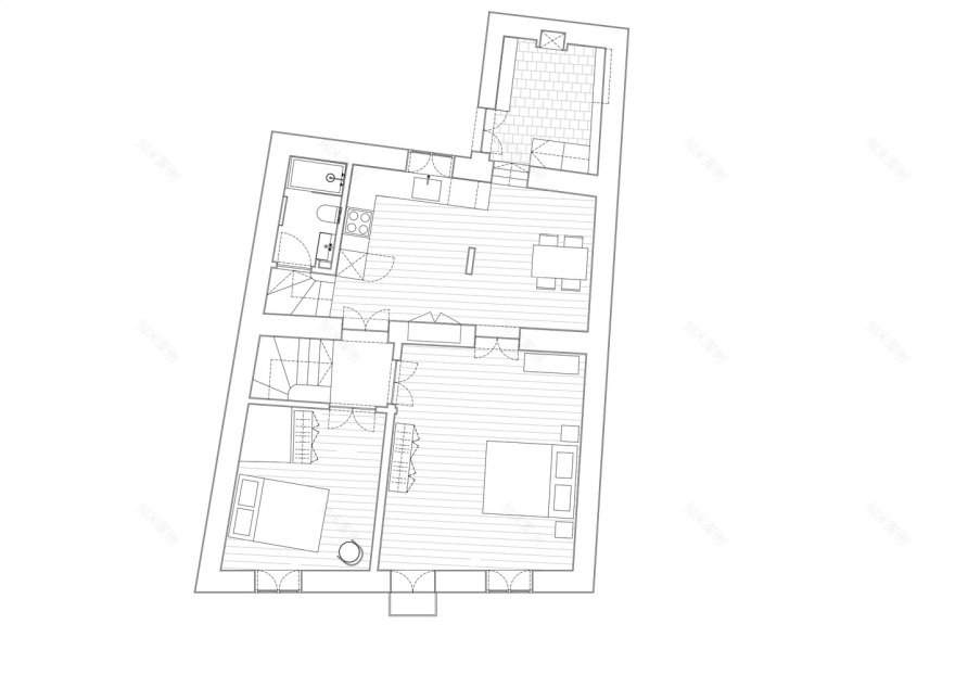
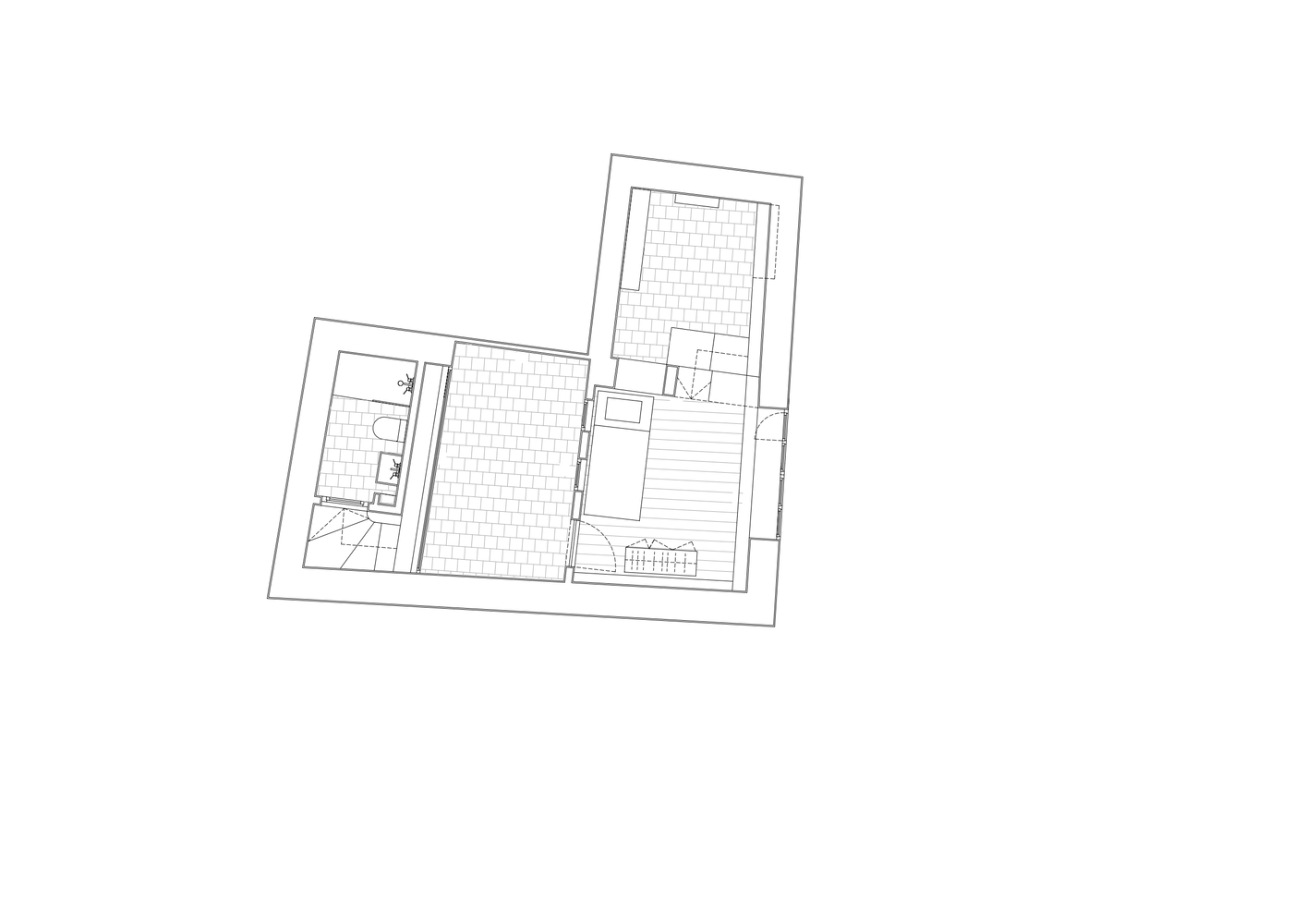
The Casa do Armeiro renovation project aimed to preserve as much as possible all the existing vernacular features in the building.
In this way, the original geometry of the house was maintained, and the intervention took place through the adaptation of the housing program focused on the current health and functionality requirements of the existing compartments, this constraint is the biggest obstacle to the development of the project and the work.
Traditional construction techniques, such as lime coatings on stone masonry, terracotta, or stone floors were used to recover the space and most of the carpentries were maintained with punctual intervention.
▼项目更多图片
客服
消息
收藏
下载
最近




















