查看完整案例


收藏

下载

翻译
Architects:Le House
Area :790 m²
Year :2020
Photographs :Trieu Chien
Manufacturers : AutoDesk, Greenman Contractor, Hai Long glass, M&A art tiles, Trimble Navigation, Tyhouse, Viet An-BetondecorAutoDesk
Architect In Charge : Le Hung Trong
Design Team : Le Hung Trong, Truong Ung Duong, Giang Quoc Phong
Client : Nap Am Homestay, Nap Am Homestay
Engineering : Vo Van Ly
City : Thành phố Đà Lạt
Country : Vietnam
Da Lat - the place of the dreamers, home of the wanderer's pipe dreams, and somewhere during that journey, we need the right place to "rest our bones". So the peaceful station "Nap Am" will be the place that nothing could be better than.
Located on a high slope and hidden deep inside a narrow alley of Da Lat, the project has both sides contiguous to different terrains, making it even more interesting. The striking feature distinctively from everything surrounded is the typical White and the architecture that represent the characteristics of this misty city. Notwithstanding, inheriting a modern architectural style, its façade has been entirely covered with a white painted steel layer as well as being CNC machined with its separately-design motifs.
Besides that, the utilization of the painted steel material and the surface treatment appropriate to the rainy weather and the regional high humidity are also the most concerned factors of our design team. Being immersed in the daylight, the building has a completely contrasting nuance to its appearance when the night falls, furthermore, the whole building will be as bright as a lantern with the intentional light in order to create the optimal effects. This outstanding construction has already been the wonderful signage of itself regardless of the fact that it does not have any large signs around.
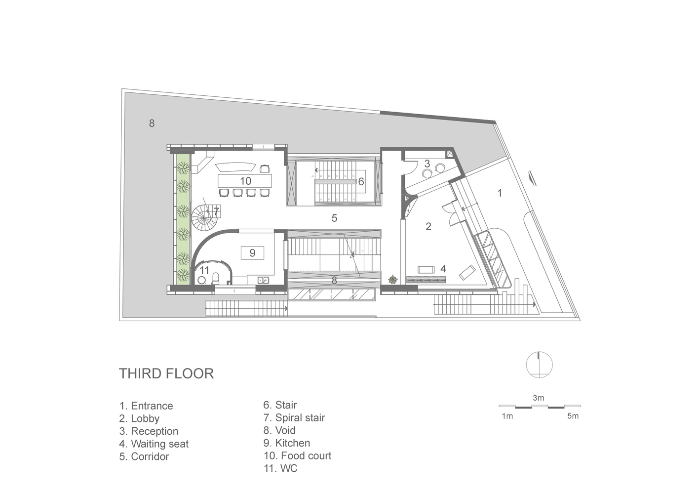
The interior space is divided into 3 floors and 1 attic, the arrangement of interconnected floors is the staircase extending from the main hall to the common living area. Mentioning to this floor, there is an adorable humble kitchen combining with a tremendously comfortable dining section and a working zone. A total of 9 rooms also including the collective and the private hygiene areas that were built to suit all the demands of guests, in which the duplex room is the main highlight for in the Attic area.
The whole building on sunny days will be sparkle with sunbeams and glow up the town and suddenly make every corner to become an ideal studio for those who have an intense passion for photography. Or someday-dreamers like me can find a little corner beside a long wooden table to quietly gaze at the sky behind the golden flower trees swaying in the wind. Sometimes being filled with sorrow, it is the best way to release some of it by dazing with a sad song while sipping a cup of tea typical from this highland. The faint scent of Pine wood reflected in the cold breeze serves people with romance because this is Da Lat, the place of those emotions thick in the air promises to make everyone come once then miss for a lifetime.
Even though having a medium-size, our design team still cares about the sufficient experience of our visitors, hence, a Jacuzzi bathtub is added for the ones who seek the feeling of soaking in hot water in the cold weather. It will be a great memory to enjoy the space full of poetry as well as watching the long-sided foliage with early sunshine.
The structure was formed from a combination of Shaped Steels but it did not get too rigid. On the other hand, the harmonious collaboration between Pinewood and White color creates a gentle intimacy, contributing more to Da Lat a worth experiencing attraction during each person's lifetime.
▼项目更多图片
客服
消息
收藏
下载
最近

































































