查看完整案例


收藏

下载

翻译
Architects:Knut Hjeltnes
Area :204 m²
Year :2013
Manufacturers : AXOR, Hansgrohe, DuPont, Lea Slimtech, nordvestvinduetAXOR
Other Participants : Nils Joneid, Øystein Trondahl
City : Kongsberg
Country : Norway
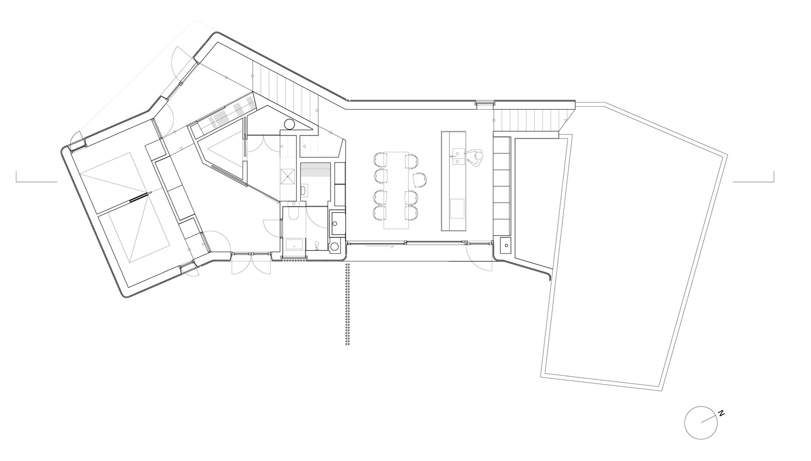
A concrete terrace climbs up the hill taking advantage of the small terraces naturally formed in the landscape.
The living room with its large loggia faces the view and is lifted above the terrace.
The irregular shape is a result of hugging the northwestern border of the site, leaving as much space as possible for the more attractive south facing garden.
▼项目更多图片
客服
消息
收藏
下载
最近























