查看完整案例


收藏

下载

翻译
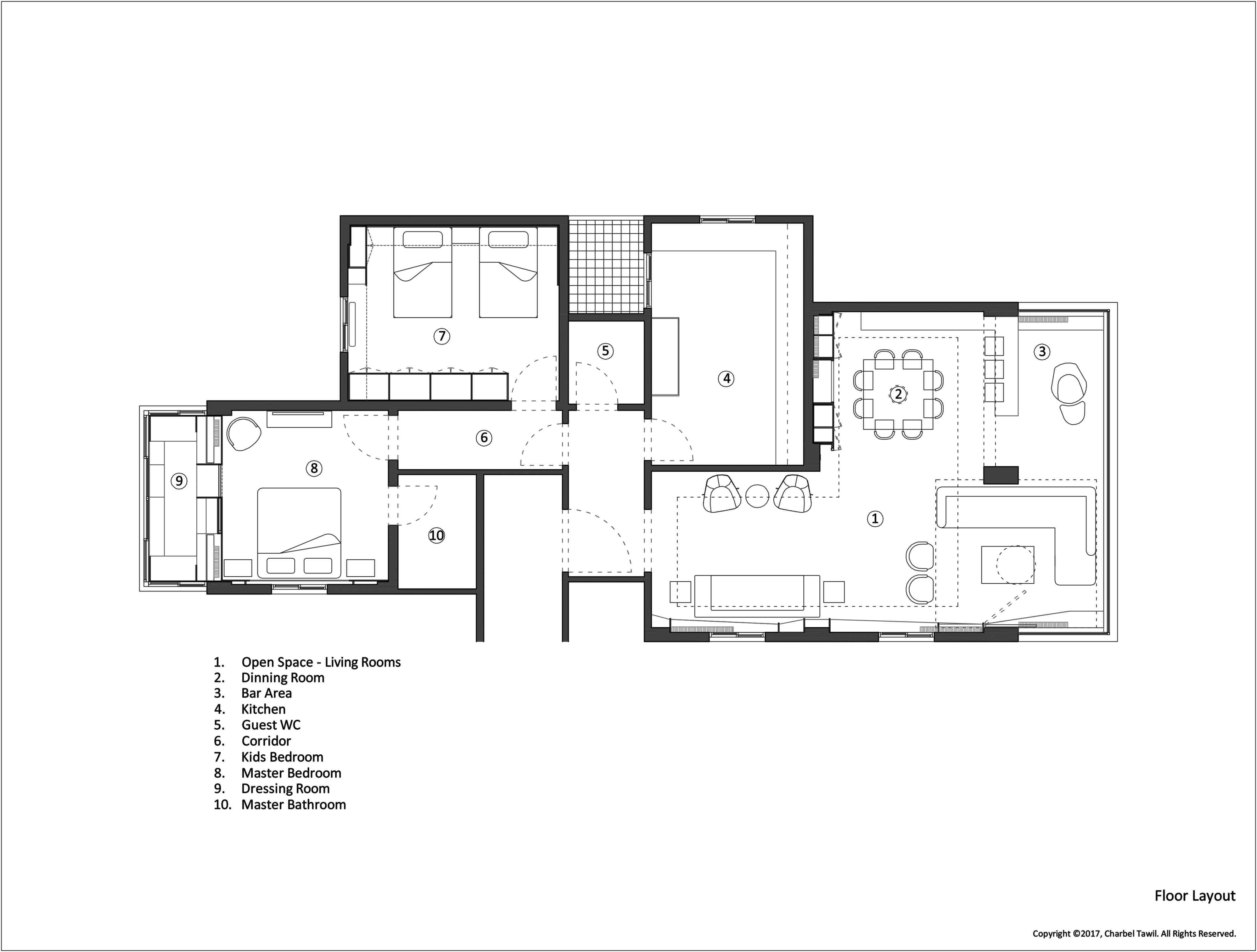
In Jounieh, on the Mediterranean Sea, the apartment is urban but nevertheless cozy, warm but open to the surroundings. It is flooded with light, but also filled with shadows, with modern engineering and using natural materials. These were the first clear concepts agreed with the owners for their future apartment. Materials are light, contrasted with colorful and vibrant furniture. The volumes consisted of light wood veneer, shiny white wood with the repetitive geometric volumes.
客服
消息
收藏
下载
最近
















