查看完整案例

收藏

下载

翻译
Architects:Yasuhisa Makino Architect & Associates
Area :50 m²
Year :2022
Photographs :Koichi Torimura
Construction :SEIKEN
City : Ota City
Country : Japan
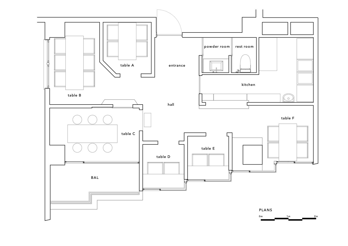
This is a plan for a yakiniku restaurant in a tenant building near Omori Station, where there are many restaurants. In this bustling neighborhood with many restaurants, there are already many competing restaurants, so we decided to make all seats semi-private in order to differentiate the restaurant from others.
When the existing interior was dismantled, traces of GL bond and the remaining concrete frame and rough concrete blocks were exposed. In order to make effective use of the limited space, we chose to use the existing frame without modifying it, and for the new interior finish, we selected tiles with a material feel that is as good as the existing frame.
The tiles were carefully ground one by one to remove the glaze from the surface, in order to give the tiles an earth-like texture, the very material itself. The black tiles were ground to reveal their original color and yellowish tint. The black color is used separately for the hall and the warm yellowish-mottled color is for the private rooms.
The guest rooms are located by meandering the H2.1m partition like a stroke of a pen, while the floor plan takes its cue from the zigzag design of the building façade. The guest room entrances and exits were made in the form of short "nijiriguchi"-like inequilateral triangular openings, creating an open yet highly private space.
The interior is illuminated with spotlights to bring out the volume of the tiled surfaces. The tiles illuminated by the light express the grinding marks of careful handiwork and the generosity of the materials. The aim was to create a cave-like space that envelops the simple dish of grilled meat with the strength and softness of the earth.
▼项目更多图片
客服
消息
收藏
下载
最近






























