查看完整案例


收藏

下载

翻译
Architects:Archohm
Year :2022
Photographs :Andre J. Fanthome
Structural :Lkt Engineering Consultants Ltd.
Design Team : Sanjay Rawat, Amit Nigam, Amit Kadam, Kashyap Tidke, Naveen Rawat, Mayank Gupta, Anshuman Dwivedi, Shazad Ahmed, Devender Rawat, Varsha Akshay Varnekar
City : Mumbai
Country : India
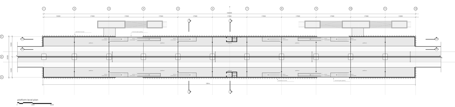
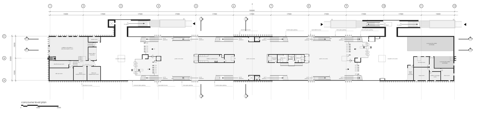
Mumbai Metropolitan Region Development Authority is also set to open the first few metro lines. These stations are designed by architecture practice Studio Archohm. Mumbai metro stations have been designed with a variety of crucial details in mind, from vertical louvers that give a monolithic appearance to the actual frames that provide much-needed rain and sun protection.
The metro station color scheme orientates the city with its commute system. The minimal interiors and materials keep the ‘building’ in the background of its commuters. All utilities, lights, and pipes have been hidden meticulously while remaining functional. Controlled use of glass and aluminum has been done to withstand the sea salt and rains. Last but not least, the metro columns and the viaducts that span the entire Mumbai are marked with a crisp color line that does add to the visual chaos of Mumbai but as navigation signage. Andre J. Fanthome of studio Noughts & Cross has masterfully captured all of this.
Sourabh Gupta, Principal architect, Studio Archohm said "This was an apt opportunity to explore and express the power of design instead of the usual expectation of mere decoration. The idea was to conceive an avant-garde system, a kit of parts that can adapt and still keep its identity intact.
We started with picking every pain point in the experience and the image of a station in this insanely dense and tight metropolitan morphology. Thereafter we systematically addressed each one of these issues with clean and clear architectural solutions. It was a challenge to maintain the aesthetics at the city level while being distinctive to the place and context at the local level. The access points, the entries, the art, and the graphics would make each space seemingly similar space into a powerful place for commuters from inside and the citizens from outside the station.”
▼项目更多图片
客服
消息
收藏
下载
最近



















































