查看完整案例


收藏

下载
设计或许是一个全面展示人物(任何一个在场的人)的过程,不定的变数也是塑造更多可能性的契机。自己动手设计的乐趣所在,或许就来源于整个过程中的不同情绪体验和反馈,人与空间在互相推着前进,往彼此最融洽的方式不断磨合着,并最终呈现出自己内心所想的空间模样和生活方式。在有“东方夏威夷”之称的三亚,青年建筑师刘硕同样亲自动手,为家人改造了一座【海上的石屋】,以供每年避寒度假使用。由于并不是长期居住,在改造和设计过程中,优劣势并存;从外立面到室内,链接整个地形环境,考虑风向与阳光,以及不同材料的使用…...一座仿佛是隐匿于海岛的石屋花园缓缓进入眼帘。
01项目挑战
项目概念模型本案位于海南省三亚市陵水县香水湾,面朝大东海海岸线,遥望边界周岛,建筑距离大海不到100m为整个改造计划带来“完美契机”。项目所处地块长43m,宽21m,三面有约2.5高的围墙围合成院落,面海方向无围墙,院子入口朝西北方向,临海的院落朝东南,清晨整栋建筑和院子都能沐浴在阳光下。原建筑采用了坡屋顶,屋檐从外墙悬挑出约1m的距离,充分起到避雨和遮阳的作用。向外则是邻海的室外花园。
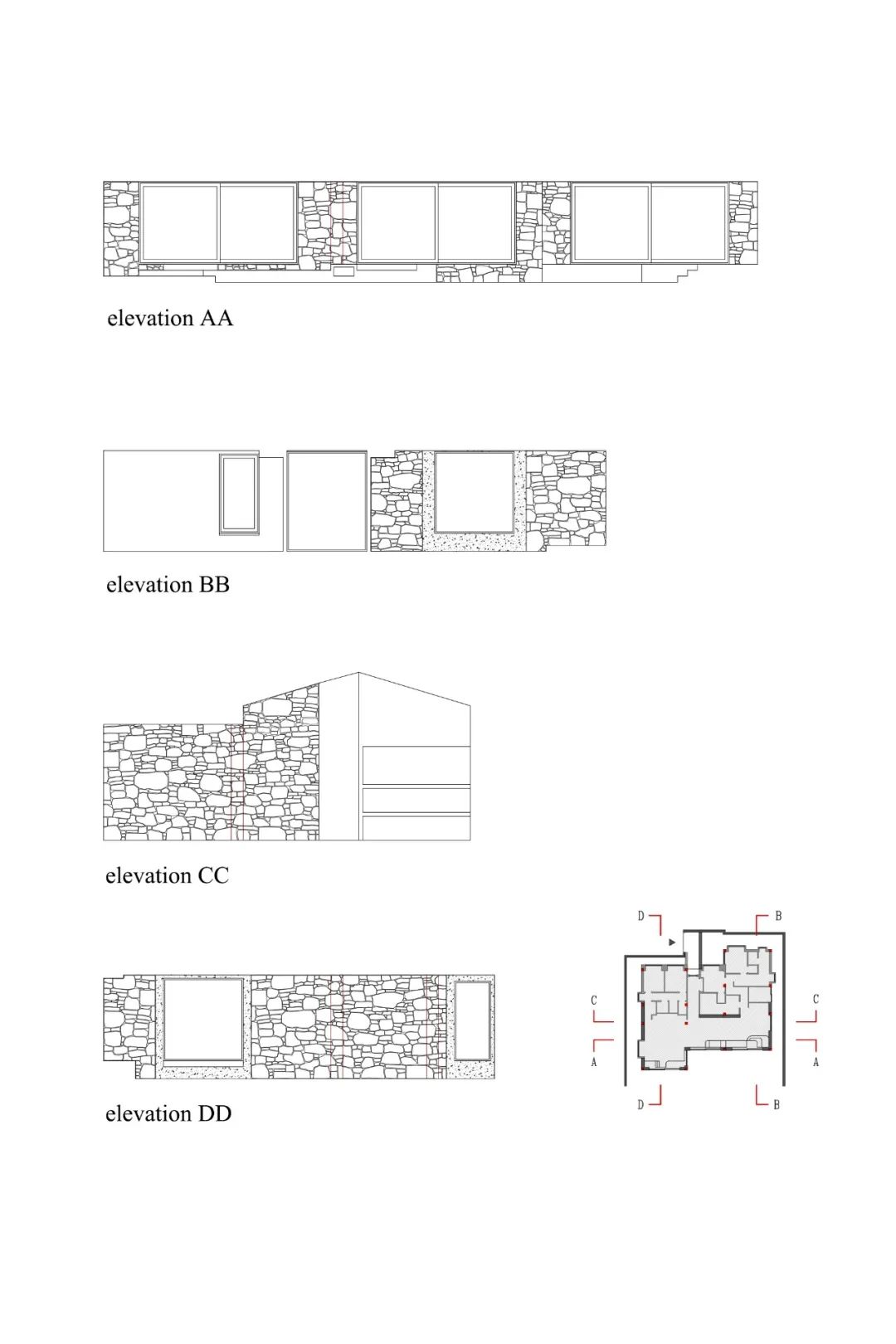
项目所在位置但原建筑的风格、结构布局以及选材上存在一定的缺陷——木饰面材料易受腐蚀,维护成本高;室内外空间动线不畅;功能区间无法满足多人度假使用;视觉与听觉二者的有效平衡——如何享受浪漫海边风景的同时避免海浪声惊扰美梦。设计师针对以上待解决问题作为改造切入点,拆除承重柱之外的原始墙体,并新建墙体,重新进行室内布局。连接室内外,让建筑本身于周围环境产生联系、发生关系;增加可供场景使用的功能区,调整卧室位置并增加房间数量;保证采光与通风,选择耐腐蚀且有美感的材料,令整体融入当地,并释放符合居者的情绪能量。
拆除原始墙体,保留承重柱以承重柱为基础,新建墙体,重新布局
↑ 改造前↓ 改造后
设计以私密性到公共性为逻辑进行空间布置,将院子入口沿着海边的方向,整座建筑都尽可能设置大落地窗。卧室移向内侧,其他公区依次放入;放眼望去,先是室外的“悬浮”平台(过渡空间),再是花园,再到下沉的室外石头小屋,再到开阔的室外花园;沿着小屋旁的石阶,爬上屋顶,远眺整个海岛世界。最大限度地贴近自然,感受自然。放眼望去,是青葱绿意,是悠扬海风,是可以赤脚奔跑、自在放空的“新世界”。静谧感与海浪的声音在此刻仿佛形成一首首有节奏的音乐,每个人都可以在这里按照自己的频率起舞。
02材料,石头,自然
材料选择是本案的最大重点。由于腐蚀性强的高盐空气,设计排除了常用的金属和木头,在实际探访和深入了解部分当地民居的使用情况后,刘硕决定选用肌理感更偏向自然原始的石头。设计师与施工师傅亲自到附近的采石场挑选,对石头大小、重量进行判断。
↑ 采石现场由于石头的大小不规则,墙体的砌筑找来经验丰富的老石匠,在一堆碎石块中,像拼拼图一样,寻找下一块契合的形状,在毫无秩序中,寻找内在的逻辑。转角,凹缝,突起,与不同材料相遇的边界,不同色彩的碰撞,一块看似简单的石头墙,在现场进行了复杂的思量和调整。
[1] 现场拉线作为墙体的边缘参照[2] 寻找合适的石头作为墙体转角[3] 石墙与砖墙的拼接(不规则砌体与规则砌体)[4] 在墙体中砌筑窗洞[5] 在墙体表面刷白漆[6] 在石墙中预埋管道
↑ 工人利用白水泥进行人工勾缝室内外选用相同石材,形成视觉统一,并保持使用者身体对于建筑肌理的触感反应——一种比较直观的人与建筑材料产生的深层联系。放松是度假的目的之一,加上建筑师刘硕本身对自然情愫的把控,每一块形状各异的石头“拼接”于此,凝聚属于它们独自的温度,与天气也发生联系,彰显它们丰富多彩的内心。
03光,空间轨迹
刘硕认为,【光,揭示出建筑,凿空原本体块中的黑暗,让一切生动了起来。】尤其是自然光,从一开始便参与在建筑设计之中,不同时段、不同位置、不同光影的营造,都会影响最后的呈现效果。光影不仅仅是一种氛围的呈现,它更是调剂居者情绪的神奇魔盒。试想一下,光和人的内心就像两条不定性的线条,谁也不知道它在一天之内将会以何种方式出现,或者以何种形式展示自己的动线痕迹。而这一切都在缓慢的时间里变成一种趣味探索,好似在告诉人们:放慢你的步伐,在日常里体验日常,重获新的观感、听感、触感。
设计在公共空间面海的立面,开了三面大窗洞,满足人在室内任何角度都可以欣赏室外光景;沿建筑外沿设置一条宽1.5m的室外平台,高出室内地面45cm,同时也高出室外的草地一定的高度,从远处看,像是一块漂浮的甲板。
↑ 轴测图,从室内往室外看↓ 轴测图,从室外往室内看
平台完成面使用水洗石作为材料,赤脚踩上去有些许凹凸感,和室内光滑的水泥形成触感上的差异。进入花园,由于平台和草甸之间的高差,需要轻轻的往下跳,此时脚掌便能体验到瞬间的如地毯般柔软的享受。平台除了作为在室外休憩的停留空间,也成为一个从“里面”到“外面”的过渡空间,设计师则通过高度变化,材质触感的反差,委婉的提示空间性质的剧烈变化。
在花园的中部,将地面凹陷,与周边形成高差,缓坡因此形成。在靠近围墙的区域种植到腰部高度的粉黛乱子草,其他区域铺设普通草皮。
本案在形体上有强烈的几何感,使它创造了一种与周边环境截然不同的语言,但它又没有完全打断环境,仍然以某种方式与自然产生联系。建筑所采用的材料就是其中一种体现,采用当地的自然石材,融洽进入它所在的场地,挑台、台阶、坡地中的矮石墙,好像成为了自然的延续,又形成了新的制高点。
↑ 轴测剖面图 | 小屋地面低于室外坡地1.5m ↓
建造是一个繁复的过程,但又是一件充满乐趣、惊喜与感动的事情。其成就不在于设计师完成了这个动作,而是在不断推进动作完成中所发生的每一个细节,都是人在大地之上与自然万物的对话,是对自我和生命的又一次洗练和思考。正如设计师刘硕所说,“在这个‘空间营造’的过程中,材料、构件的连接以及空间的跨越和围合,都需要面对和克服地球表面的重力,遵循着一个基础法则,即‘形式的重力法则’。这让我想到了Yves Klein的色粉画,蓝色的色粉被深浅不一的洒在水平的巨大画布上,作品介绍中最打动我的结尾就是‘地球的重力,是最好的色粉粘合剂’。尊重自然,运用其中的法则,石头墙稳稳的屹立在那,给我们身体和心灵上的庇护。”
项目名称 | 香水湾A38#
项目地点 Location | 海南三亚陵水县,中国
建筑/主持设计 Architect | 刘硕
结构设计 Structural Design | 刘冒佚
建筑面积 Architecture Area | 160m²
院落面积 Plot Area | 800m²
完成时间 Project Finish | 2017年
项目摄影 Photographer | 王欢 刘硕 彭杨
项目类型 Building Type | 住宅(建筑改造+室内设计+景观设计)
建筑材料 Material | 石材荒料 页岩砖 水洗石 混凝土
客服
消息
收藏
下载
最近
























































































