查看完整案例


收藏

下载

翻译
Architects:Marcos Duffo, Mariana de Delás
Area :59 m²
Year :2019
Photographs :Imagen Subliminal
Manufacturers : JUNG, Parador, Jallut Pinturas, Nuarco Construcción, OvalampJUNG
Lead Architects :Mariana de Delás, Marcos Duffo
Design Team : Equipo
City : Madrid
Country : Spain
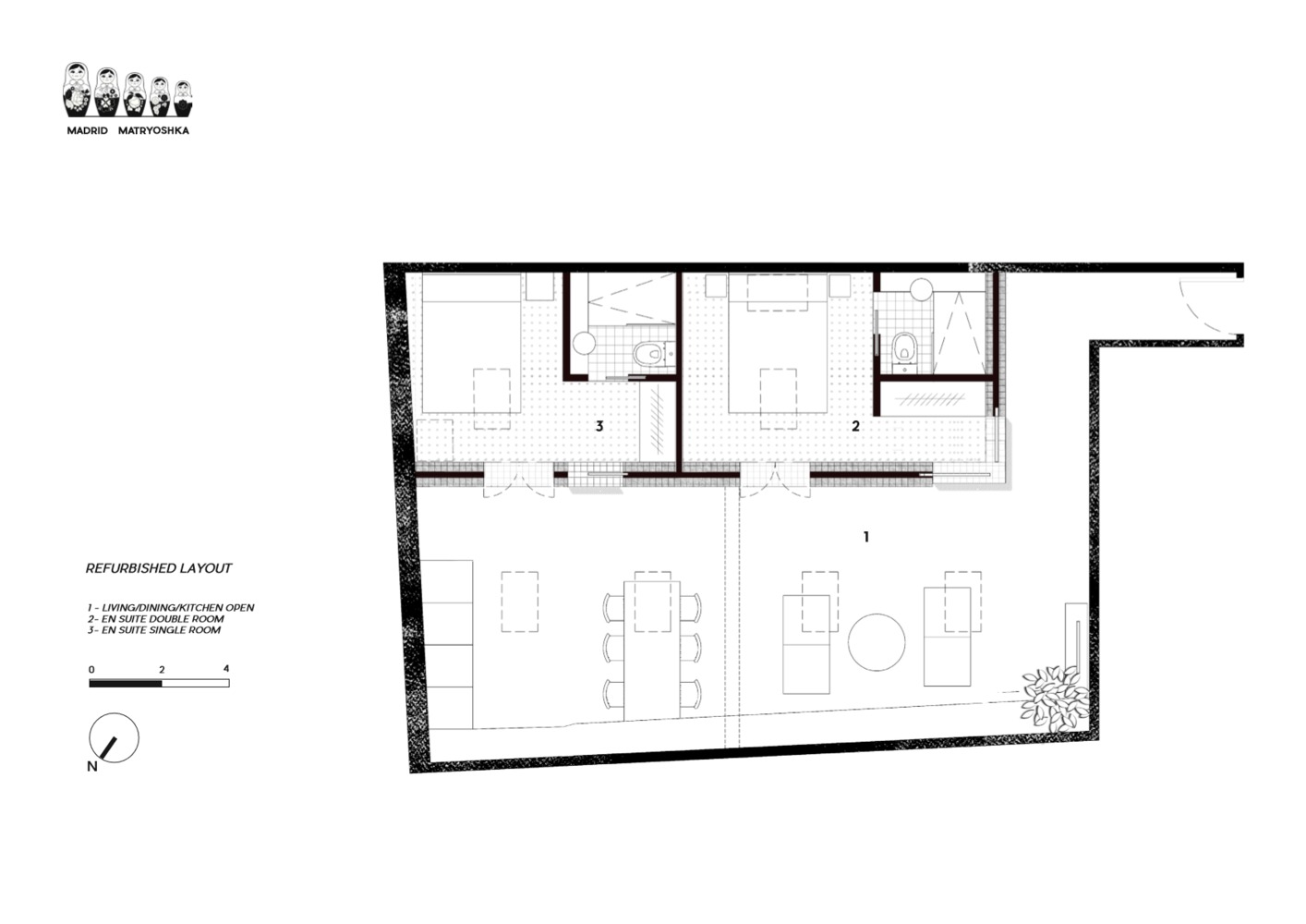
This 58 sqm attic sited in the center of Madrid was formally divided into many small rooms which were accessed by a central hallway. All light and ventilation came in through tiny skylights along the continuous slanted roof plane. The client had a very tight budget and insisted in wanting two complete bedrooms with their own bathroom as he envisioned the apartment to be ideal for university student rental.
The first gesture to accommodate the program was to clean everything up, demolishing all partitions and sanitary elements followed by unifying the disperse skylights to make them bigger, more in number and structured. As much of the apartment was quite low in height, bringing as much light inside as possible was primordial. Once light and order were fixed, to implement the program, the main proposal was to create a single elevated volume which would concentrate and optimize the space by generating the two ensuite bedrooms. This new volume keeps the top of exterior partition counter slanting perpendicular to the main inclination making the tallest point of the exterior roof visible throughout the apartment , thus increasing the sense of amplitude and continuity.
The elevation by 40cm of this volume adds a sense of privacy to the rooms towards the main common area and at the same time allows for all installations, services and sanitaries (MEP) to be installed underneath , giving more flexibility to the plan layout and avoiding to break roof and walls to pass installations thus making the works faster and more economical. To finish up this volume, it was decided to coat it with a solid tiled plinth making it resistant to use and giving it a fresh mediterranean look. On top of this new partition and slanted roof , glass openings are also introduced to double up the light coming in and out of the private and public spaces. The main common area is kept as open as possible where future tenants will be allowed to decorate and finish as they wish.
▼项目更多图片
客服
消息
收藏
下载
最近






















