查看完整案例


收藏

下载

翻译
Architects:tda
Area :220 m²
Year :2017
Photographs :Federico Cairoli
Collaborators : Magali Ibarrola, Marcelo Sanz, Luis Landivar.
Structural Design : tda® + Enrique Granada
Structure : Enrique Granada
Construction : tda® sa
Author Architects : Miguel Duarte, Larissa Rojas.
City : Lambare
Country : Paraguay
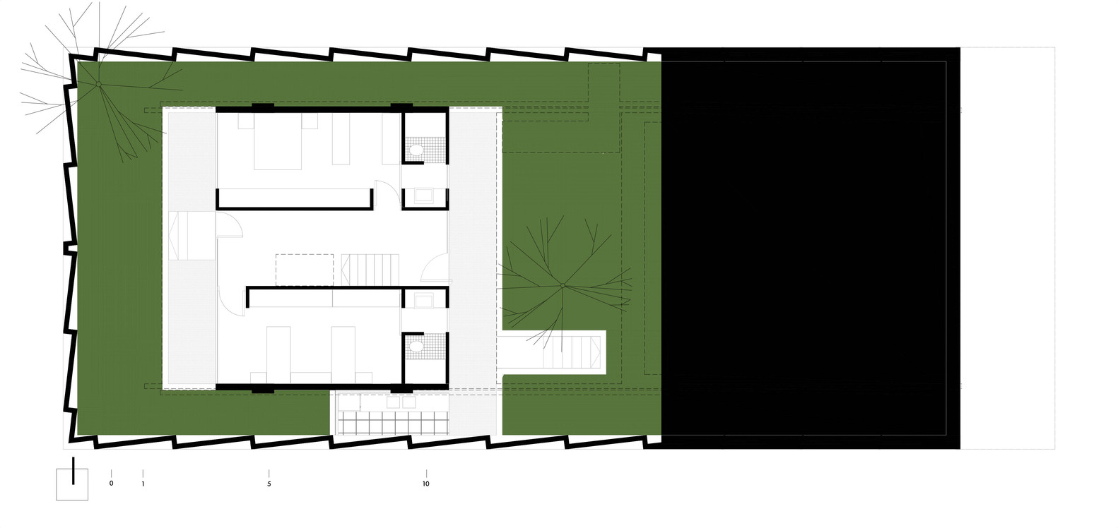
A plot of 12x30.Irregular terrain surface (counter-dependent in relation with to the street)Soil with low mechanical strength.Because it is a developing neighborhood, security was a major factor.
A solution could be proposed by graphing reality, assuming it as limiting, understanding that all those issues that make this opportunity unique must be respected and accompanied, and that we can only order them functionally.
But... we assume a different role, we draw not only what exists (reality), but we also force ourselves to state the reality we need, the one we do not have but urgently crave.
That reality that we do not know, that seduces us but at the same time that offers no certainty.
Consequently... we would produce knowledge based on experience. to the purest say of the renowned Ernesto Sabato, when he writes.
"A creation is one that in something perfectly known finds new unknown aspects".
Take familiar issues, and with them raise something new.Topography, Resources, Needs, Economy, Materiality ... Pre-assumptions.
In this first period (football speaking)The block that shelters the family is built.
Using the topography as an excuse, the private area, it is located in a semi-level and the public room and kitchen dominating the landscape.
In a second period, the same block will appear, but in front,but only as cover, constituting the gallery, garages and the grill.This new structure contains the pool.A system of internal routes arranges the house in all its development.An internal patio generates the necessary light and ventilation.
The structure names and arranges. The blind sides treated with a rough envelope in broken common brick, provides identity in addition to thermally conditioning the interiors.
▼项目更多图片
客服
消息
收藏
下载
最近




































