查看完整案例


收藏

下载

翻译
Architects:dmp arquitectura
Area :0 Area
Year :2019
Photographs :Onnis Luque
Manufacturers : AutoDesk, Cappa, HM Bloques y Adocretos, Interceramic, Moctezuma, TrimbleAutoDesk
Lead Architects : Carlos Díaz Delgado, Carlos Díaz San Pedro, Carlos Posadas Castañón
Design Team : Manuel Bernal, José Luis Martínez, José Luis Ponce, Guadalupe Palma, Alejandro Salinas, Abraham Ballesteros, Mauricio Morales
Engineering : Mario Romero
Collaborators : SB Urbana - Carlos Posadas Castañón
City : Ciudad de México
Country : Mexico
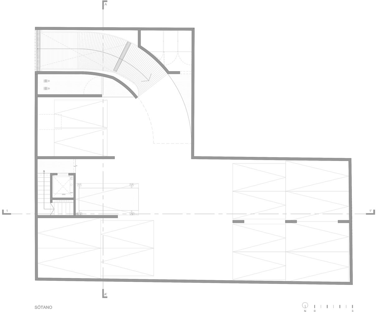
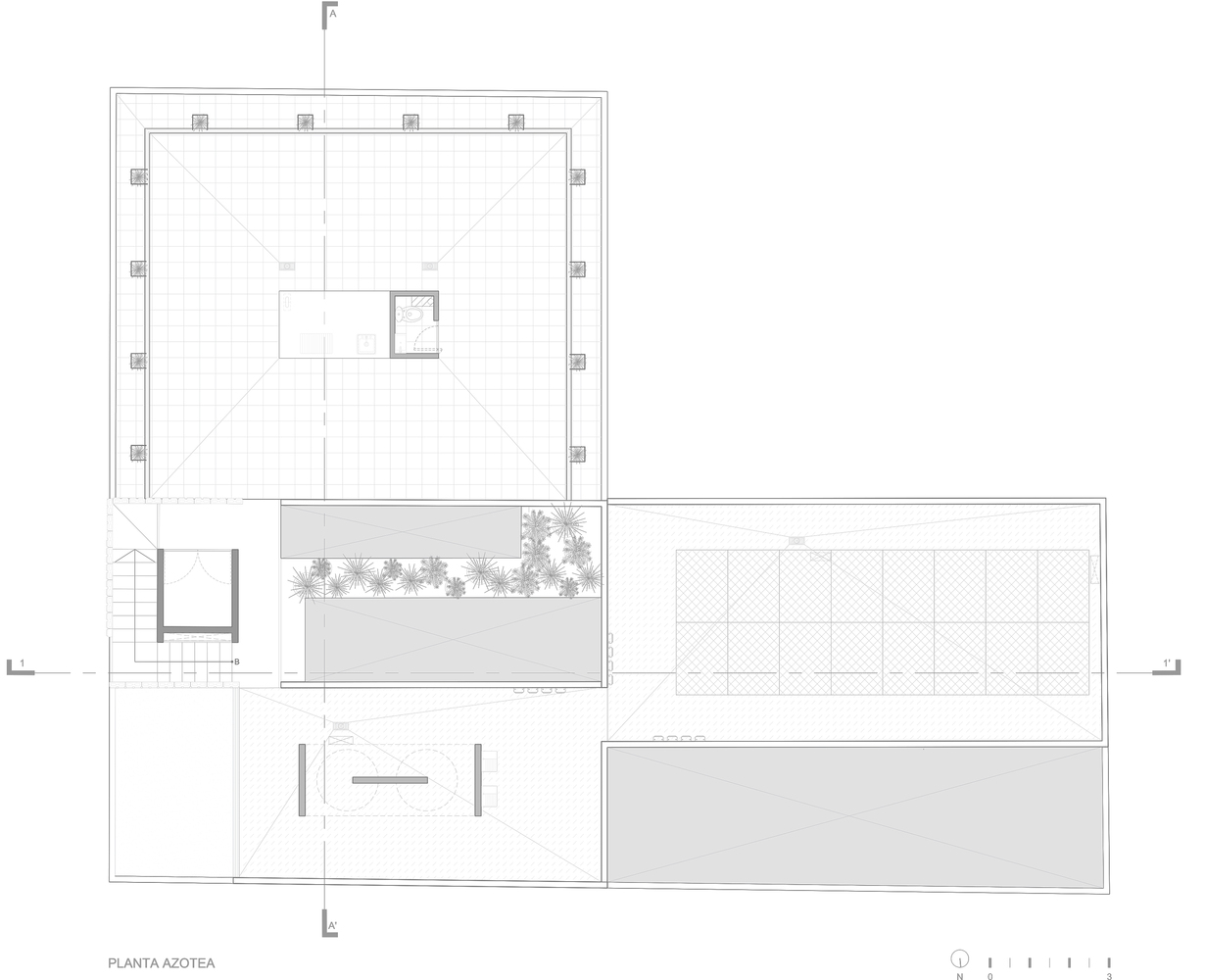
The Project lies in the middle of Mexico’s busy streets, which led us to solve complex challenges and take specific decisions in terms of location, orientation and materials. The property has 16 apartments distributed on four levels, also two basements, an elevator cube and a destinated area for storage.
The typical floor was solved from 4 apartments interconnected with vertical circulations through concrete bridges, robust pieces of apparent structure joined by a system of steel railings generating protection and thus creating an area in which all the residents move freely.
The texture of the black rustic block that predominates on the facades supports visual integration and protection due to the closeness of the property to the peripheral. The location is somewhat hostile owing to a lot of vehicular traffic and noise. The block due to its characteristics and thickness helps mitigate the adversities that the environment generates in the building; to balance the hardness of the texture, planters and flowerpots were integrated as design elements throughout the entire facade and common areas, accompanied by a flora palette based on Jasmine flowers and cheese plants.
▼项目更多图片
客服
消息
收藏
下载
最近





























