查看完整案例


收藏

下载

翻译
Architects:RipollTizon
Area :343 m²
Year :2018
Photographs :José Hevia
Manufacturers : Arper, Flos, Huguet, Hunter Douglas, Hunter Douglas Architectural (Europe), Nadal MobiliariArper
Author Architects : Pep Ripoll, Juan Miguel Tizón
Collaborating Architects : Pablo García, Erik Herrera, Carlos Antón
Quantity Surveyor : Toni Arqué
Structure Calculation : Hima estructuras
Installations Calculation : Media-Tec
Builder : Movigrup
Promoter : Caja de Arquitectos S.Coop. de Crédito
City : Palma
Country : Spain
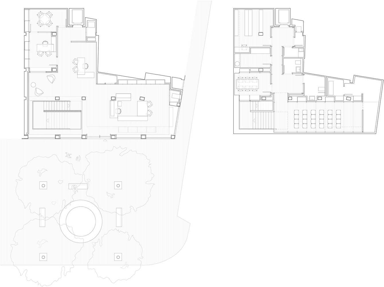
The commission is an integral renovation accommodating a reference office of the brand Arquia Banca in the city of Palma, Majorca. Located within a pre-existing corner building in residential use, it occupies ground floor and basement areas of comparable irregular geometry and square footage. Exposed front façade is long, has openings determined by structural components and interacts with broad tree-lined pavement functioning as a plaza.
This new office is perceived as an extension and enhancement of the public space. Open, accessible and with a direct interior-exterior relationship, it was intended as a large display exhibiting the banking experience itself. The exposed internal activity progresses within a single space composed of different zones related to each other according to their required degree of privacy and attention.
Structural modifications have been made to, among others, enable access at street level and introduce a void connecting both stories. Opening the space up articulates the different areas of the branch, invites natural light into the basement and accommodates a newly-added staircase between the levels.
The spatial arrangement takes advantage of the L-shape of the property and is determined by transitioning from public spaces, located towards the front, to private ones, further away both in plan and section. Finally, confidential and storage facilities are situated at the back against the enclosing wall.
A modest number of materials has been used, all sourced locally. The materiality of the project supplements the spatial proposal. A sequence of pine vaults covers the areas of interaction with the clients. This new ceiling smoothly incorporates the pre-existing pillar grid and aims to create a warm, welcoming atmosphere accompanying the banking experience. Vertical walls employ the use of pine timber as well, in addition to lacquered MDF boards. Lastly, the floor finishes are polished hydraulic tiles and cement, for the areas occupied by clients and remaining ones respectively.
▼项目更多图片
客服
消息
收藏
下载
最近































