查看完整案例


收藏

下载

翻译
Architects:Stéphane Beel Architects
Area :9374 m²
Year :2015
Photographs :Luca Beel
Structural Engineering :Ney & Partners
Engineering :VK Engineering
Building Physics And Energy & Acoustics : Daidalos Peutz
Landscape Design : Ludovic Devriendt
Client : UZ LEUVEN &Z.org
Architects In Charge : Stéphane Beel, Inge Buyse, Arunas Arlauskas, Karolien Noyez, Lando De Keyzer, Alexis Lagae, Sophie Deheegher, Tom Cortoos, Wout Vandriessche
Building Physics : Daidalos Peutz
Acoustics : Daidalos Peutz
Energy : Daidalos Peutz
City : Leuven
Country : Belgium
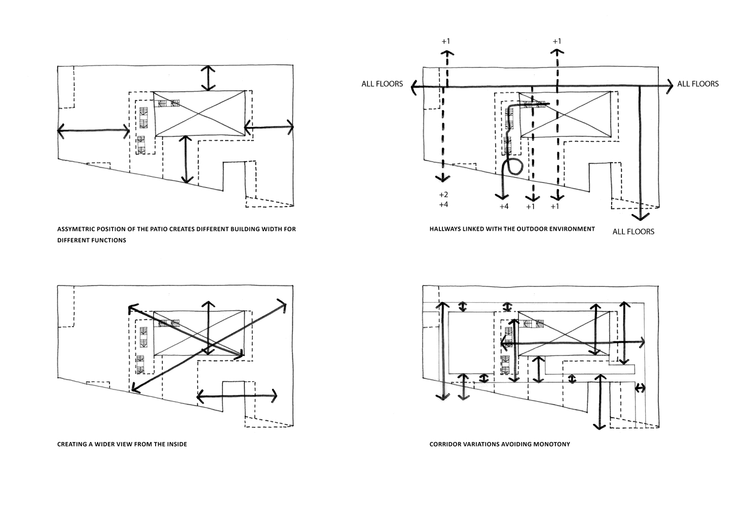
The psychiatry building is part of AWG Architects’ master-plan for the further development of the UZ Gasthuisberg campus. It is structured around an internal patio. The exentrically position of the patio allows the creation of different sections for large therapy rooms and for smaller spaces such as patients’ rooms.
The master-plan sets out measures to create an urban context, which include creating density and differentiation in the public space, and building a diverse range of streets and squares. This will enable the open ‘green’ zones around the site to be safeguarded.
The entire site is surrounded by a new ring-road, and a number of ‘main streets’ run through the site to create structure. The psychiatry building, designed by Stéphane Beel Architects, is located on the edge of this master-plan zone, in between the ring-road, the green zone and one of the main streets. The master-plan allows for a building volume of five storeys.
The central patio is covered with a sliding greenhouse roof, which creates a tempered outdoor climate. This increases its potential uses, as well as having a positive effect on energy consumption.
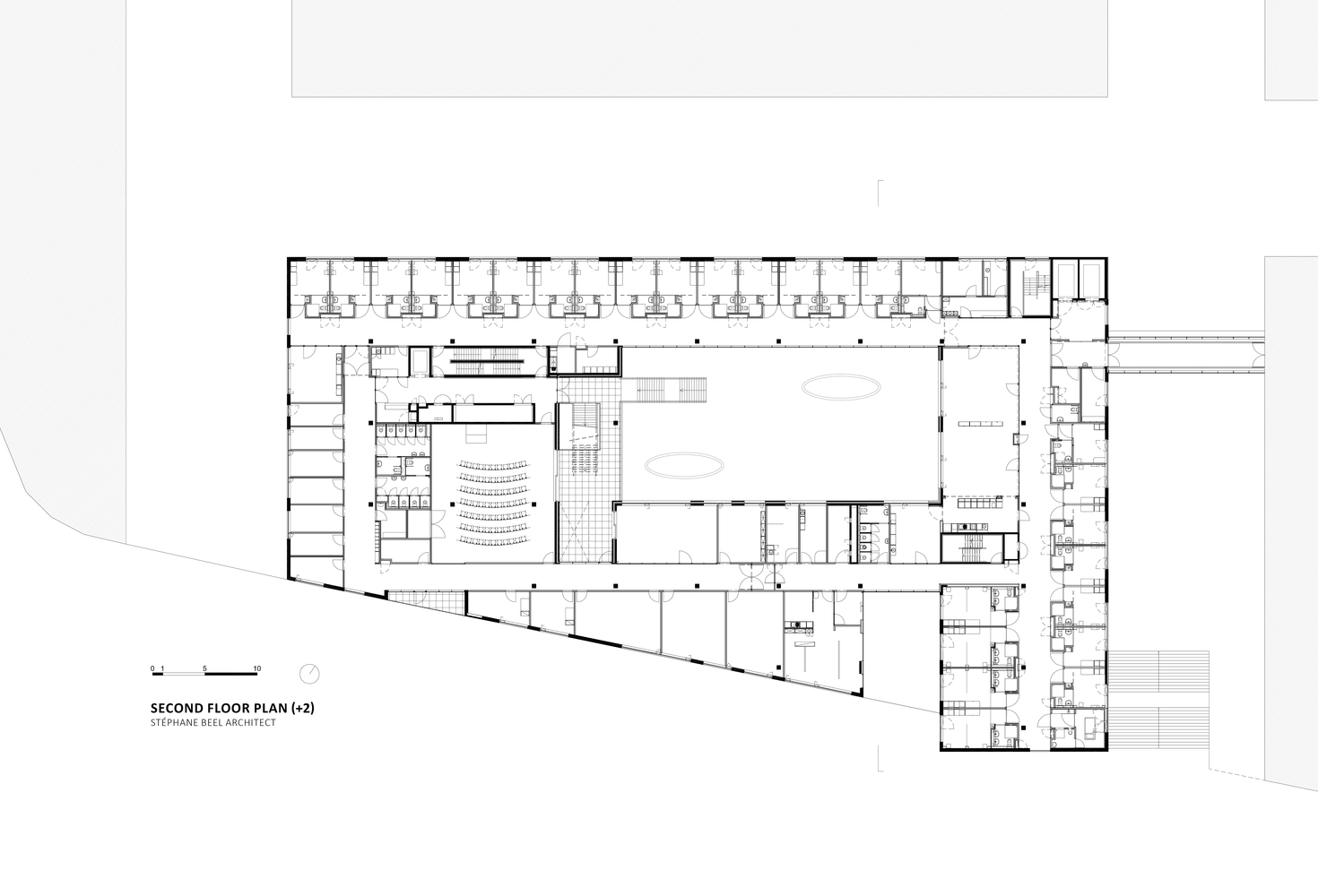
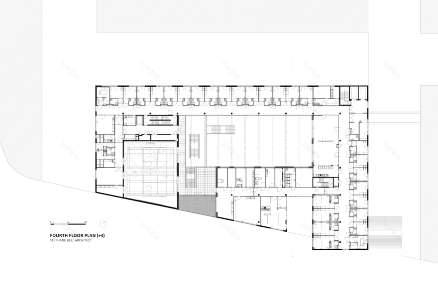
On the ground floor, adjacent to the main street, are the public functions: the reception area, consultation rooms, training and administration rooms. On the first, second and third floors are the hospitalisation units, together with their respective therapy areas. For structural reasons, the double-height sports hall is located on the top floor.
Much thought has gone into choosing the right materials and decoration. Perforated glazed bricks and acoustically absorbent floors and ceilings have been used to create an acoustically pleasant environment. More specifically, the rubber tiles chosen for the patio floor meet both acoustic and other requirements (safety, look and feel, etc.).
Look and feel studies were carried out for the entire interior decoration. A lively colour palette was created to complement the champagne-coloured masonry and it is by no means sterile. Although this is a hospital, the idea is to create an environment that feels both homely and safe. Based on detailed research, a standard room was designed with a colourful sliding partition to conjure up a homely atmosphere.
The advisory role played by Stéphane Beel Architects in the choice of the free-standing furniture ensured that the look and feel was implemented to maximum effect, and has resulted in a harmonious whole.
Three oval green islands have been placed in the patio, which serve to bring it down to a more human scale. This design was created in collaboration with the garden architect Ludovic Devriendt.
Product Description. The inner patio is surrounded by perforated brick-work. This material is absorbing and helps to avoid loud noises in the patio. In the whole building there was a lot of attention to acoustics. A crucial item to create a relaxing and tempering atmosphere.
▼项目更多图片
客服
消息
收藏
下载
最近




















