查看完整案例


收藏

下载

翻译
Architects:Rocco Arquitetos
Area :332 m²
Year :2021
Photographs :Manuel Sá
Design Team : Giancarlo Rocco, Luciano Ciampolini Rocco, Ana Lucia Pasquali Rocco
Engineering : Construtora Ciampolini Rocco
City : Ibiúna
Country : Brazil
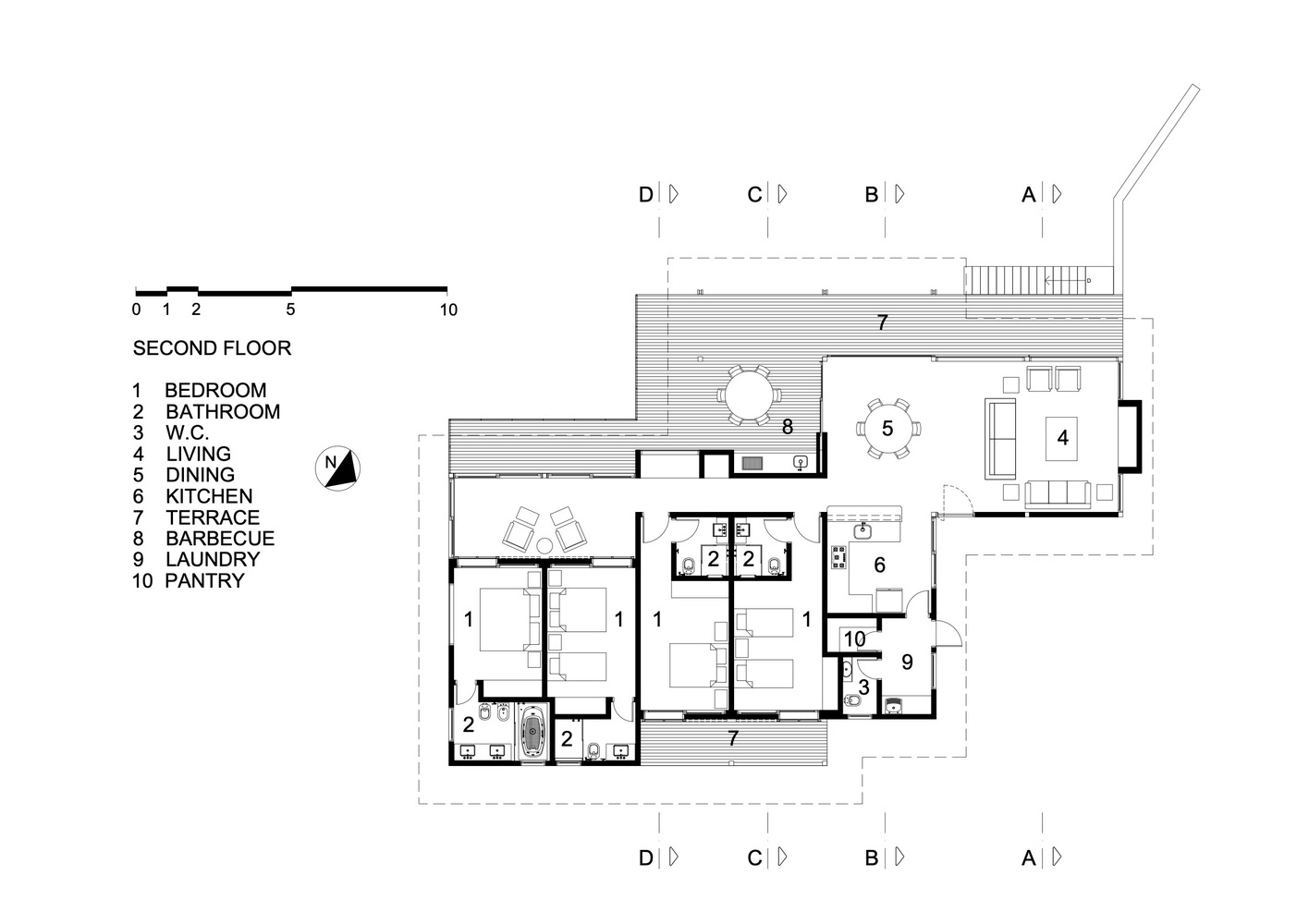
The difficult plot, with accentuated slope, exuberant native forest, and some rock formations guided the implantation of this residence. The general concept was not to promote large earthworks. It was essential to position the house at a level that would allow sunlight to reach it since the lot is completely surrounded by large trees. So the main floor was positioned at street level.
A small earthwork allowed direct access to the front of the house. Due to the large slope, the back ended up becoming suspended in relation to the ground, which ensured excellent views of the surroundings. Running along the entire length of the rear facade, a cantilevered wooden terrace was positioned at the level of the treetops. It is the main element of the house, where everything happens and from where you have the best views of the beautiful forest.
The structure of the house is made of reinforced concrete up to the main level and from there it is all exposed and executed with Itauba wood. Thermoacoustic tiles were used for the roofs. This material, apart from being very light, allows for roofs with a lower slope than conventional clay tiles.
▼项目更多图片
客服
消息
收藏
下载
最近
























