查看完整案例


收藏

下载
Stas Samkovic新作,面积146㎡,一个年轻家庭的新家,平衡的线条,永恒的形状和颜色,奢华的饰面和纹理,奥斯曼风格的元素为其增添了优雅气息,而现代家具则增添了相关性。调色板非常平静,舒缓,没有华丽的色调。
客厅的一个意想不到的装饰是装饰有De Gournay丝绸壁纸和镜子的屏风,一个不寻常的装饰壁炉、沙发、咖啡桌、地毯、落地灯、台灯。
客厅餐厅主要焦点是艺术家Ivan Glazkov的大型作品。桌子上方的枝形吊灯Corbett Lighting,底座上是一件现代艺术品 Daria Konovalova-Infante。
从门厅一开始就具有丰富的装饰,为仪式奠定了基调。
墙壁是木镶板(后面是内置衣柜),有色嵌件和陈旧的镜子。
大理石地板由带有几何图案的石灰华和黄铜框架构成。
床的两侧由装饰有De Gournay丝绸壁纸的镶板构成,床头板后面是通往更衣室和浴室的门,两侧有一个小休息区和一个带梳妆台的镜面壁龛。
主浴室采用天然大理石制成,如墙板。
,内部设计采用温暖、柔和的色调:灰米色、奶油色、巧克力色。设计师将这个项目的风格定义为柔和的极简主义:有相当清晰的几何形状和严格的可塑性,但这一切都被装饰技术、精选的材料、纹理和微妙的细节所软化。
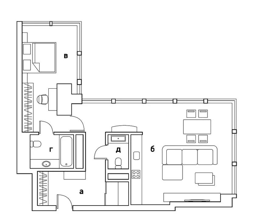
它包括一个大厨房-客厅-餐厅、一间卧室、两间浴室和一间杂物间。设计师努力创造一个现代的室内,与建筑物的水平和位置相对应,视觉上舒适,而不是过度活跃的装饰。
客服
消息
收藏
下载
最近








































