查看完整案例


收藏

下载

翻译
Architects:Flansburgh Architects
Area :17500 m²
Year :2021
Photographs :Robert Benson
Manufacturers : Cristacurva, Interface, Firenze, Tekno-StepCristacurva
Principal In Charge : David Croteau
Project Manager/Architect : Kelley Banks
Project Designer : Mike Banks
City : Guadalajara
Country : Mexico
The new High School is a bold and forward-looking approach to serving 1,500 students on the American School Foundation of Guadalajara’s current site. As surrounding properties grow taller with new development, the new 7-story open-air structure follows their lead by doubling ASFG’s academic space, maximizing green space, and providing state-of-the-art facilities that support 21st Century education.
The project’s bright colors, sculptural form, natural materials, and crisp design are inspired by Guadalajara’s cultural heritage and rich combination of traditional and modern architecture. Drawing from Mexico’s cortile buildings, courtyards, and public sculptures, the school’s design embraces the city’s architectural history and fosters community identity through themed colors.
The incorporation of lush green space connects the school to the outdoors. Plantings are deployed strategically, using water-intensive plants sparingly and placing low-water native plants in secondary garden areas. Vegetation creates a healthy environment by improving air quality, and trees reduce solar gain by providing sunshades. Functioning as an outlet to nature in an urban setting, the greenery rejuvenates the human mind.
Sustainability is integrated into all aspects of the building’s design and construction process. Over 90% of the school is naturally lit, reducing electrical loads for artificial lighting. The school’s open design, room arrangement, and operable vents promote natural airflow through and across the building. Durable concrete floors, made of 75% local sand and crushed stone, decrease the number of project materials and minimize energy costs for production and transportation. Concrete’s long thermal lag, in conjunction with Guadalajara’s diurnal temperature swing, cause the floors to radiate coolness from low nighttime temperatures. Natural ventilation and passive cooling save energy needed for air circulation and temperature control.
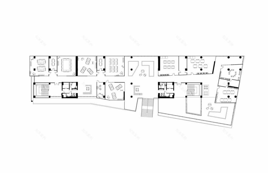
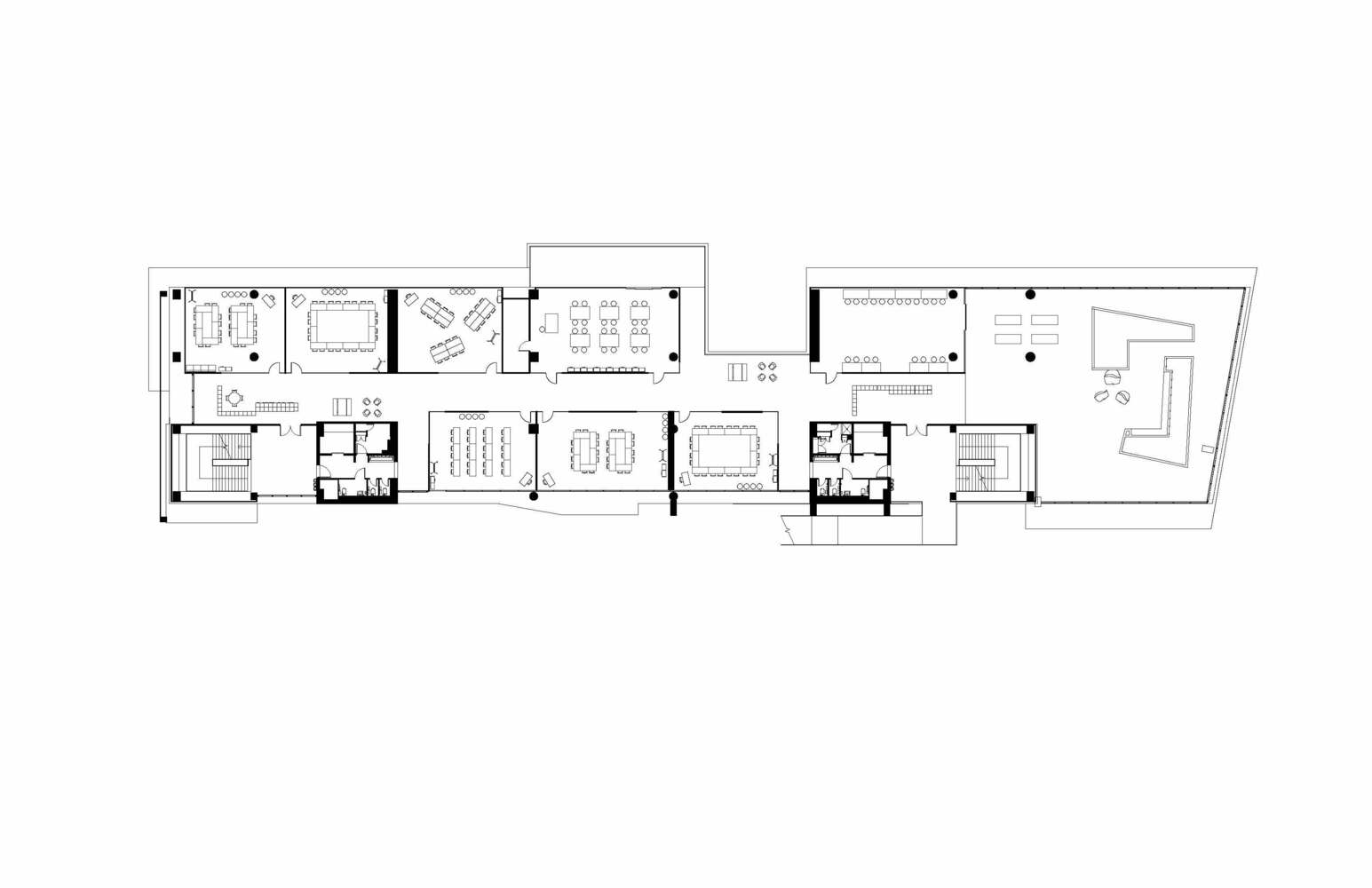
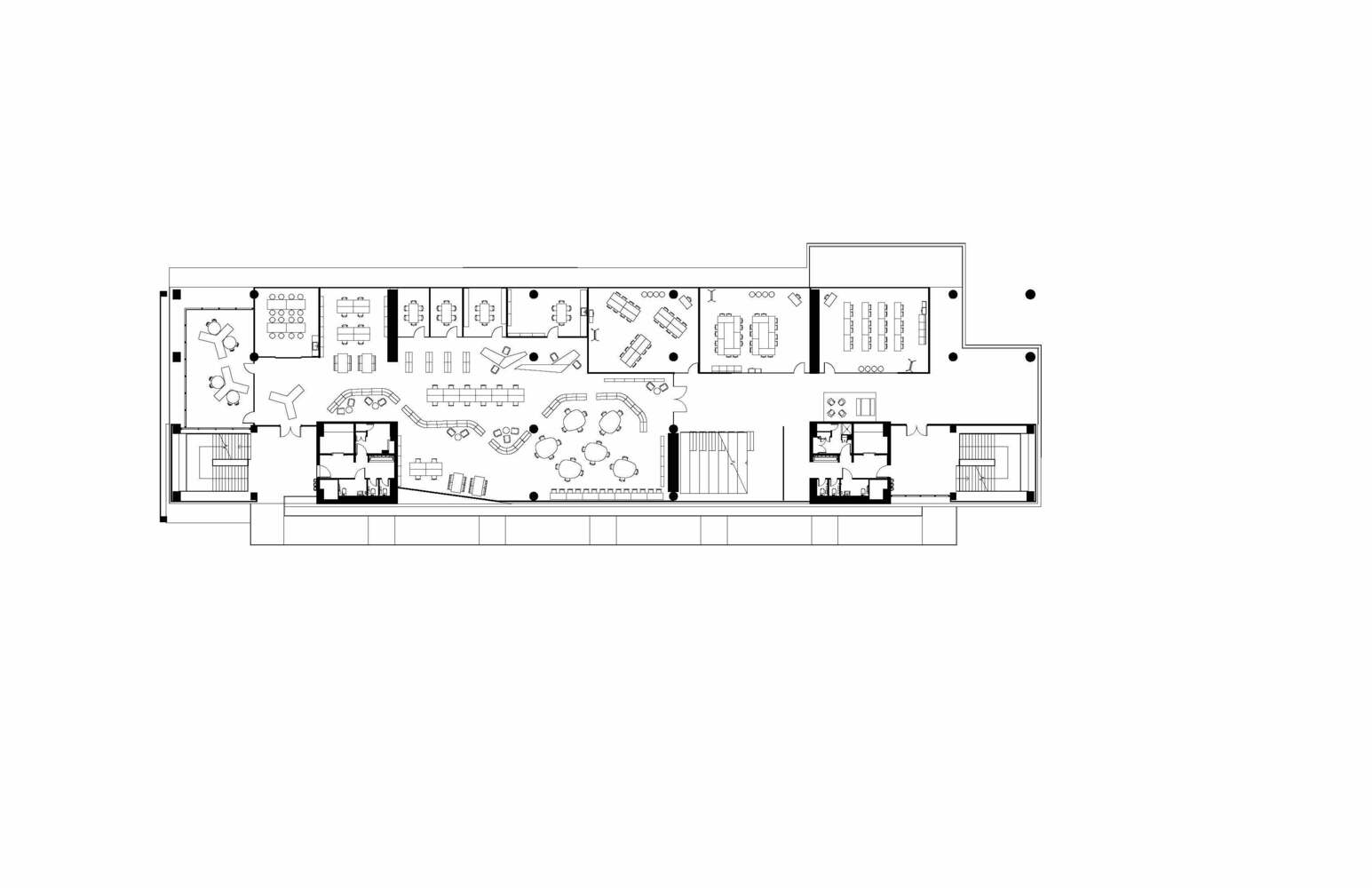
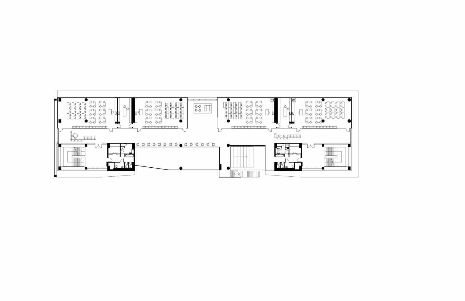
The new school includes many flexible academic spaces that support ASFG educational goals and various teaching and learning styles. Indoor classrooms have acoustical wood panels and glass walls, establishing verbal and visual connections between students and faculty both inside and outside the classroom. A new library, maker space, hands-on science lab, tiered presentation area, and collaborative common spaces create an engaging academic environment. Motivating a sense of freedom and community connection, students reflect, restore, and energize in outdoor classrooms, garden balconies, and rooftop terraces. Elevations and individual rooms are unified by a playful, vertical, meandering path. The building’s transparent design and spatial configuration stimulate interaction between ASFG’s diverse programs and grade levels.
Before developing the project, Flansburgh conducted three design workshops to better understand the needs and priorities of the school. By discussing with all stakeholders in person, the firm deeply understood the perspectives of administration, faculty, board members, maintenance staff, parents, and students. Flansburgh was challenged to create a sense of welcoming on a secure campus, expand on a small, urban site, construct while the school remained in session, and accommodate future building phases.
The result of the project is a distinctive, location-based learning environment that celebrates its place in a fast-growing city. The modern facility ultimately encourages positive education, community involvement, creativity, and environmental consciousness.
▼项目更多图片
客服
消息
收藏
下载
最近











































