查看完整案例


收藏

下载

翻译
Architects:GENS
Area :121 m²
Year :2015
Photographs :Ludmilla CERVENY
Landscape :suburbia
Thermal Engineering : TERRANERGIE
Thermal Engineering : TERRANERGIE
City : Pulnoy
Country : France
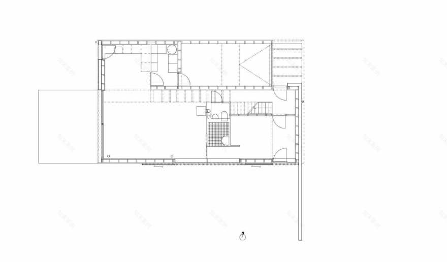
A pavilion in a development area: the neighbourhood exhibits usual banality and the land purchase obliterates a significant part of the budget. The project must also meet crippling constraints on the plot layout and height and deference to the context.
The street facade to the east fades in its surrounding: invisible plastered wall and tiles, no window. But the house is stretched as much as possible in the depth of the plot to deploy a large south facade. Her profile follows the regulation as well as the program inside.
This releases as well a strip of substantial garden. To the north is the garage, kind of a translucent barn that could accommodate extra rooms that do not fit in the budget. To the west, it is the passage from north to south.
The result is a hybrid and ambiguous object, architectural Janus which hesitates between normal and strange.
▼项目更多图片
客服
消息
收藏
下载
最近




























