查看完整案例

收藏

下载

翻译
Architects:N.A.O
Area :102 m²
Year :2019
Photographs :Shinichi Hanaoka
Lead Architects :Naoki Kato
Design Team : N.A.O
City : Hadano City
Country : Japan
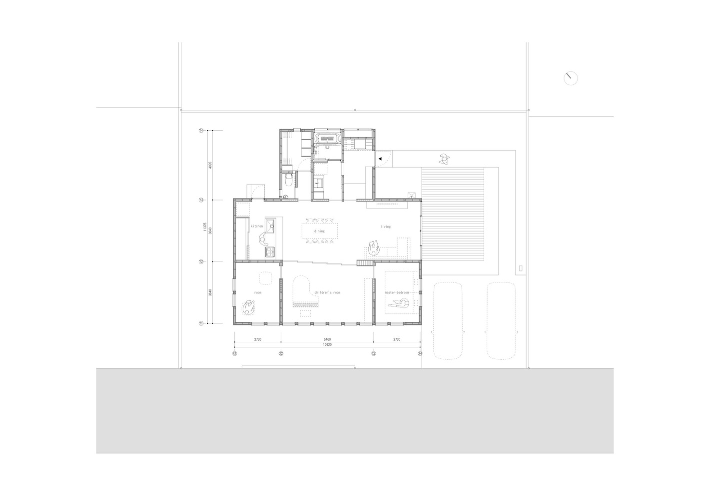
We proposed a symmetric one-story house with a convex shape and a high floor height from the three viewpoints of "site conditions," "surrounding environment," and "simple operation."
This house is not very complicated because it is not requested by the client. What I did was a simple and simple operation. In that category, it is a house that tried to propose a clear and comfortable living environment.
▼项目更多图片
客服
消息
收藏
下载
最近





















