查看完整案例

收藏

下载

翻译
Architects:Architecture School of Southeast University, Atelier XÜK
Area :7726 m²
Year :2019
Photographs :Xu Zhang, Yifei Xu, Haohao Xu, Hao Chen
Lead Architects :Xu Zhang, Kenan Liu
Design Team : Wenliang Sun, Qing Zhou, Xiaoxia Shi, Yongwei Bian, Yifei Xu
Client : Dingshu Town Government
City : Wuxi
Country : China
The large-scale limestone mining in the early years left a magical landscape in Qinglongshan Park, and now it has become a unique landscape resource of Qinglongshan Park. With the help of unique topography and landforms, the multi-function hall and waterfall pavilion form an embrace, and together with the towering boulders in the west, control and shape the core space scene of the park. The single building design strengthens the connection between the city and the landscape, man and nature.
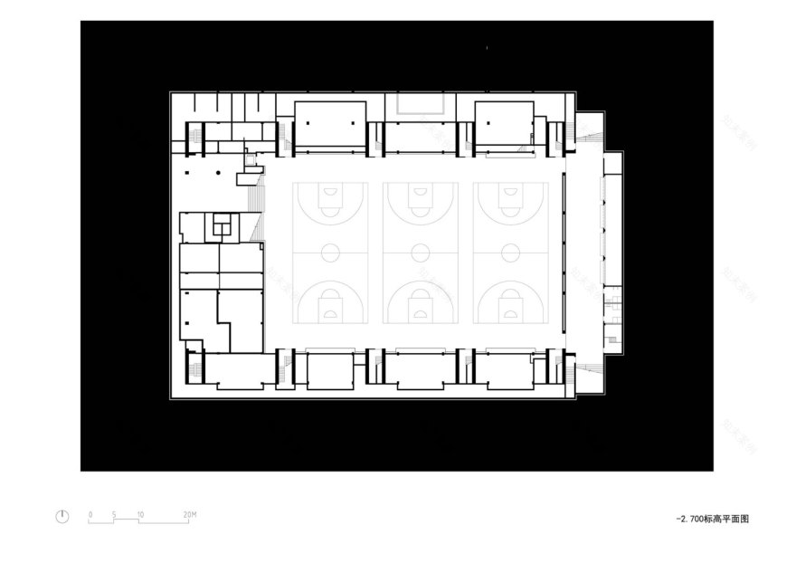
The total area of the multi-function hall is 7726m², which is composed of a fair-faced concrete mega-structure hall and a number of one-story frame-structured houses wrapped in red terracotta panels. Prestressed concrete technology achieves the hall's 38.12m span. The three basketball court-sized fields in the hall are sunk by 2.7m, forming a net height of 9m, which can meet the large space for exhibitions and ball games.
This move also controls the height, proportion, and scale of the building in the environment. The "digging" act of mining is reproduced in the process - this time the purpose is no longer to grab material from the earth, but to gain space.
The fair-faced concrete and dark red terracotta slabs represent the two kinds of local deposits that have long supported the production and life of the area - limestone mines and clay mines.
The juxtaposition of megastructures and ordinary single-storey houses reflects the spatial phenomenon in the period of high-speed urbanization in which different types of structures such as viaducts, bridges, and residential buildings and office buildings are juxtaposed in cities. Here, the choice and combination of structural types and materials reinforce the urban character of the place.
▼项目更多图片
客服
消息
收藏
下载
最近


























