查看完整案例

收藏

下载

翻译
Architects:Hugo Kohno Architect Associates
Area :219 m²
Year :2019
Photographs :Seiichi Ohsawa
Structural Engineer :Scube Co.Ltd.
Country : Japan
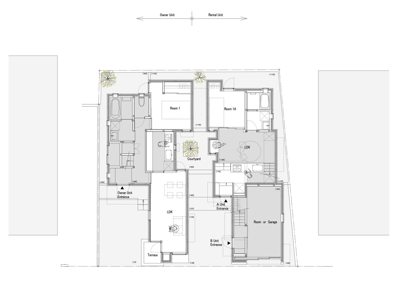
Residents of urban housing complexes can’t choose their neighbors. This project is an attempt to provide both connection and appropriate distance between the residents of a property that includes condos with long-term owners as well as rental units occupied by temporary tenants.
Each unit is comprised of interlinked boxy rooms. These units are strung together in a line with a passage-like “marginal courtyard” between each pair of volumes functioning to mediate between residents with different values and lifestyles. In addition, a series of small boxes are attached to each of the large boxes. The small boxes serve as bay windows, benches, counters, balconies, and small rooms, bringing southern light from the courtyards deep into every room. Offsetting the height and direction of these openings prevents neighbors from seeing into one another’s living spaces.
On the other hand, residents share the marginal courtyards. In addition, the design makes use of the elevation differential on the lot to create different levels in the architecture. This allows for the free linkage of spaces, with the two rental units interlocking three-dimensionally and both offering living spaces on the ground level, second floor, and south side. The boxes are tonally divided so that each time a resident moves from one box to another they cross from a white space into a grey one, creating a sensation of depth as they move between settings.
The boxes that make up urban living spaces tend to have standardized sizes and functions as well as uniform living spaces. However, altering the arrangement and connections between these boxes allows them to be responsive to the scale of the streetscape as well as the physical scale of their residents, as well as to adapt to a range of design and site conditions. This project thus presents a potential solution to the need for diverse living spaces, weaving together varied gathering points and linkages to reflect the urban space it is part of.
▼项目更多图片
客服
消息
收藏
下载
最近






















