查看完整案例

收藏

下载

翻译
Architects:AFF architekten, Georgi Architektur, Ilja Oelschlägel Produkt Design
Area :6600 m²
Year :2020
Photographs :Hans Christian Schink
Landscape :AFF architekten
Engineering :Ingenieurbüro BauArt
Building Physics :Iproplan
Design Team : Sven Fröhlich, Markus Jahnke
Clients : Staatsbetrieb Sächsisches Immobilien- und Baumanagement
Exhibition Design : Holzer Kobler Architekturen
City : Zwickau
Country : Germany
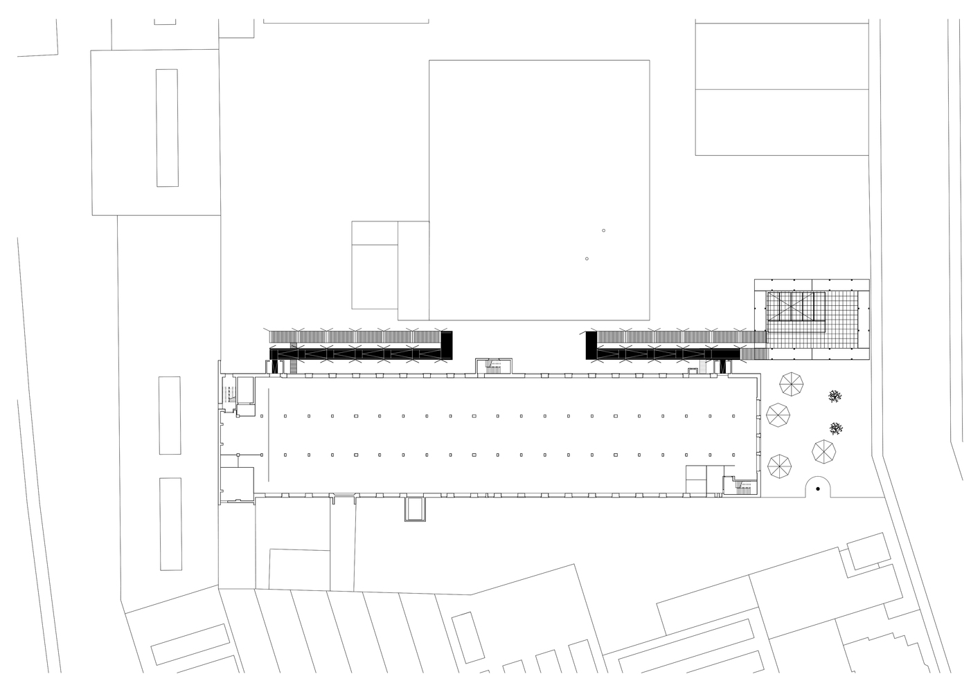
Saxony is the cradle of industrialization in Germany. With the decision to present the leading exhibition on 500 years of industrial culture history as part of the 4th Saxon State Exhibition in the Audi Hall in Zwickau, a concept was sought that not only addresses the technical requirements of the high flow of visitors but also addresses issues of sustainability in our time takes a stand. The implemented design concept goes beyond that.
It uses existing industrial goods repetitively and combines them to form an entrance building with a ramp system in order to receive visitors to the exhibition and to guide them into the former assembly and production hall. In accordance with the implementation of all new construction volumes from sea containers, the development of the equipment elements such as counters and lockers from toolboxes, seating furniture from car tires consistently follows the model of subsequent use. Topics such as industrial heritage, product exchange, and recycling processes can thus be read as a form-defining aesthetic.
The existing building, built by Th. Quaysin for Audi-Union AG in 1938-39, was built at the time with the aim of making the greatest possible savings and the aim of a construction method that was as low in iron as possible. All current interventions and renovation work are designed according to the same principle and underline the original character of the building.
▼项目更多图片
客服
消息
收藏
下载
最近


























