查看完整案例


收藏

下载

翻译
Architects:Biombo Architects
Area :650 m²
Year :2019
Photographs :KIE
Manufacturers : AutoDesk, Lumion, Sika, Toto, Dekson, Dulux, GERMANY BRILLIANT, INDICO BALI, Modena, Niro granite, Trimble NavigationAutoDesk
Architect In Charge : Nacho Atienza, Beatriz Alejandre
Design Team : Biombo Architects
Engineering And Construction : CV Jayaba
Landscape : Biombo Architects
Collaborators : Pointerior, Indico Furniture
Engineering : CV Jayaba
Construction : CV Jayaba
Country : Indonesia
This is a family home for 2 architects with 2 kids. This villa design, was born from the aim of creating a family place, capable to host all the family when they come to visit us to Bali. We both come from big families, and big families tend to travel in groups, so when they come to visit, is never just couple of them coming…
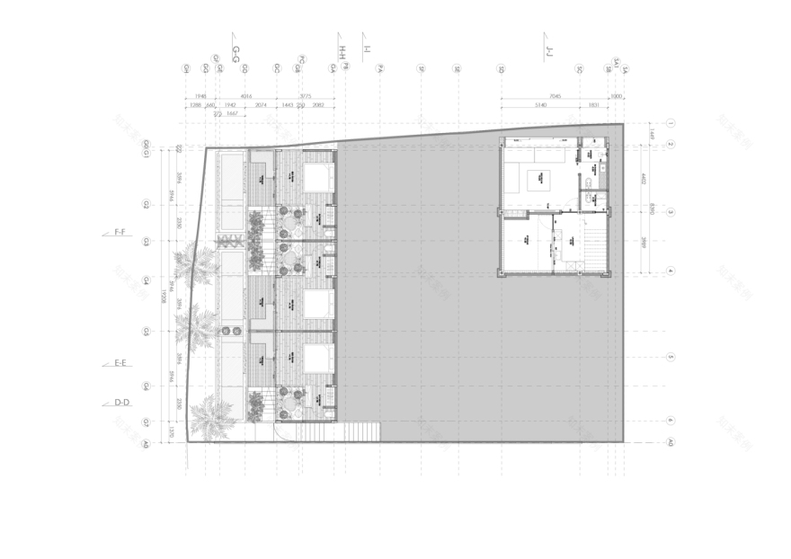
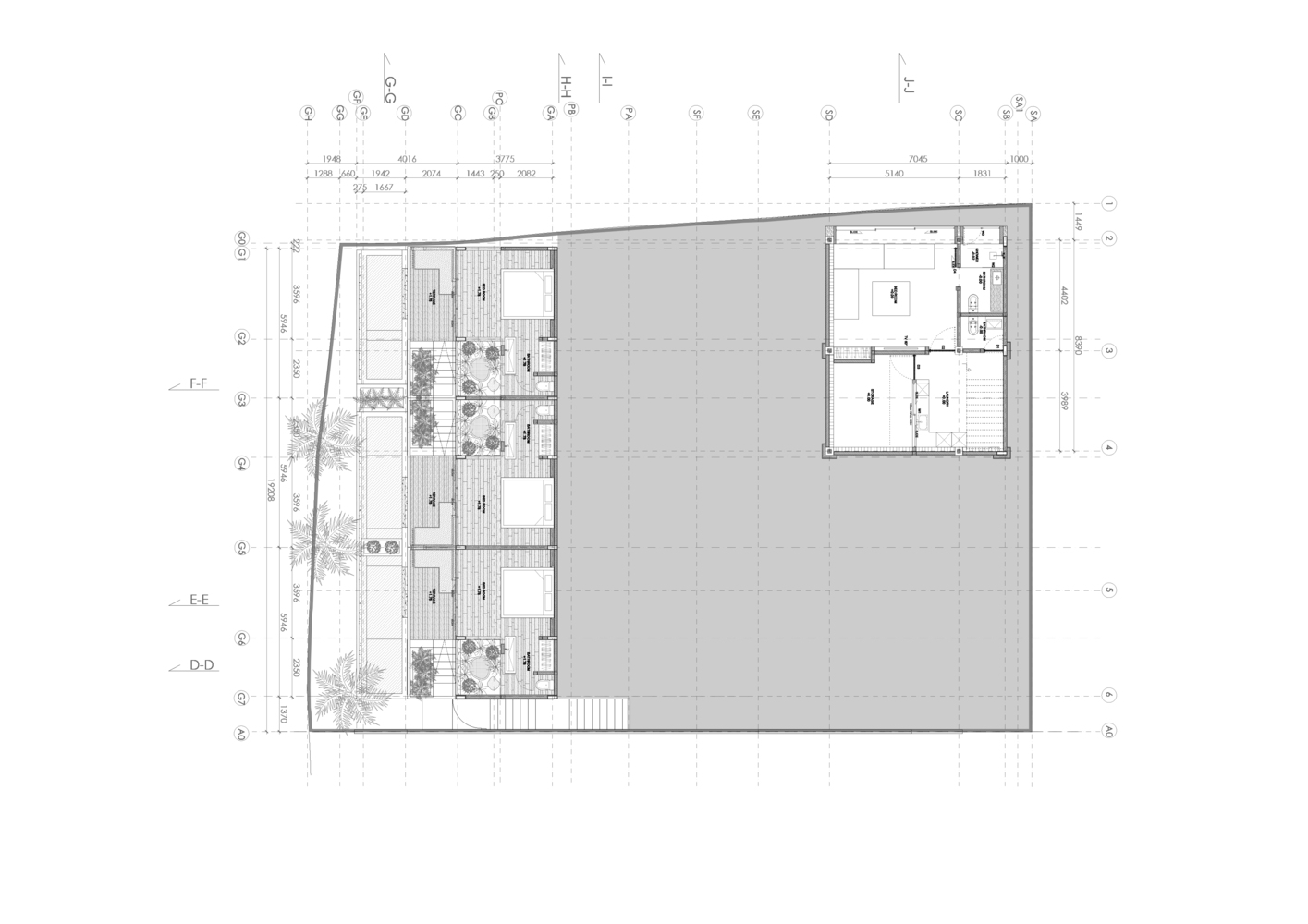
So for that, we designed a main house called Cala Saona, with 5 bedroom en-suite for the main family building and then, taking advantage of the natural slope of the plot, we created in another level under the pool, a guest pavilion named “Batukaru Suites” with another 3 bedroom en-suite, all with individual and private pools and terrace.
Both units have the option to have independent access from the parking area as well as the option to inter-connect to each other inside the property. This layout allows the property to be used as 2 separate units or as a bigger 8 bedroom villa, so the villas would work equally well as either a residence or rental property or both at the same time. This oasis is located in the heart of Canggu, Bali, Indonesia, on a plot that is facing sunset and surrounded by stunning rice fields.
Cala Saona. Designed to be able to fully open it or fully enclose, with cross ventilation throughout, inside you will find our favorite feature: an amazing indoor tropical garden with a double height of 9 m that surrounds a sunken living area. Beside this, there is a spacious dining table and the kitchen (enclosable from dining by hidden doors) with an island with bar and stools. In this level there is also another bedroom with the capacity to be used by a handicap person, with en-suite bathroom.
Large covered terraces and outdoor dining area, plus a sunken seating facing a pool bar, perfect for enjoying the 365 sunsets of the year with no walls - just rice fields and spectacular volcano views. Probably the most iconic feature of the villa and what gives the name “Cala Saona” is a beach pool of around 17m, made of local cream marble converting the water color into a Caribbean sandy beach, surrounded by a jungle of coconut trees.
With even better views the first floor has 3 spacious bedrooms, all with en-suite bathrooms, one of them with freestanding black bathtub integrated in the bedroom and facing the ricefieldsn and another large outdoor terrace. Lastly, in the basement, a multi-function room, en-suite, able to be used as a cinema room or kids playing room, gym, office etc… spacious storage room as well as a laundry and linen area plus a staff toilet.
Batukaru Suites. The guest pavilion contains another 3 bedroom suites, with unobstructed views, each of them having their own private glass pool and terrace with outdoor seating, en-suite bathroom etc. This is the perfect boutique “hotel” of 3 units with private pool overlooking the rice fields and beautiful tropical nature.
▼项目更多图片
客服
消息
收藏
下载
最近































