查看完整案例

收藏

下载

翻译
Architects:AplusCon Architects
Area :614 m²
Year :2017
Photographs :Silawat Arakwechakul
Lead Architects :Silawat Arakwechakul , Suppat ThongUraiporn
Collaborators : PDD SC Asset Corporation Team
Clients : SC Asset Corporation Public Co., Ltd
City : Khwaeng Bang Chak
Country : Thailand
The key brief of this clubhouse was from the project marketing team. To interpret “Red Hook / Brooklyn” concept into the architectural design form. This fresh concept had inserted into “The Gentry”, the new clubhouse under the SC Asset Corporation PLC. After the concept studies, RED HOOK / Brooklyn is the new youngster artist area in New York. The interesting concept is at its old unrefined architecture juxtapose with new vibes of the contemporary artist. It turned the old cargo into the loft gallery perfectly.
Turning the key concept into the objective design, the chosen material was the red brick. Using the red brick to form the open arch, this is the architectural character design of Red Hook/ Brooklyn district. In addition, combining the metal structure and the high wall glass, this idea is called “revitalization”- imbued with new life and vitality. This is to bring out the originality and yet to touch with the new. In order to serve the demand of new generations, they are the target clients of “The Gentry”
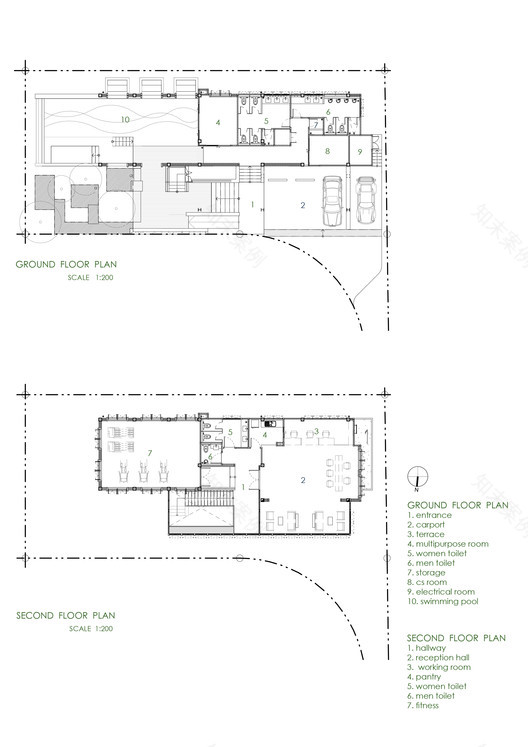
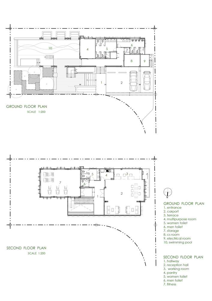
The entrance starts from the intimated garden, walking through the arch to enter the club where the swimming pool is located in the semi-outdoor style. This runs continuously connecting with the lodging and locker area. From the ground floor with the wooden finish at the front building, walking up the aerial metal designed stairs is to reach the second floor. Where a double-spaced with metal gables runs continuously through all over space. It is connected to the semi-outdoor, hall, co-living space, fitness and toilets.
To design the metal structure into the industrial look, the repetitive metal gables pattern is selected and shown throughout this clubhouse. This is done by turning the spacious roof space of the cargo into residential loft space by sectioning. Picture crossing from New York side to Brooklyn side, the most spoken scene is the Brooklyn bridge. To convey this famous scene into this main concept, the main gate designed with the chunky black metal and metal wire binding like a bridge to bring out the overall design character. This character gives the signature arch entrance of “The Gentry” project. The residents can feel that they are transporting from the bustling life back to the more relaxed with the contemporary artistic taste of life.
▼项目更多图片
客服
消息
收藏
下载
最近
























