查看完整案例


收藏

下载

翻译
Architects:Alterstudio Architecture
Area :2990 ft²
Year :2017
Photographs :Casey Dunn, Nick Simonite
Manufacturers : Hansgrohe, Emtek, Durvavit, Kohler, KolbeHansgrohe
Interiors : Anne Suttles
Structural : Leap!Structures
Clients : Sam Shah, Anne Suttles
Budget : Withheld
Principals : Kevin Alter, Ernesto Cragnolino, Tim Whitehill
Team : Matt Susarek, Daniel Shumaker
City : Austin
Country : United States
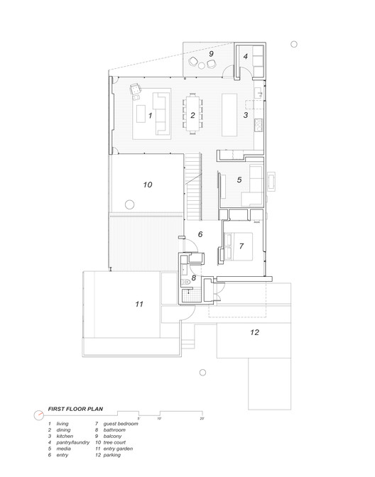
The South 5th Street residence slips nonchalantly into the array of eclectic bungalows that line the streets of Austin’s Bouldin neighborhood. Here, a rare 25" Durand Oak and an unexpectedly steep escarpment created a powerful circumstance for a house that emphasizes view and a dynamic spatial sequence, while at the same time being an abstract backdrop for the serendipity of light and circumstance. The visitor arrives into a verdant courtyard under the majestic Durand Oak. A thin, 4” gabion wall at the street, evergreen plantings and a perforated, Cor-ten corrugated screen to the south, provide varying degrees of privacy and animation for the ensemble.
From the courtyard the house unfolds effortlessly and in several directions. A transparent living room hovers over the tumbling escarpment and through which the expansive panorama begins to become visible. Inside, dramatic vistas across the valley created by tributaries to Lake Austin are omnipresent, and the house is alive with activity. The visceral textures of concrete, mill-finished steel and raw stucco are presented against finely detailed millwork and custom site-glazed window walls—which are framed with rift-sawn white oak and steel to form flitch plate mullions.
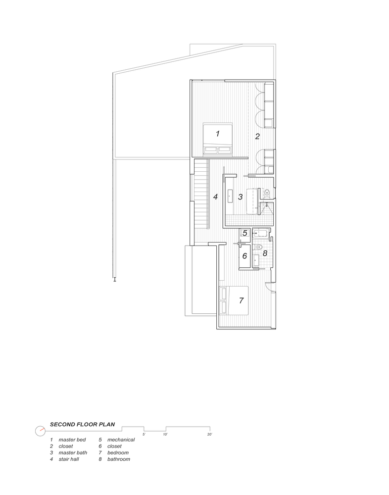
Great expanses of transparent glass is paired with ventilator doors that open to encourage breezes through the house. A second living area downstairs provides an intimate enclave that looks into the tree canopy and gives access to the tumbling landscape below. Upstairs perched above the trees, the master suite is filled with light and takes advantage of the valley views. Finally, the house also reaches back towards the street, cantilevering over the parking and embraces the goings on of this dynamic neighborhood.
In the heart of the city and on a 50’ wide infill lot, the South 5th Street residence is delineated as a 3-story volume that deftly negotiates the city of Austin’s zoning regulations & the Oak’s critical root zone, and an open living room suspended on 2 piers that nimbly avoid tree roots.
Designed to embrace a lifestyle that easily moves between inside and out, and between intimate conditions and expansive prospects, this very efficient home takes maximum advantage of the pleasures of living in one’s own private enclave in the dense context of modest homes, one-off stores and chic restaurants.
▼项目更多图片
客服
消息
收藏
下载
最近
































