查看完整案例


收藏

下载

翻译
Architects:RMDM Architectes
Area :505 m²
Year :2019
Photographs :Charly Broyez
Manufacturers : Technal, iGuzzini, Piveteau bois, SDA LEPINARD, VeluxTechnal
Lead Architects :Philippe Maillols, Eric Dolent, Alexandre de Muizon, Luc Marguerite
Engineering :MIZRAHI BET TCE
City : Saint-Ouen
Country : France
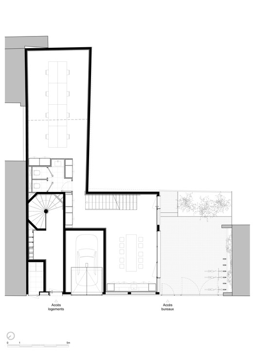
On the border of the historical flea market in Saint-Ouen, this small mixed-use building – architecture studio office and collective housing, is set in a typical suburban fabric, defined by heterogeneous and relatively low-rise buildings. The very first difficulty in the project conception was to integrate the building in the small plot of land while respecting as much as possible its residential environment. The graduating height of the five-story volume makes it possible to associate a dwelling to the north and a townhouse to the south. The footprint leaves free space to a 50 m² courtyard which represents a breathing space into the dense fabric and creates a transparency towards the city.
Another challenge during the conception was to manage the superposition of the two different programs in the small parcel, giving them both quality spaces and intimacy. The concrete column and beam construction system allows to free the most possible exploitable space in the small parcel. The architecture office occupies three levels: a storage area and a meeting room in the basement, the cafeteria and the partners' office on the ground floor, and a work space on the first floor. The first floor has been designed as a free plan to create a comfortable, adaptable and bright working space.
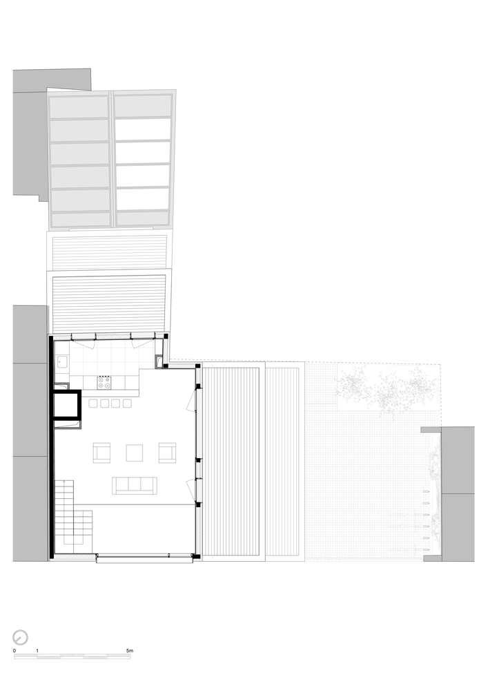
Simple and raw materials give a minimalist and elegant aesthetic to the interior. On the walls, ceiling and staircase rough concrete is left apparent, birch plywood panels are covering some of the walls in a regular rhythm and the grey tone of the interior metalwork matches the window frames. The outdoor space in the heart of the block is reserved for the architecture team. This courtyard, home to a garden of evergreen shrubs and climbing plants, serves as a transition space between the city and the workplace. On the upper levels are located four apartments - from a studio to a three-room, including a duplex. The plan is optimised to give maximum light and comfort to the inhabitants. Most of the apartments have dual orientation and benefit from large terrasses.
The façade is composed out of two materials – black wood, chosen for its durability and large metal framed openings in a warn grey tone. The wooden battens of the exterior cladding alternate between vertical and horizontal direction, sequencing the volume and giving different readings to the façade’s pattern. The different position, shape and type of the generous openings also allow to play with the rhythm of the façade. The contrast between the black wooden volume and the light tones of the neighbouring façades catches the attention from different points of view. This typology, becoming rare in new construction, could be a reference in terms of small-scale densification in constrained parcel fabrics.
▼项目更多图片
客服
消息
收藏
下载
最近































