查看完整案例


收藏

下载

翻译
Architects:Pedra Líquida
Area :514 m²
Year :2019
Photographs :Fernando Guerra | FG+SG, Alberto Plácido
Manufacturers : AutoDesk, Duravit, Fluxograma, GRUPNORAutoDesk
Lead Architect :Nuno Grande
Acoustics :Amplitude Acoustics
Landscape Design :Platanus
Structure :AB PROJECTOS
Thermal engineer :GET Gestão de Energia Térmica
Design Team : Alexandra Coutinho, Guiomar Rosa, Nuno Grande, Jorge Gomes, Rita Basto
Supervision : Ana Sousa
Landscape : Nuno Sousa
Clients : Casa do Conto
Visual Identity : R2 Design
City : Porto
Country : Portugal
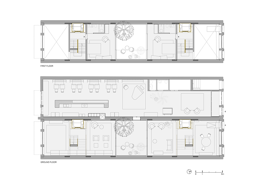
The project of the Hotel Tipografia do Conto, recently nominated for the EU Mies Award 2022, is a multifunctional space that links residential tourism and cultural events. It comprises ten rooms and a wide ground floor with multipurpose areas. Its architecture incorporates several memoirs of a pre-existing building and avoids the generic tourist offer which has been gentrifying many European cities (like Porto). This former Typographic Workshop was transformed into a domestic-scale structure in order to include the new Hotel rooms. The project refuses any kind of architectural pastiche; instead, it recovers remnants of elements of that earlier condition integrating them into a contemporary design.
The project departs from an existing compound erected in 1916 to house small industrial activities (a Typography and a Graphic Workshop), which has since closed down. Over the last few years, the structure of the building has deteriorated, making it impossible to fully reuse it for the envisaged new functions. From this previous Workshop occupation, some memories remain at the new Hotel design: the main stone façade (in Deco style), the reuse of the central patio for lighting and ventilation, and its internal spatial flexibility, especially at the ground level.
This evocation is extended to the design of the new façades around the patio – a typographic composition in a Riga wooden structure (reusing the beams of the former Workshop) –; but also, to the decorative elements on the ceilings, formed by bas-relief texts which allude to the idea of printing and typographic publishing.
The Hotel rooms recall the old Workshop ambiances: in the proportions of the ceilings; in the way the glassed toilets’ cabinets are placed in the space; in the echoes of the elegant wood surfaces. All rooms are covered by specific scripts, written by ten selected authors, from writers to designers or architects. The scripts are converted into typographic text(ures) and inserted on the surface of the concrete ceilings. Punctual golden metal shears stand out from the ceiling backdrops, enriching the reading of those scripts. The ground floor, which includes a wide Cultural Café, remains a long and flexible space, giving access to the central patio and backyard. It is used as a “stage” for different cultural events intermediating between outdoor and indoor.
In general terms, concrete (liquid stone) is the basic element of this project. Concrete is moulded or finished in three kinds of textures: “smooth” for ceilings and pavements; “striped” for the interior walls; and “rough” for the back facade. Inside, the concrete is accompanied by punctual elements in golden metal – in the decoration of ceilings, stair handrails and elevator columns – creating a desired contrast between roughness and refinement. In the central courtyard, another relationship is established between the new wooden facades, evoking the typographic plates that existed there, and an abstract carpeting of white tiles on the sidewalls, which reflects the light. All common areas prolong that contrasting relationship between the exposed concrete and the gilded metal surfaces, between new details and recycled furniture objects.
▼项目更多图片
客服
消息
收藏
下载
最近



















































