查看完整案例


收藏

下载

翻译
Architects:EFFEKT
Area :3170 m²
Year :2018
Photographs :Rasmus Hjortshøj - COAST
Consultants :Copenhagen Bouldering, Luke Jouppi, Lars Pedersen, Jonathan Linde
Collaborators : BOGL, Ramboll, Thomas Andersen A/S
Client : Viborg Kommune and GAME, financial support from Realdania, Lokale og Anlægsfonden, TrygFonden and NordeaFonden.
City : Viborg
Country : Denmark
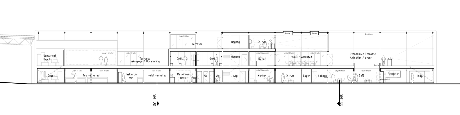
Streetmekka is a new cultural destination offering a wide variety of facilities for self-organized sports like parkour, skate, bouldering, basketball, trial as well as a series of customized workshop areas for music production, DJ’ing, an animation studio, fabrication lab and various artist studios and wood and metal workshops.
Social spaces and informal meeting areas are distributed throughout the building and strategically interwoven in-between primary functions based on the notion that proximity to activities lower the threshold for participation.
Breathing new life into abandoned industrial buildingsThe original building once served as a windmill factory and is a typical example of one of the many mass-produced warehouse or factory buildings from the late 1960's and 70's found in almost every suburban industrial zone in the western world. Constructed from prefabricated concrete panels or corrugated steel, these industrial leftovers are perceived as having little or negligible historic, cultural and architectural value.
Instead of taking the traditional approach and demolishing the leftover building EFFEKT wanted to explore how to re-use and re-program this type of insignificant and mostly introverted building typology in a qualitative way and at a very limited budget?
‘However uninteresting and grey the exterior of these boxes appear, they often contain an impressive interior space of magnificent scale and almost cathedral-like proportions based on a repetitive, neatly arranged structural system. To us this vast space posed the only true value of the building – and we wanted to expose and highlight this to the outside world.’ says Tue Foged, Partner at EFFEKT.
‘ Our approach was simply to remove the walls at both ends of the building and to place all the administrative functions and workshop spaces on one side of the existing structure and the skate-areas on the other side, leaving the internal former manufacturing space intact. This clear re-organization also equips the building with a completely new envelope and exterior and allows us to pull in more daylight through the two new glass facades while improving the connectivity to the exterior spaces and activities.” Foged continues.
With many vacated industrial sites being incorporated in urban expansion, this approach may be replicated and can pave the way for the revitalization of many other disregarded buildings left to deteriorate or facing demolition. New neighborhoods can benefit from these industrial heritage markers to build identity and sense of place.
Individualized and self-organized alternativesThe functional goal of the new Streetmekka is to create a series of functional spaces for sports, cultural and social purposes arranged in a highly complex programmatic network. The aim is to meet the increasing demand for self-organized and individualized alternatives to the established club-sports and cultural activities, supporting GAME’s mission to attract local youth and create lasting social change through street-sports and culture, enabling integration and empowering them in their future lives.
“Targeting a broad demographic audience from across a variety of cultural backgrounds, gender, age and interests, our goal was to create an open and welcoming building, lowering the threshold for involvement and engagement. We achieved this by making a transparent building with a clear, well-defined organization intuitive to everyone,” says Foged and continues: ”An anti-elitist, pop-culture take on a hybrid between a sports facility and a culture house, that is robust enough to stay open to the public 24 hours day without supervision and where the users are in charge and take initiative.”
Growing new communitiesThe new Streetmekka 2.0 is for everyone. It doesn’t matter if you want to participate, create, hang out or observe – there is a designated space for everything and everyone. The idea of expanding the original program to include so many different types of activity under the same roof is based on the notion that co-existence breeds new synergies and new social relations. Additionally, it exposes visitors to new types of activity they might never have realized existed, encouraging future engagement.
The maker labs and workshop areas enable the users to continuously develop and reconfigure the facility. Streetmekka Viborg is not static in terms of program nor in physical appearance. It will continue to evolve with the users – both short term (due to the animated facades and the street-art) as well as long term (when new programs are added, and old ones removed).
Indoor streetscapeThe architectural concept is based upon the idea of an indoor streetscape. The project opens the introverted industrial building and transform the impressive central factory space into a new kind of interior space: a covered streetscape open to the outside. The streetscape concept is used to define and organize the various functions and place them in relation to specific requirements, such as spatial quality, daylight, materiality and temperature zones.
The new volume is then wrapped with a functional translucent polycarbonate skin, giving the appearance of a light and welcoming building while also serving as a giant canvas for the local visual artists to display and project their art but also clearly differentiates the building from the surrounding industrial facilities. Streetmekka in Viborg is the first lot to be transformed in the new neighborhood and will work as a catalyst for city life in the upcoming area.
The surrounding landscape becomes the natural extension of the indoor surface with various street-sports and cultural functions placed in a recreational string of greenery connecting the site to the downtown area through a future pedestrian and bicycle path.
CostThe preservation of the original structure and the reuse and upcycling of materials made it possible to carry out the refurbishment at a very low expense. Many of the original components were also repurposed as furniture elements for the parkour activities and hang-out spaces. The final cost of the building is approximately one third of a traditional sports hall.
▼项目更多图片
客服
消息
收藏
下载
最近

































































