查看完整案例

收藏

下载

翻译
Architects:KDDH
Year :2018
Photographs :Yongsoon Kim, Donghee Kim
Site Area : 211.81 m2
Building Area : 61.80 m2
Gross Floor Area : 115.62 m2
Building To Land Ratio : 29.18%
Floor Area Ratio : 54.59%
Building Scope : 2F
Height : 10.875 m
Structure : Steel frame
Client : Seoul Metropolitan City
Architect In Charge : Donghee Kim
City : Tongil-ro 18na-gil
Country : South Korea
The city has grown so fast that it can not be measured. Then what about the quality of our lives? Dehumanization of human beings, poor generosity, and busy daily lives. Seoul is perhaps the most widespread place to be in such matters. Achromatic people moving without composure and hectic daily routines are not allowed except for coming and going to the same place.
The city produces a quick and fancy flow, but since it is not a penetrative flow in every small alley, we still wait for the slow, humble spaces to remain their original appearance in Seoul. For us who have lived far away from the earth, being close to it can be a symbol of humanity and composure. The reason why we need urban agriculture is simple. We need a buffer. Fill the city with loose and soft soil every nook and corner.
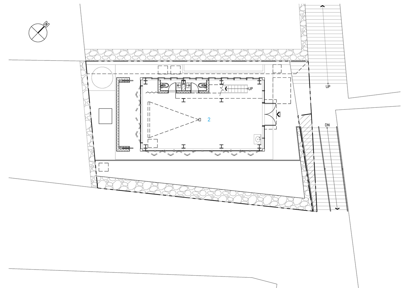
The Haengchon vacant lot, created for urban agriculture, is a useful site where public architects, residents, experts and public officials can join forces to create a vacant space owned by the city. At the center of the city's agriculture industry, Haengchon's vacant lot 3 is located in Muak-dong, Jongno-gu, where fresh air flows through Inwan Mountain and Seoul's capital city.
On the first floor of Haengchon vacant lot, adjacent to raising seeding field and public garden, there is an agriculture equipment storage and water storage tank that can use the water from the roof of Jongno-gu record archive. There is a room for internal restroom and residents education.
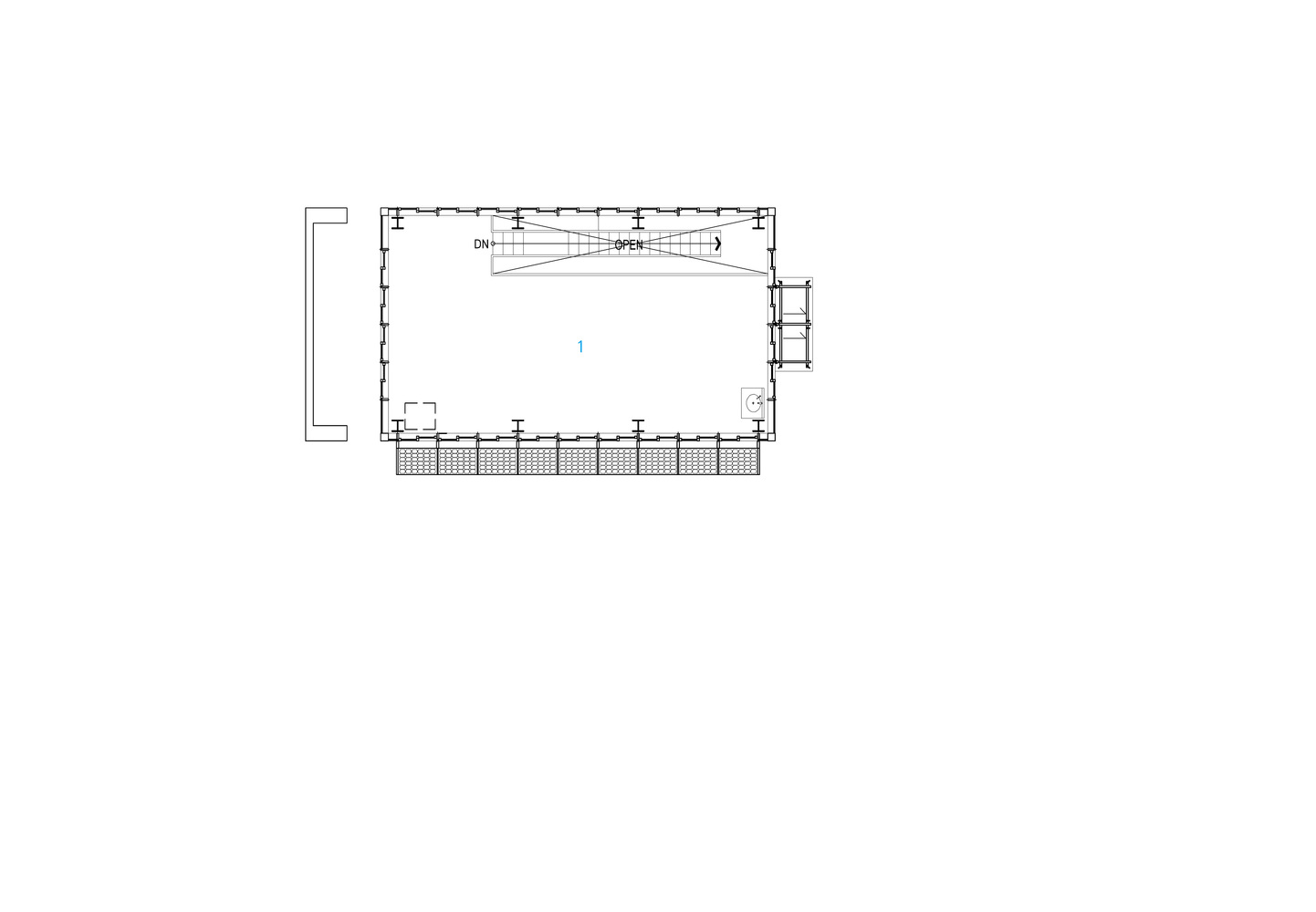
The second floor is designed for various activities, such as exhibitions and community activities, and a community-operated coffee shop will be set up to trigger communication between residents. A solar panel was installed on the south side of the building to produce about 7,300 kWh of electricity annually. It is a desire for everyone to communicate with one another and share time for a better life and create social and economic value.
▼项目更多图片
客服
消息
收藏
下载
最近





























