查看完整案例


收藏

下载

翻译
Architects:T2.a Architects
Area :1800 m²
Year :2018
Photographs :Zsolt Batár
Manufacturers : Schüco, ABUS Daruk, Alukönigstahl+Jüllichglass, Aluschlosser, Csomiép-ENTER, Daikin+Alba Nord, Hoesch, Krüllung, M+M, Mile, Rehau Hungary, Rockwool+Lambda System, Verbau, ceraSchüco
Lead Architects :Bence TURANYI
Design Team : Bence TURANYI, T2a Architects, Matyas PAPP, Crecon Ltd, Bence TURANYI, Matyas PAPP
Clients : Amplio
Function : Mixed use office and industrial building
City : Székesfehérvár
Country : Hungary
“Design is not what it looks like, but how it works.” Rapidly growing “smart manufacturing” automation firm’s headquarters designed for the future now, and tomorrow. Amplio Headquarters is the sort of technologically-driven space that a high-tech firm needs, capable of functioning as an office, development lab, and factory while running entirely on automation.
In most architectural endeavors, there’s always a balance between form versus function. That delicate and intricate maneuvering between that which pleases aesthetically and that which admirably performs its intended objective underpins so much of modern architecture and design. With the headquarters of high-tech automation firm Amplio, the work of its architect was much clearer in this regard, since the two were inexplicably linked: “Design is not what it looks like, but how it works,” explains Bence Turanyi of the inspiration behind the design of the building. This is an ethos that lives throughout the creations of Amplio itself, and the headquarters that Turanyi and his team designed intended to reflect that.
In that sense, it may not be that the Amplio building is the most visually outrageous, but a considered eye has meant it is stark and significant all the same. Resting among an industrial center of Hungary a short drive from its capital of Budapest, the new headquarters stands out among its equally industrial neighbors.
This contrast is crucial to the experience of the building, too. Amplio is a company with an international clientele and builds custom electronic parts, primarily for the automobile industry; its headquarters is also a crucial meeting point for existing and potential business partners, and in that sense a building that could impress while still able to perform its functional tasks as an HQ, development lab and manufactory was important. “They were looking for something that would help them to create a brand as well,” says Turanyi of Amplio’s hopes for the design of the building. “Amplio’s founder is a really brand-minded figure, and though the initial brand was there I immediately felt that the architectural solution will be part of the brand and even a main element of the brand itself. We had to communicate, in an architectural way, the essence of the company.”
The approach to the building is primarily where that essence comes is first discovered. From its side, it could just be another industrial export from Japan, but as the perspective shifts, so too does the view of the building. This dynamism was a conscious choice, one that was inspired by Amplio’s products that are designed to be their most ergonomic and effective, a beauty born from their impressively mechanical nature. The architects designed a similar concept, which is first achieved when a visitor arrives at the entrance and beneath the six-meter, cantilevered top floor that houses the main office area of the headquarters. Large glass windows wrap around half of the building to allow the approaching viewer to see the activity within the office; as the ‘brain’ of the corporation, being able to witness the buzzing activity within emboldens Amplio’s brand appeal with energy and excitement.
And much like the products that Amplio creates, the design and construction process of the headquarters was not a static one. The high-tech firm is enjoying a moment of intense growth, meaning that there had to be an acknowledgment that even as the project rolled on, there would be a need for the studio’s architectural and design input. “The founder of Amplio had a plan for the building, but it wasn’t fixed,” says Matyas Papp architect who was in charge of detailed technical design and on-site design management. “The company was and still is growing very fast, and right at the beginning he knew that it would not fit the future needs of the company.” A very high-level BIM model was created during the planning phase and was developed into an as-built level final database during the construction period. This was possible on a technical level because the project architect was on hand and on-site throughout the construction phase, ready to make any adjustments and changes as required.
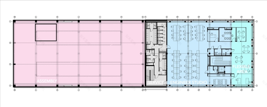
This was why much of the building is flexible in its purpose, and though it is separated into its constituent parts of offices, hallways, or fine fittings, the spaces themselves are multifunctional in their design. This helps Amplio better position itself not only for its own growth, but also to better accommodate whatever may happen as part of the changing nature of the digital revolution.
It’s this sense of digital empowerment that guided the interiors, too. Attention was paid to the particulars of each space, drawing out a clean yet industrial look that gives the headquarters noticeable modernity. The architects imagined the outer shell of the building as the body, and in that sense considered the interiors to be the organs. Exposed fixtures and fittings create an honesty about its interior design, once again echoing the belief that “design is how it works”. Crossed, steel columns and concrete walls create the industrial look, while contemporary meeting rooms and office space add a more contemporary flair.
Automation played a role in the functions of the building, too. If its interior is the organs, then the staff are the lifeblood, and so an Industry 4.0 attitude was adopted for the effective movement of Amplio’s workforce. A company that specializes in robotics and sensors needs to have an equally technological headquarters, after all. “Amplio's corporate headquarters are state-of-the-art in its technical solutions,” says Turanyi. “All the technology used in the most advanced office buildings from around the world is here, from the cooling-heating system to the ventilation to the lighting. In harmony with the company profile, all of these work centrally automated with their own software, custom developed by Amplio.” Shading, heat, and lighting have been coordinated to optimize energy use. The access control system detects the human presence, and so the building knows exactly how many people are in each room and adjusts the lighting, ventilation, and heating accordingly. As soon as the last person leaves, the light switches off and the robotic vacuum cleaner starts. Even in the large, seamless office space, visual engineering and carpeting was handled to provide the right acoustic conditions.
The architects in the creation of the new center were inspired by Ampilo's manufacturing technology to create unique machines and components that did not yet exist. This is how the center itself became a highly automated system whose design, shape, and ergonomics were driven by a perfectly thought-out operation.
▼项目更多图片
客服
消息
收藏
下载
最近
































