查看完整案例


收藏

下载

翻译
Architects:TNT architects
Area :370 m²
Year :2016
Photographs :Triệu Chiến
Architect In Charge : Bùi Quang Tiến
City : Vinh
Country : Vietnam
CRABSARK & CRAWFISH is a seafood restaurant which is located on the central of Vinh city. The restaurant has been made from combination of structural steels, glasses, naked bricks and flexible curves. It was made not only the model western food restaurant but also very close local culture!
To do that, we created a block which made from combination of structural steels, glasses that make a sense of minimalism. In addition, the adjustable roofslookslike going up and down, it like the same neighbor house. This mean that the restaurant is both outstanding and friendly.
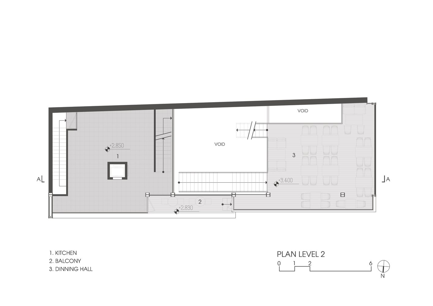
The restaurant consisted of 6 spaces includingseparate functions that was placed 5 different altitude and linking each other by mean of many flexible stairs. This means that it seem to be making plenty of interesting indoor spaces. Simultaneously the outside of the restaurant was modern architecture, the material which was used the warm colors of bricks, the colours of steels, and the wooden colors that make warm and friendly indoos spaces. It was built in accordance with orient culture.
▼项目更多图片
客服
消息
收藏
下载
最近


































