查看完整案例

收藏

下载
项目的现代雕塑感建筑体,以大片玻璃围护体,本身建筑赋予的围合空间将室内外紧密联系在一起,室内设计运用这一特点并结合景观赋予生命力,以现代简约的流线设计,勾勒空间的和畅淡雅,让人、自然、建筑、空间共融共生。
空间去其繁杂,只保留线条,打破空间中固有的平面局限,用充满仪式感的线条与软装,串联起各个空间,彼此独立又贯通。在简洁明快的格调中,以灰白色为主,用局部留白的空间秩序与艺术语言,打破沉闷的空间体验。
The modern building of the project, with large glas windows and doors, is connected closely with outside landscape. The interior design relates the indoor and outdoor space together as well, drawing a quietly elegant space. Which makes person, nature, and architecture a harmony symbiosis with contemporary and contracted streamline.
Each space, independent or connected with each other, is liked by the lines full of ritual sense and soft decoration. In the concise and lively style, the main color is grey and white, to break the dull space experience with and partial blank space.
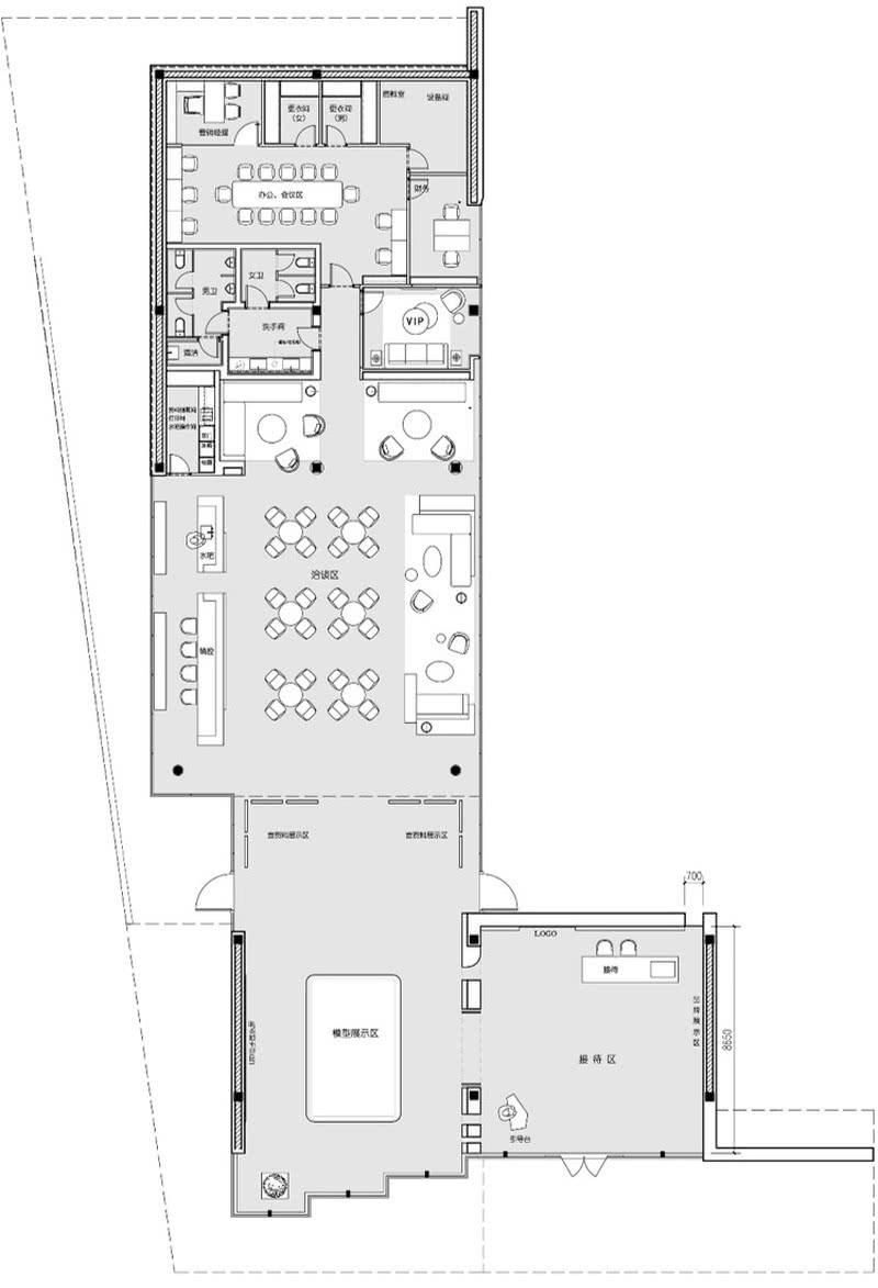
平面图
接待大堂及品宣区
接待大堂及品宣区
模型区
模型区
模型区
模型区
洽谈区
洽谈区
洽谈区
洽谈区
洽谈区
洽谈区
洽谈区
洽谈区
洽谈区
卫生间
外立面及环境
客服
消息
收藏
下载
最近




















