查看完整案例

收藏

下载
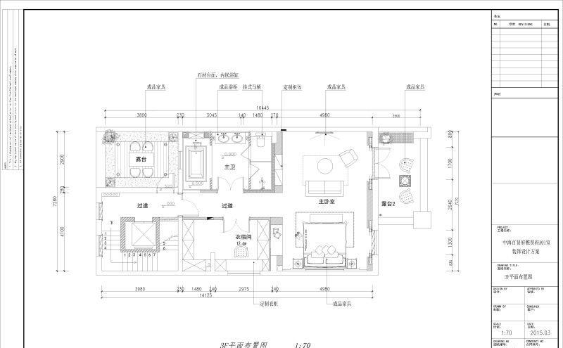
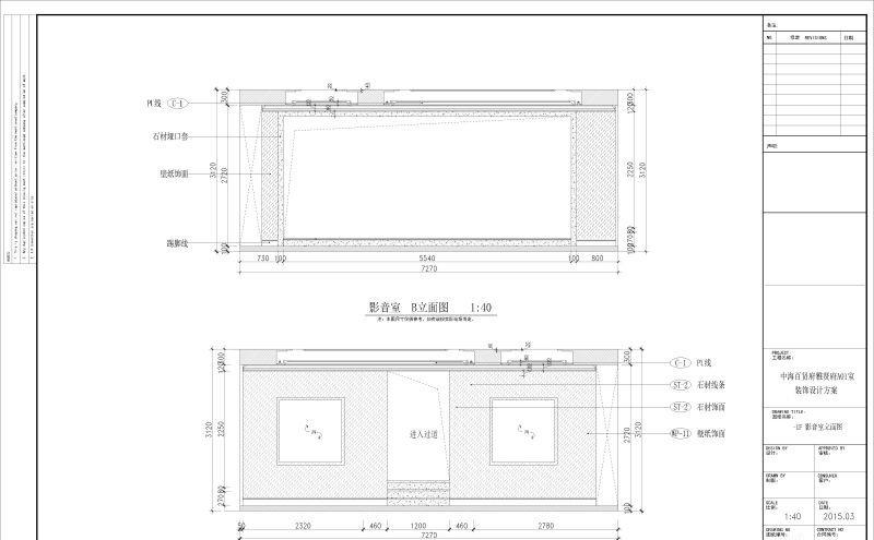
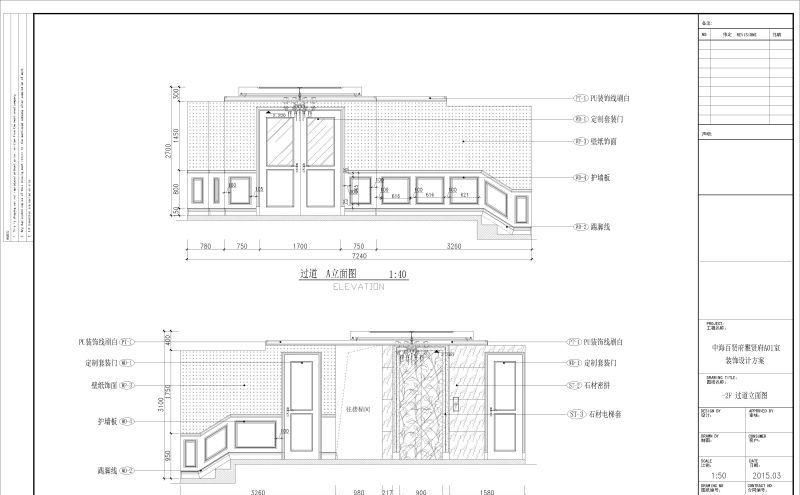
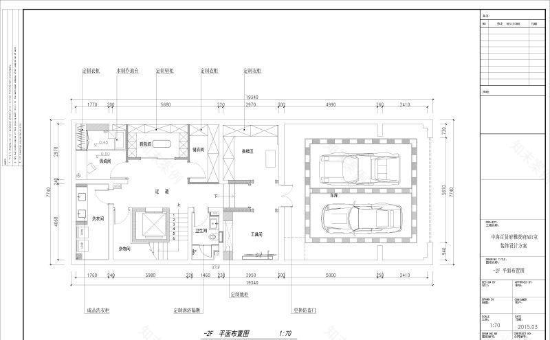
项目名称:西安中海百贤府别墅 风格定位:时尚简欧 实施时间:2015年4月 面积:550多平米 设计单位:美维装饰设计工程有限公司 设计师:翟佳惠、陈洁 格调(氛围):随意却又包含唯美,精致亦或拒绝奢华; 在看似平淡的表面中蕴藏着无尽的艺术气息。 色彩:米白色,金色,灰色 整体设计说明: 别墅设计追求的是一种高雅的品质,所以在风格定位上选择了新古典欧式风格。本案设计注重线条的搭配和颜色对于空间气氛的营造,在室内环境中力求表现悠闲、舒畅自在的生活状态。在造型设计的构图理论中延续古典欧式雅致大气的同时又融入现代简约时尚的元素;在满足居家基本功能之外,更注重于居家生活品质与休闲享受两种需求的强化处理。 别墅的一层设有会客厅、餐厅和厨房等功能。客厅在结构上打通了与门厅的墙体,使门厅空间延伸出去,吊顶的微妙处理,再加上灯光的点缀装饰,境界分明层次清晰。从地面的拼花石材到楼梯的金色栏杆,墙面白色造型护墙板到红色壁纸,再搭配欧式古典家具与时尚艺术品,兼具华贵典雅也时尚现代。餐厅高挑的空间古典大气,米色石材造型墙面配以绿色丝质手绘花鸟壁纸,让人感觉似在浓郁的色彩空间又似在明亮而淡雅的生活空间。 别墅二三层是相对私密的休息空间。配有主卧、睡房和儿童房。其中主卧室配有独立的衣帽间和卫生间。二层卧室运用淡雅的颜色,不张扬的美充满了温馨却贵气有余。主人房在色调上以浅米色为主调,金色、粉色、白色糅合,使色彩看起来平和而内敛,在家具配置上,采用布艺结合的实木家具;在软装配饰上则使用粉绿、粉紫色等为基调点缀,使房间多了些贵族气质。 别墅地下二层设有车库、工具间、鞋包间、保姆房、洗衣间、储物间等。地下一层设有视听室、贵重物品间、衣帽间、客房等。视听室设有专门的酒吧区、健身区,在运动过后淋浴放松,再品一杯优质的红酒,让生活更添一份雅致。
客服
消息
收藏
下载
最近






























































