查看完整案例

收藏

下载

翻译
Architects:VOO® Arquitetura e Engenharia
Area :3972 ft²
Year :2019
Photographs :Alcindo Dedavid
Manufacturers : Kuraray, Archicad, Empreiteira Amarante, Metalúrgica Strey, Micheluzzi pisos, Strato WEBKuraray
Arquitetos Autores : Mairo Volkmann, Jonatan Welter
Construction Execution And Management : Diego Rodrigues Borges
Equipe De Projeto : Julian Fonseca, Dei Ricardi, Cecília Knaesel, Fernanda Petri, Agatha Savignano, Heloisa Bisewski, Julia Gehrke, Julia Pasold, Bruno Vitorino, Rafael A. Szychowski, Aline Denise, Bernardo, Andressa Flach Fuhr, Paulo Moser, Julia Papst
Engineering : Leonardo Leal, Felipe Costa, Geraldo Leite, Laura Kopsch, Rubens Lotério, Vinícius N. dos Santos, Bruno Barcaroli
Shopping : Taynara M. Kuenel, Evandro da Luz
Financial : Eduardo C. Fogaça
Media And Art Direction : Thais de Aguiar Hausmann
Interior Design : Designer Sherlana Reis
Structural Project : Concreto Armado
Electrical Project : Tesla Engenharia
Empreiteira : Empreiteira Amarante
Metal Structure : Metalúrgica Padrão
City : Blumenau
Country : Brazil
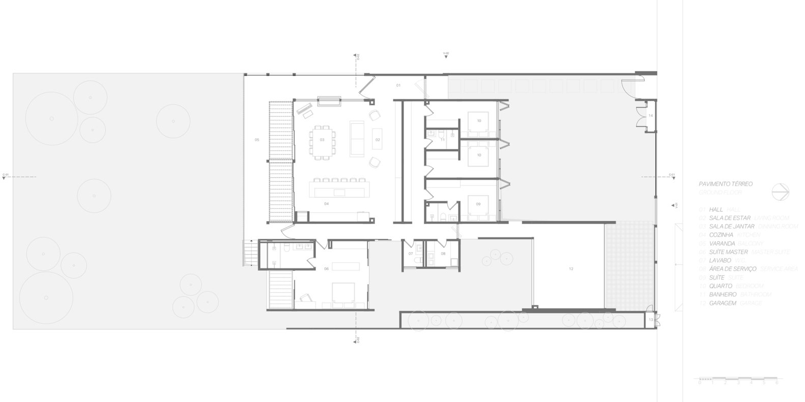
Above the city level, located on top of one of the central neighborhood's hills, a sloping terrain gives way to the Asa de Borboleta Residence. Adopting the lifestyle and preferences of the family, the project approached the contemporary applied to the location and the direction of the land to the city related to the path of the sun.
At first glance, when entering the gate, a patio in front of the children's bedrooms introduces the lightness and the relationship of the house with the outside. The brise element on the bedroom doors allows light and ventilation to enter, whether open or closed.
Walking next to the patio, the entrance door leads to the social environment, with a living room, dining room, kitchen, and balcony, facing the city to the south. For this environment to relate in a natural way, knowing that the sun's path follows the house façade facing the street, the proposal was to open the roof upwards. It also provides the owners with a contemplative space on the horizon where the mountains can be seen in their entirety. A vision of the sky, mountain, and city.
The balcony of the couple's bedroom and the balcony in the social area, both facing south, are separated by a volume of exposed brick, where which is the internal wall of the bathroom of this suite. The comfort of the brick and glass materials are blended with the openings in the structure to enjoy nature in the garden below or the changing sky - blue, gray, or starry - above.
The air quality in an environment reflects on the well-being and habits of the users, acting directly on the intrinsic quality of daily life. Thus, the cross-ventilation of the house transmits itself naturally into the intimate environments. In the couple's bedroom, windows on both sides provide good lighting and ventilation through the internal garden to the east, which is visually protected by a garage. And in the bathrooms of the children's bedrooms, skylights in the ceiling, with openings on both sides, act as windows, providing lighting and ventilation.
Structurally, the house explores the potential of wood, metal, rustic brick, and glass, with a 14-meter overhanging roof. The purpose of the residence, with its relationships of green and wide views and the daily path of the sun, as well as the use of these materials, is to give lightness to the daily habits of the users who inhabit it. All the factors mentioned above are integrally related to a common purpose, the blending of behaviors as a function of living.
▼项目更多图片
客服
消息
收藏
下载
最近





































