查看完整案例

收藏

下载

翻译
Architects:VOO® Arquitetura e Engenharia
Area :380 m²
Year :2020
Photographs :Fábio Junior Severo
Manufacturers : GRAPHISOFT, Cunha Brasil, Deon Impermeabilizações, Eliane, Esquadrias Borgert, Esquemátika Informática, Incomatelli, Marmoraria Mafezzo, Mobília, Portobello, Requintte, Seats Home, Tinercor PinturasGRAPHISOFT
Lead Architects :Jonatan Welter, Mairo Volkmann
Execution : Diego Rodrigues Borges
Construction Management : Rubens Lotério
Project Architect : Julian Fonseca Dei Ricardi , Cecília Knaesel, Fernanda Petri, Agatha Savignano
Interiors : Andressa Flach Fuhr, Julia da Cunha Papst, Julia Staedele, Paula Olivo, Julia Carla Duemes Losi
Media And Art Director : Thais de Aguiar Hausmann
Reinforced Concrete Structural Design : Michels Engenharia
Structural Project Prestressed Slab : Visão Projetos e Construções
Hydrosanitary Project : Voss Engenharia
Electrical Project : Voss Engenharia
Impermeabilização : Projeto A Engenharia
City : Blumenau
Country : Brazil
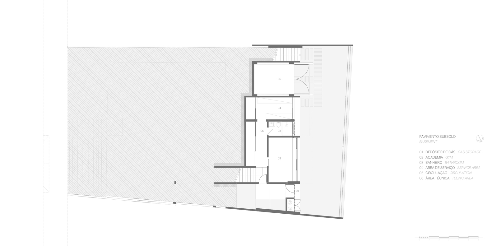
On downhill land in the city of Blumenau, the S&R Residence takes advantage of the site to give users a ground floor experience. The rhythm of the house, especially the social area and the couple suite, follow linear to the street sidewalk, providing a flat feeling of living. Thus, the couple's living area invites them to look at the mountains and the horizon, bringing closeness to the green landscape. The shape of the residence respects the relationship between user, land, and landscape, overcoming the unevenness of the land by superimposing the volumes. With this, all the service areas, the gym, and possible future bedrooms are located on the lower floor, without compromising functionality, since the couple's daily life is less present in these environments.
Upon entering the house, one notices clean circulation flows showing the skyline in front of the limits of the residence, and, as one moves inside, the environments are related in varied views, amplifying the path. There is no separation between inside and outside, but rather a relationship, in which even though it is an environment with little local vegetation, this is present through the positioning of the openings in the eaves to the surrounding vegetation. Thus, the plan generates the relationship with natural lighting, sunsets, and green mountains ahead, also calibrating temperature and generating east cross ventilation in all environments of the house.
The residence brings simplified architectural elements. The materials used in the construction are pure and the union of concrete, wood, and glass relates to each other in an honest way. As well as the care of round pillars that do not delimit the view, delivering a diagonal and flat relationship with the surroundings. Thick concrete rips act strategically for the presence of natural lighting, privacy, and contemplation of the nature that prevails there.
▼项目更多图片
客服
消息
收藏
下载
最近































